$315,000
15461 Broad Brush Drive Sun City Center, FL 33573
For Sale MLS# TB8451702
4 beds 3 baths 1,914 sq ft Single Family
Details for 15461 Broad Brush Drive
MLS# TB8451702
Description for 15461 Broad Brush Drive, Sun City Center, FL, 33573
Waterfront Gem in Cypress Creek: Almost New & Ready for You! Welcome to your next dream home! This stunning, almost new 2020 construction waterfront residence in the highly desirable Cypress Creek community offers the perfect blend of modern style, spacious living, and amazing resort-style amenities. This two-story home boasts 4 bedrooms, 2.5 bathrooms, and a 2-car garage, providing ample space for comfortable family living. Step inside and be greeted by the seamless flow of brand new gorgeous laminate flooring (May 2025) that extends throughout the entire home. The main floor is designed for effortless entertaining with an open-concept layout. The gourmet kitchen is a chef's delight, featuring beautiful wood cabinets, stone countertops, new kitchen appliances, and a walk-in pantry, centered around a convenient breakfast bar that overlooks the combined living and dining rooms. Glass sliders open directly from the dining area to your screened-in lanai, where you can relax and enjoy the serene pond view. A practical half bath on the first floor is perfect for guests. Ascend the stairs to find a spacious loft area perfect for a home office, media room, or play area. All four generous bedrooms are located upstairs, along with the dedicated laundry room for ultimate convenience. The Primary Suite serves as a private sanctuary, featuring an en suite bathroom, double sinks, tub and a large walk-in closet. The three additional bedrooms are good sized and share a well-appointed guest bath. Outside, the backyard offers tranquil water views and is secured with vinyl fencing for privacy and safety. Living in Cypress Creek means enjoying a vibrant lifestyle with fantastic community amenities right outside your door. Residents have access to a community clubhouse, a resort-style pool, tennis courts, and a dog park. This meticulously maintained home offers a fantastic opportunity for comfortable, modern, and amenity-rich living. Don't miss out on this beautiful waterfront property!
Listing Information
Property Type: Residential, Single Family Residence
Status: Active
Bedrooms: 4
Bathrooms: 3
Lot Size: 0.10 Acres
Square Feet: 1,914 sq ft
Year Built: 2020
Garage: Yes
Stories: 2 Story
Construction: Block,Stucco
Subdivision: Cypress Crk Prcl J Ph 7 & 2
Foundation: Slab
County: Hillsborough
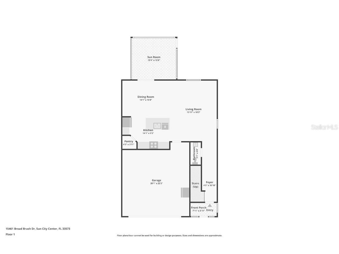
Room Information
Main Floor
Porch: 12.6x13.4
Kitchen: 9.5x14.1
Porch: 3.11x7.11
Foyer: 10.1x4.5
Dining Room: 10.8x14.1
Living Room: 18.2x13.11
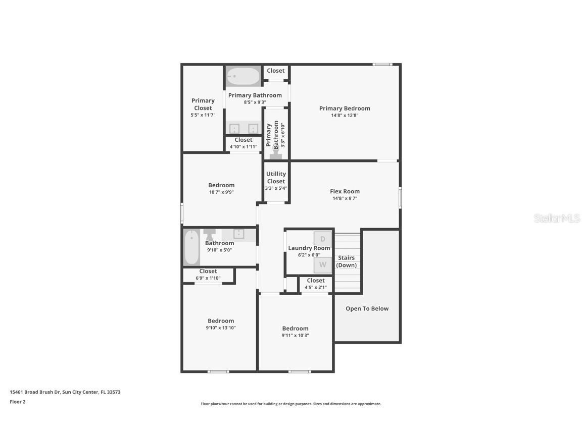
Upper Floor
Primary Bedroom: 12.8x14.8
Loft: 9.7x14.8
Bedroom 4: 10.3x9.11
Bedroom 3: 13.1x9.1
Bedroom 2: 9.9x10.7
Bathrooms
Full Baths: 2
1/2 Baths: 1
Additonal Room Information
Laundry: Inside, Laundry Room
Interior Features
Appliances: Microwave, Range, Refrigerator, Electric Water Heater, Dishwasher
Flooring: Laminate
Additional Interior Features: Walk-In Closet(s), Built-in Features, Ceiling Fan(s), Eat-In Kitchen, Solid Surface Counters, Wood Cabinets, Kitchen/Family Room Combo, Open Floorplan, Upper Level Primary, Living/Dining Room, High Ceilings
Utilities
Water: Public
Sewer: Public Sewer
Other Utilities: Cable Available,Electricity Available
Cooling: Ceiling Fan(s), Central Air
Heating: Central
Exterior / Lot Features
Attached Garage: Attached Garage
Garage Spaces: 2
Parking Description: driveway
Roof: Shingle
Pool: Association, Community
Lot View: Pond,Water
Lot Dimensions: 40x110
Fencing: Vinyl
Additional Exterior/Lot Features: Front Porch, Rear Porch, Covered, Screened, Level, Flat, Landscaped, City Lot, Outside City Limits
Community Features
Community Features: Dog Park, Playground, Clubhouse, Pool, Tennis Court(s), Sidewalks
Association Amenities: Tennis Court(s), Pool, Clubhouse, Playground
HOA Dues Include: Cable TV, Internet, Pool(s)
Homeowners Association: Yes
HOA Dues: $257 / Quarterly
Driving Directions
Heading South on US Hwy 41 towards Ruskin, turn left onto 19th Ave NE, left onto Wicked Strong St, left onto Unbridled Song Dr, right onto Broad Brush Dr, home is on the left.
Financial Considerations
Terms: Cash,Conventional,FHA,VA Loan
Tax/Property ID: U-35-31-19-B3O-000006-00022.0
Tax Amount: 5291.21
Tax Year: 2024
A broker reciprocity listing courtesy: KELLER WILLIAMS SOUTH SHORE
Based on information provided by Stellar MLS as distributed by the MLS GRID. Information from the Internet Data Exchange is provided exclusively for consumers’ personal, non-commercial use, and such information may not be used for any purpose other than to identify prospective properties consumers may be interested in purchasing. This data is deemed reliable but is not guaranteed to be accurate by Edina Realty, Inc., or by the MLS. Edina Realty, Inc., is not a multiple listing service (MLS), nor does it offer MLS access.
Copyright 2025 Stellar MLS as distributed by the MLS GRID. All Rights Reserved.
Payment Calculator
Interest rate and annual percentage rate (APR) are based on current market conditions, are for informational purposes only, are subject to change without notice and may be subject to pricing add-ons related to property type, loan amount, loan-to-value, credit score and other variables. Estimated closing costs used in the APR calculation are assumed to be paid by the borrower at closing. If the closing costs are financed, the loan, APR and payment amounts will be higher. If the down payment is less than 20%, mortgage insurance may be required and could increase the monthly payment and APR. Contact us for details. Additional loan programs may be available. Accuracy is not guaranteed, and all products may not be available in all borrower's geographical areas and are based on their individual situation. This is not a credit decision or a commitment to lend.
Sales History & Tax Summary for 15461 Broad Brush Drive
Sales History
| Date | Price | Change |
|---|---|---|
| Currently not available. | ||
Tax Summary
| Tax Year | Estimated Market Value | Total Tax |
|---|---|---|
| Currently not available. | ||
Data powered by ATTOM Data Solutions. Copyright© 2025. Information deemed reliable but not guaranteed.
Schools
Schools nearby 15461 Broad Brush Drive
| Schools in attendance boundaries | Grades | Distance | Rating |
|---|---|---|---|
| Loading... | |||
| Schools nearby | Grades | Distance | Rating |
|---|---|---|---|
| Loading... | |||
Data powered by ATTOM Data Solutions. Copyright© 2025. Information deemed reliable but not guaranteed.
The schools shown represent both the assigned schools and schools by distance based on local school and district attendance boundaries. Attendance boundaries change based on various factors and proximity does not guarantee enrollment eligibility. Please consult your real estate agent and/or the school district to confirm the schools this property is zoned to attend. Information is deemed reliable but not guaranteed.
SchoolDigger ® Rating
The SchoolDigger rating system is a 1-5 scale with 5 as the highest rating. SchoolDigger ranks schools based on test scores supplied by each state's Department of Education. They calculate an average standard score by normalizing and averaging each school's test scores across all tests and grades.
Coming soon properties will soon be on the market, but are not yet available for showings.