$334,900
1554 Lunn Woods Trail Lakeland, FL 33811
For Sale MLS# L4957826
4 beds 3 baths 2,160 sq ft Single Family
Details for 1554 Lunn Woods Trail
MLS# L4957826
Description for 1554 Lunn Woods Trail, Lakeland, FL, 33811
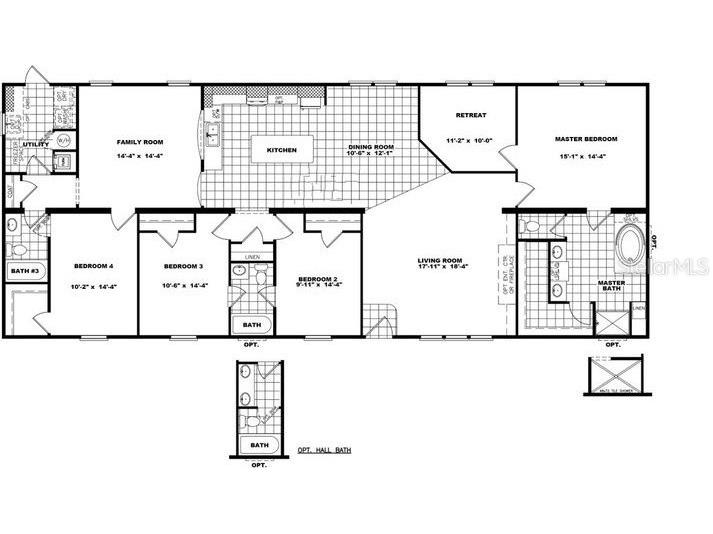
One or more photo(s) has been virtually staged. LISTED UNDER VALUE!! THIS ONE HAS EVERYTHING YOU ARE LOOKING FOR!!! NOT HOA & NOT CDD. Welcome to this beautiful double-wide mobile home, a modern marvel built in 2022 located in South Lakeland. Spanning over 2000 square feet, this spacious residence offers 4 bedrooms and 3 full bathrooms, making it an ideal retreat for families of all sizes. The home is nestled on a stunning 1.40-acre lot, providing ample outdoor space for recreation and relaxation. The master bedroom is a true sanctuary, featuring a den or retreat room that can easily be transformed into an office or nursery to suit your needs. The master suite also boasts a generous walk-in closet and high ceilings, adding to the sense of space and luxury. The living areas are designed for comfort and functionality, with a living room and family room providing plenty of space for both casual gatherings and formal entertaining. The heart of this home is the kitchen, which is both practical and beautiful. It features an island, perfect for meal prep and casual dining, and is equipped with stainless steel appliances that add a touch of modern elegance. The kitchen's thoughtful design ensures a comfortable and efficient cooking experience. The home also includes a convenient laundry room, enhancing your daily routine. With three full bathrooms, including a Jack and Jill bathroom, this home offers convenience and privacy for everyone. High ceilings throughout the home, along with crown molding, contribute to an open and airy atmosphere. Outside, you'll find a new shade structure in the backyard, providing a perfect spot for outdoor activities and relaxation. This property truly combines modern living with the tranquility of a spacious lot. Don't miss the opportunity to make this exceptional mobile home your own. Schedule a viewing today and experience the perfect blend of comfort, style, and functionality.
Listing Information
Property Type: Residential, Manufactured Home
Status: Active
Bedrooms: 4
Bathrooms: 3
Lot Size: 1.42 Acres
Square Feet: 2,160 sq ft
Year Built: 2022
Stories: 1 Story
Construction: Other,Wood Frame
Subdivision: Lunn Woods
Foundation: Crawlspace
County: Polk
School Information
Elementary: Medulla Elem
Middle: Southwest Middle School
High: George Jenkins High
Room Information
Main Floor
Kitchen: 12x10
Bedroom 4: 14.4x10.2
Bedroom 3: 14.4x10.6
Bedroom 2: 14.4x9.11
Den: 10x11
Primary Bedroom: 14.5x15
Living Room: 18.4x17.11
Bathrooms
Full Baths: 3
Additonal Room Information
Laundry: Inside
Interior Features
Appliances: Electric Water Heater, Dishwasher, Microwave, Range, Refrigerator
Flooring: Carpet,Laminate
Basement: Crawl Space
Additional Interior Features: Eat-In Kitchen, High Ceilings, Ceiling Fan(s), Crown Molding
Utilities
Water: Well
Sewer: Septic Tank
Other Utilities: Electricity Connected
Cooling: Ceiling Fan(s), Central Air
Heating: Central
Exterior / Lot Features
Roof: Shingle
Additional Exterior/Lot Features: Storage
Out Buildings: Shed(s)
Driving Directions
From Ewell Rd, go to Lunn Wood Dr and turn into Lunn Woods Trail, the property will be on your right.
Financial Considerations
Terms: Cash,Conventional,FHA
Tax/Property ID: 23-29-23-141803-000310
Tax Amount: 4525.49
Tax Year: 2024
A broker reciprocity listing courtesy: EXP REALTY LLC
Based on information provided by Stellar MLS as distributed by the MLS GRID. Information from the Internet Data Exchange is provided exclusively for consumers’ personal, non-commercial use, and such information may not be used for any purpose other than to identify prospective properties consumers may be interested in purchasing. This data is deemed reliable but is not guaranteed to be accurate by Edina Realty, Inc., or by the MLS. Edina Realty, Inc., is not a multiple listing service (MLS), nor does it offer MLS access.
Copyright 2026 Stellar MLS as distributed by the MLS GRID. All Rights Reserved.
Payment Calculator
Interest rate and annual percentage rate (APR) are based on current market conditions, are for informational purposes only, are subject to change without notice and may be subject to pricing add-ons related to property type, loan amount, loan-to-value, credit score and other variables. Estimated closing costs used in the APR calculation are assumed to be paid by the borrower at closing. If the closing costs are financed, the loan, APR and payment amounts will be higher. If the down payment is less than 20%, mortgage insurance may be required and could increase the monthly payment and APR. Contact us for details. Additional loan programs may be available. Accuracy is not guaranteed, and all products may not be available in all borrower's geographical areas and are based on their individual situation. This is not a credit decision or a commitment to lend.
Sales History & Tax Summary for 1554 Lunn Woods Trail
Sales History
| Date | Price | |
|---|---|---|
| Currently not available. | ||
Tax Summary
| Tax Year | Estimated Market Value | Total Tax |
|---|---|---|
| Currently not available. | ||
Data powered by ATTOM Data Solutions. Copyright© 2026. Information deemed reliable but not guaranteed.
Schools
Schools nearby 1554 Lunn Woods Trail
| Schools in attendance boundaries | Grades | Distance | Rating |
|---|---|---|---|
| Loading... | |||
| Schools nearby | Grades | Distance | Rating |
|---|---|---|---|
| Loading... | |||
Data powered by ATTOM Data Solutions. Copyright© 2026. Information deemed reliable but not guaranteed.
The schools shown represent both the assigned schools and schools by distance based on local school and district attendance boundaries. Attendance boundaries change based on various factors and proximity does not guarantee enrollment eligibility. Please consult your real estate agent and/or the school district to confirm the schools this property is zoned to attend. Information is deemed reliable but not guaranteed.
SchoolDigger ® Rating
The SchoolDigger rating system is a 1-5 scale with 5 as the highest rating. SchoolDigger ranks schools based on test scores supplied by each state's Department of Education. They calculate an average standard score by normalizing and averaging each school's test scores across all tests and grades.
Coming soon properties will soon be on the market, but are not yet available for showings.