15575 Early Bird Circle Apple Valley, MN 55124 - Cobblestone
Pending MLS# 6814467
3 beds 2 baths 1,824 sq ft Townhouse/Twinhome
Details for 15575 Early Bird Circle
MLS# 6814467
Description for 15575 Early Bird Circle, Apple Valley, MN, 55124 - Cobblestone
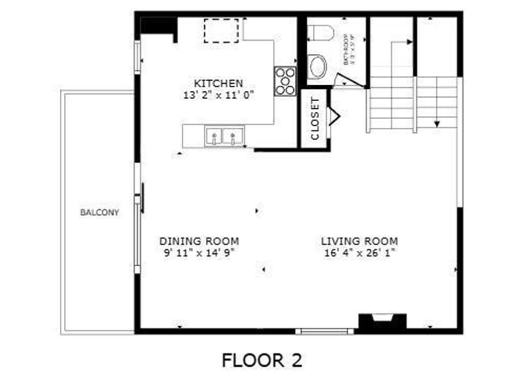
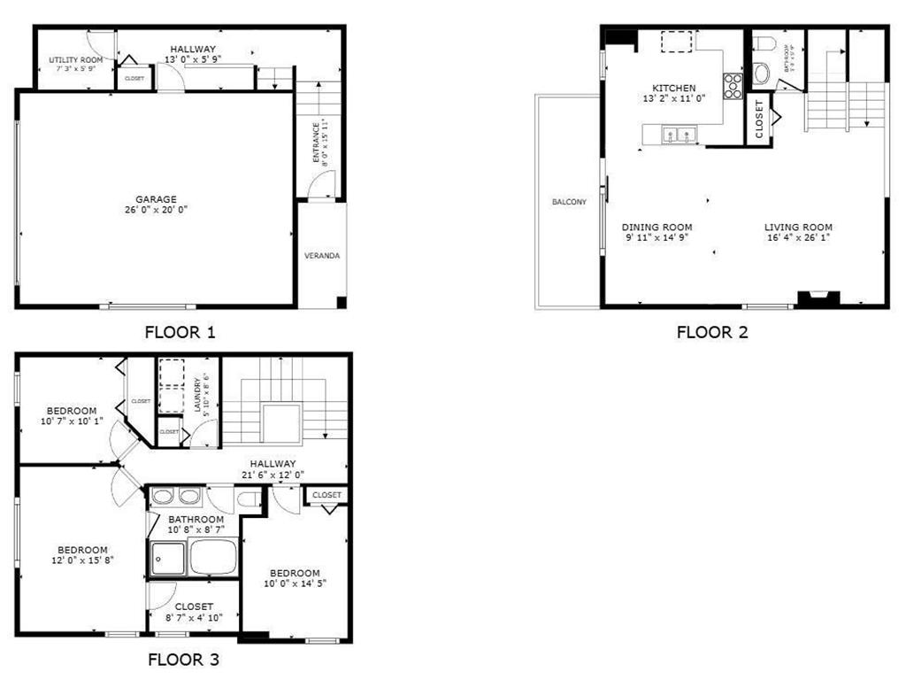
Sought-after end unit with stunning views of Cobblestone Lake. Your guests will enjoy easy access as the guest parking is conveniently located right next door! The home features new carpet and fresh paint throughout. The kitchen is equipped with stainless steel appliances, a breakfast bar, and ample cabinet space. Step out onto the balcony off the dining room to enjoy the lake view. Full-length windows in both the living room and dining room fill the space with natural light. The owner's suite also offers lake views, a walk-in closet, and a spacious bathroom featuring a jetted tub, a separate shower, and dual sinks. With three bedrooms and laundry all on the same level, convenience is at your fingertips. As part of Legacy Homes at Cobblestone, you’ll have access to incredible amenities, including a community pool, multiple playgrounds, scenic walking and biking trails, a fishing pier, and picnic areas. Plus, with shopping, dining, and Target just around the corner, running errands has never been easier.
Listing Information
Property Type: Residential, Side by Side
Status: Pending
Bedrooms: 3
Bathrooms: 2
Lot Size: 0.07 Acres
Square Feet: 1,824 sq ft
Year Built: 2005
Foundation: 896 sq ft
Garage: Yes
Stories: More Than 2 Stories
Property Attached: Yes
Subdivision: Cobblestone Lake North Shore
County: Dakota
Days On Market: 42
Construction Status: Previously Owned
School Information
District: 196 - Rosemount-Apple Valley-Eagan
Room Information
Main Floor
Dining Room: 15x10
Kitchen: 7x11
Living Room: 16x15
Upper Floor
Bedroom 3: 10x12
Laundry: 8x4
Bathrooms
Full Baths: 1
1/2 Baths: 1
Additonal Room Information
Other: Bedroom 1 (10x10), Bedroom 2 (11x10)
Dining: Breakfast Bar,Living/Dining Room
Laundry: Washer Hookup, Laundry Room, Upper Level, Electric Dryer Hookup
Bath Description: Jetted Tub,Main Floor 1/2 Bath,Primary Walk-Thru,Separate Tub & Shower,Upper Level Full Bath
Interior Features
Square Footage above: 1,792 sq ft
Square Footage below: 32 sq ft
Appliances: Gas Water Heater, Stainless Steel Appliances, Water Softener - Owned, Range, Refrigerator, Washer, Microwave, Dishwasher, Disposal, Dryer
Basement: Partial, Partial Finished
Additional Interior Features: Indoor Sprinklers, Kitchen Window, Washer/Dryer Hookup, 3 BR on One Level, 2nd Floor Laundry, Primary Bdr Suite
Utilities
Water: City Water/Connected
Sewer: City Sewer/Connected
Cooling: Central
Heating: Forced Air, Natural Gas
Exterior / Lot Features
Attached Garage: Attached Garage
Garage Spaces: 2
Parking Description: Insulated Garage, Driveway - Asphalt, Garage Door Opener, Attached Garage, Tuckunder Garage, Finished Garage, Guest Parking, Garage Dimensions - 19x24, Garage Door Height - 7, Garage Door Width - 16, Garage Sq Ft - 456.0
Exterior: Brick/Stone, Cement Board
Roof: Age 8 Years or Less
Pool: Below Ground, Heated, Shared
Lot Dimensions: common
Zoning: Residential-Single Family
Additional Exterior/Lot Features: Deck, End Unit, Road Frontage - City
Waterfront Details
Standard Water Body: Cobblestone
DNR Lake ID: 19045600
Water Front Features: Lake View
Lake Acres: 35
Lake Depth: 18 Ft.
Community Features
Community Features: Club House
Association Amenities: Trails, Tennis Courts
HOA Dues Include: Lawn Care, Sanitation, Shared Amenities, Snow Removal, Professional Mgmt, Water, Sewer
Pets Allowed: Yes
Homeowners Association: Yes
Association Name: Legacy Homes At Cobblestone Lake North Shore
HOA Dues: $475 / Monthly
Driving Directions
Pilot Knob Road to 155th Street W, East to Eagle Bay Drive, South to Cobblestone Lake Parkway, East to Eagle Stone Road, North to Echo Ridge Road, West to 15575 Early Bird Circle.
Financial Considerations
Covenants/Deed Restrictions: Mandatory Owners Assoc, Pets - Dogs Allowed, Pets - Cats Allowed
Tax/Property ID: 011805231406
Tax Amount: 3296
Tax Year: 2025
HomeStead Description: Homesteaded
A broker reciprocity listing courtesy: Keller Williams Premier Realty
The data relating to real estate for sale on this web site comes in part from the Broker Reciprocity℠ Program of the Regional Multiple Listing Service of Minnesota, Inc. Real estate listings held by brokerage firms other than Edina Realty, Inc. are marked with the Broker Reciprocity℠ logo or the Broker Reciprocity℠ thumbnail and detailed information about them includes the name of the listing brokers. Edina Realty, Inc. is not a Multiple Listing Service (MLS), nor does it offer MLS access. This website is a service of Edina Realty, Inc., a broker Participant of the Regional Multiple Listing Service of Minnesota, Inc. IDX information is provided exclusively for consumers personal, non-commercial use and may not be used for any purpose other than to identify prospective properties consumers may be interested in purchasing. Open House information is subject to change without notice. Information deemed reliable but not guaranteed.
Copyright 2026 Regional Multiple Listing Service of Minnesota, Inc. All Rights Reserved.
Sales History & Tax Summary for 15575 Early Bird Circle
Sales History
| Date | Price | |
|---|---|---|
| Currently not available. | ||
Tax Summary
| Tax Year | Estimated Market Value | Total Tax |
|---|---|---|
| Currently not available. | ||
Data powered by ATTOM Data Solutions. Copyright© 2026. Information deemed reliable but not guaranteed.
Schools
Schools nearby 15575 Early Bird Circle
| Schools in attendance boundaries | Grades | Distance | Rating |
|---|---|---|---|
| Loading... | |||
| Schools nearby | Grades | Distance | Rating |
|---|---|---|---|
| Loading... | |||
Data powered by ATTOM Data Solutions. Copyright© 2026. Information deemed reliable but not guaranteed.
The schools shown represent both the assigned schools and schools by distance based on local school and district attendance boundaries. Attendance boundaries change based on various factors and proximity does not guarantee enrollment eligibility. Please consult your real estate agent and/or the school district to confirm the schools this property is zoned to attend. Information is deemed reliable but not guaranteed.
SchoolDigger ® Rating
The SchoolDigger rating system is a 1-5 scale with 5 as the highest rating. SchoolDigger ranks schools based on test scores supplied by each state's Department of Education. They calculate an average standard score by normalizing and averaging each school's test scores across all tests and grades.
Coming soon properties will soon be on the market, but are not yet available for showings.