15901 SE 101st Circle Summerfield, FL 34491
For Sale MLS# OM713016
5 beds 2 baths 1,708 sq ft Single Family
Details for 15901 SE 101st Circle
MLS# OM713016
Description for 15901 SE 101st Circle, Summerfield, FL, 34491
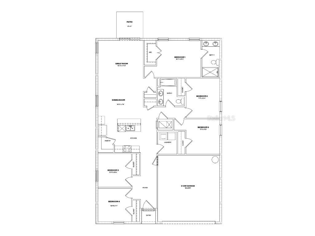
Under Construction. This single-story all concrete block constructed 5-bedroom, 2-bathroom home is a thoughtfully designed living space. With an open concept layout, this plan offers the perfect balance of functionality, comfort, and modern style. The kitchen is centrally located with quartz countertops, center island, walk-in pantry and stainless-steel appliances including a built-in dishwasher, range and microwave. The primary suite is at the rear of the home for added privacy and includes a spacious closet and ensuite bathroom. Four additional bedrooms share the second bathroom with a dedicated laundry room nearby. Pictures, photographs, colors, features, and sizes are for illustration purposes only and will vary from the homes as built. Home and community information including pricing, included features, terms, availability and amenities are subjext to change and prior sale at any time without notice or obligation. CRC057592.
Listing Information
Property Type: Residential, Single Family Residence
Status: Active
Bedrooms: 5
Bathrooms: 2
Lot Size: 0.15 Acres
Square Feet: 1,708 sq ft
Year Built: 2025
Garage: Yes
Stories: 1 Story
Construction: Block
Construction Display: New Construction
Subdivision: Sunset Hills
Builder: DR Horton INC
Foundation: Slab
County: Marion
Construction Status: Under Construction
School Information
Elementary: Harbour View Elementary School
Middle: Lake Weir Middle School
High: Lake Weir High School
Room Information
Main Floor
Primary Bedroom: 11x13
Kitchen: 15x14
Great Room: 17x14
Bathrooms
Full Baths: 2
Additonal Room Information
Laundry: Laundry Room
Interior Features
Appliances: Microwave, Range, Dishwasher
Flooring: Carpet,Luxury Vinyl
Additional Interior Features: Open Floorplan
Utilities
Water: Public
Sewer: Public Sewer
Other Utilities: Other
Cooling: Central Air
Heating: Electric, Heat Pump
Exterior / Lot Features
Attached Garage: Attached Garage
Garage Spaces: 2
Roof: Shingle
Additional Exterior/Lot Features: Sprinkler/Irrigation
Community Features
Homeowners Association: Yes
HOA Dues: $69 / Monthly
Driving Directions
Traveling north on Hwy 441, turn right onto SE 159th Lane and travel for 0.2 miles. Next turn right onto SE 97th Terrace Road and take the next immediate left. The Sunset Hills model sales center will be location on your left.
Financial Considerations
Tax/Property ID: 4820-002-161
Tax Year: 2025
A broker reciprocity listing courtesy: DR HORTON REALTY OF WEST CENTRAL FLORIDA
Based on information provided by Stellar MLS as distributed by the MLS GRID. Information from the Internet Data Exchange is provided exclusively for consumers’ personal, non-commercial use, and such information may not be used for any purpose other than to identify prospective properties consumers may be interested in purchasing. This data is deemed reliable but is not guaranteed to be accurate by Edina Realty, Inc., or by the MLS. Edina Realty, Inc., is not a multiple listing service (MLS), nor does it offer MLS access.
Copyright 2025 Stellar MLS as distributed by the MLS GRID. All Rights Reserved.
Payment Calculator
Interest rate and annual percentage rate (APR) are based on current market conditions, are for informational purposes only, are subject to change without notice and may be subject to pricing add-ons related to property type, loan amount, loan-to-value, credit score and other variables. Estimated closing costs used in the APR calculation are assumed to be paid by the borrower at closing. If the closing costs are financed, the loan, APR and payment amounts will be higher. If the down payment is less than 20%, mortgage insurance may be required and could increase the monthly payment and APR. Contact us for details. Additional loan programs may be available. Accuracy is not guaranteed, and all products may not be available in all borrower's geographical areas and are based on their individual situation. This is not a credit decision or a commitment to lend.
Sales History & Tax Summary for 15901 SE 101st Circle
Sales History
| Date | Price | Change |
|---|---|---|
| Currently not available. | ||
Tax Summary
| Tax Year | Estimated Market Value | Total Tax |
|---|---|---|
| Currently not available. | ||
Data powered by ATTOM Data Solutions. Copyright© 2025. Information deemed reliable but not guaranteed.
Schools
Schools nearby 15901 SE 101st Circle
| Schools in attendance boundaries | Grades | Distance | Rating |
|---|---|---|---|
| Loading... | |||
| Schools nearby | Grades | Distance | Rating |
|---|---|---|---|
| Loading... | |||
Data powered by ATTOM Data Solutions. Copyright© 2025. Information deemed reliable but not guaranteed.
The schools shown represent both the assigned schools and schools by distance based on local school and district attendance boundaries. Attendance boundaries change based on various factors and proximity does not guarantee enrollment eligibility. Please consult your real estate agent and/or the school district to confirm the schools this property is zoned to attend. Information is deemed reliable but not guaranteed.
SchoolDigger ® Rating
The SchoolDigger rating system is a 1-5 scale with 5 as the highest rating. SchoolDigger ranks schools based on test scores supplied by each state's Department of Education. They calculate an average standard score by normalizing and averaging each school's test scores across all tests and grades.
Coming soon properties will soon be on the market, but are not yet available for showings.