1592 Aqui Esta Drive Punta Gorda, FL 33950
For Sale MLS# C7515711
3 beds 2 baths 2,987 sq ft Single Family
Details for 1592 Aqui Esta Drive
MLS# C7515711
Description for 1592 Aqui Esta Drive, Punta Gorda, FL, 33950
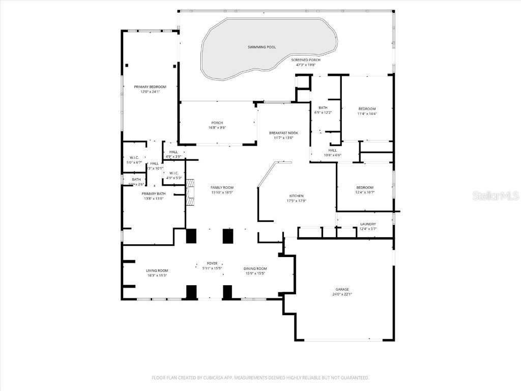
Discover this stunning former model home, located on an oversized corner waterfront lot in the highly desirable community of Punta Gorda Isles. This exceptional residence was designed with elegance, comfort, and waterfront living in mind — offering direct powerboat access to Charlotte Harbor in under 20 minutes. Step inside and experience the inviting, open layout with bright water views from nearly every room. The formal living and dining rooms feature custom lighted built-in cabinetry, display shelving, and a stylish bar area — ideal for entertaining. A true split floor plan provides privacy, with the expansive master suite tucked away at the rear of the home. The master retreat includes a cozy sitting area overlooking the canal and pool, dual walk-in closets, and a spa-inspired bathroom with dual vanities, a soaking tub, and a spacious shower. This 3-bedroom, 2-bath home showcases exceptional craftsmanship and high-end finishes throughout, including soaring, high-spacious ceilings throughout the home, decorative tray ceilings in every room, crown molding (even in the garage), granite countertops, and premium wood cabinetry, a propane gas fireplace, arched doorways, 8-foot interior doors, and upgraded lighting and ceiling fans. This home is pre-wired for a whole-home network and an entertainment connection center. The gourmet kitchen flows seamlessly to the family room and outdoors, where you’ll find the perfect Florida retreat. Enjoy the heated infinity-edge pool with screened lanai, built-in outdoor grill, stamped concrete decking, and a stamped circular drive. The concrete dock and seawall (maintained by the City of Punta Gorda) make boating simple and worry-free. Additional highlights include a spacious laundry room with a washer/dryer and a built-in ironing board, as well as a pre-washing sink. An oversized garage with fans and can lighting, and an irrigation system. Located just blocks from St. Andrews South Golf Club, this home offers an unmatched lifestyle in Punta Gorda Isles — a deed-restricted waterfront community with 52 miles of saltwater canals leading to Charlotte Harbor and the Gulf of Mexico. Whether you’re seeking a full-time residence, seasonal retreat, or a move-in-ready waterfront home, this property is a rare opportunity to own a showcase home in one of Florida’s most desirable boating communities.
Listing Information
Property Type: Residential, Single Family Residence
Status: Active
Bedrooms: 3
Bathrooms: 2
Lot Size: 0.33 Acres
Square Feet: 2,987 sq ft
Year Built: 2002
Garage: Yes
Stories: 1 Story
Construction: Block,Stucco
Subdivision: Punta Gorda Isles Sec 14
Foundation: Slab
County: Charlotte
School Information
Elementary: Sallie Jones Elementary
Middle: Punta Gorda Middle
High: Charlotte High
Room Information
Main Floor
Primary Bedroom: 24x12
Kitchen: 18x18
Living Room: 19x16
Bathrooms
Full Baths: 2
Additonal Room Information
Laundry: Laundry Room, Electric Dryer Hookup, Washer Hookup, Inside
Interior Features
Appliances: Exhaust Fan, Washer, Microwave, Range, Refrigerator, Dishwasher, Disposal, Dryer, Electric Water Heater
Flooring: Carpet,Ceramic Tile,Tile
Doors/Windows: Blinds, Window Treatments, Aluminum Frames, Shutters, Insulated Windows, Rods
Fireplaces: Living Room
Additional Interior Features: Main Level Primary, Crown Molding, Separate/Formal Dining Room, Tray Ceiling(s), Built-in Features, Cathedral Ceiling(s), High Ceilings, Wood Cabinets, Kitchen/Family Room Combo, Separate/Formal Living Room, Stone Counters, Walk-In Closet(s), Window Treatments, Ceiling Fan(s), Eat-In Kitchen
Utilities
Water: Public
Sewer: Public Sewer
Other Utilities: Cable Connected,Electricity Connected,High Speed Internet Available,Propane,Phone Available,Sewer Connected,Water Connected
Cooling: Ceiling Fan(s), Central Air, Attic Fan, Humidity Control
Heating: Zoned, Electric
Exterior / Lot Features
Attached Garage: Attached Garage
Garage Spaces: 2
Parking Description: driveway, Garage, Garage Door Opener
Roof: Metal
Pool: Heated, Tile, In Ground, Outside Bath Access, Screen Enclosure, Gunite, Infinity
Lot View: Park/Greenbelt,Trees/Woods,Water
Additional Exterior/Lot Features: Storage, Lighting, Storm/Security Shutters, Outdoor Shower, Sprinkler/Irrigation, Front Porch, Screened, Patio, Covered
Community Features
Community Features: Street Lights
Driving Directions
US 41 west on Aqui Esta Dr. for 1.5 miles, at the corner of San Marino
Financial Considerations
Terms: Cash,Conventional,FHA,VA Loan
Tax/Property ID: 412213156007
Tax Amount: 8604.95
Tax Year: 2024
A broker reciprocity listing courtesy: REALTY ONE GROUP MVP
Based on information provided by Stellar MLS as distributed by the MLS GRID. Information from the Internet Data Exchange is provided exclusively for consumers’ personal, non-commercial use, and such information may not be used for any purpose other than to identify prospective properties consumers may be interested in purchasing. This data is deemed reliable but is not guaranteed to be accurate by Edina Realty, Inc., or by the MLS. Edina Realty, Inc., is not a multiple listing service (MLS), nor does it offer MLS access.
Copyright 2025 Stellar MLS as distributed by the MLS GRID. All Rights Reserved.
Payment Calculator
Interest rate and annual percentage rate (APR) are based on current market conditions, are for informational purposes only, are subject to change without notice and may be subject to pricing add-ons related to property type, loan amount, loan-to-value, credit score and other variables. Estimated closing costs used in the APR calculation are assumed to be paid by the borrower at closing. If the closing costs are financed, the loan, APR and payment amounts will be higher. If the down payment is less than 20%, mortgage insurance may be required and could increase the monthly payment and APR. Contact us for details. Additional loan programs may be available. Accuracy is not guaranteed, and all products may not be available in all borrower's geographical areas and are based on their individual situation. This is not a credit decision or a commitment to lend.
Sales History & Tax Summary for 1592 Aqui Esta Drive
Sales History
| Date | Price | Change |
|---|---|---|
| Currently not available. | ||
Tax Summary
| Tax Year | Estimated Market Value | Total Tax |
|---|---|---|
| Currently not available. | ||
Data powered by ATTOM Data Solutions. Copyright© 2025. Information deemed reliable but not guaranteed.
Schools
Schools nearby 1592 Aqui Esta Drive
| Schools in attendance boundaries | Grades | Distance | Rating |
|---|---|---|---|
| Loading... | |||
| Schools nearby | Grades | Distance | Rating |
|---|---|---|---|
| Loading... | |||
Data powered by ATTOM Data Solutions. Copyright© 2025. Information deemed reliable but not guaranteed.
The schools shown represent both the assigned schools and schools by distance based on local school and district attendance boundaries. Attendance boundaries change based on various factors and proximity does not guarantee enrollment eligibility. Please consult your real estate agent and/or the school district to confirm the schools this property is zoned to attend. Information is deemed reliable but not guaranteed.
SchoolDigger ® Rating
The SchoolDigger rating system is a 1-5 scale with 5 as the highest rating. SchoolDigger ranks schools based on test scores supplied by each state's Department of Education. They calculate an average standard score by normalizing and averaging each school's test scores across all tests and grades.
Coming soon properties will soon be on the market, but are not yet available for showings.