1594 Delightful Drive Davenport, FL 33896
For Sale MLS# O6291753
4 beds 3 baths 2,203 sq ft Single Family
Details for 1594 Delightful Drive
MLS# O6291753
Description for 1594 Delightful Drive, Davenport, FL, 33896
DRASTICALLY REDUCED BELOW MARKET VALUE! Sellers CONTRIBUTING up to $7,500 towards buyers closing costs!! Welcome home to this STUNNING and newly built Pulte property located in the heart of a beautiful neighborhood. This spacious 2,203 square foot home offers MODERN amenities and a convenient location just minutes away from I-4 for EASY commuting. Step inside to find a BEAUTIFULLY maintained interior that is flooded with NATURAL light, creating a warm and inviting atmosphere. The open concept layout is PERFECT for entertaining guests or relaxing with family, while the FULL SCREENED IN PATIO provides a peaceful outdoor retreat. Don't miss your opportunity to own this IMPECCABLE home that combines comfort, style, and convenience all in one. Schedule your showing today and make this dream home yours before it's too late!
Listing Information
Property Type: Residential, Single Family Residence
Status: Active
Bedrooms: 4
Bathrooms: 3
Lot Size: 0.10 Acres
Square Feet: 2,203 sq ft
Year Built: 2023
Garage: Yes
Stories: 2 Story
Construction: Block,Vinyl Siding
Subdivision: Belle Haven Ph 1
Builder: Pulte Home
Foundation: Block
County: Polk
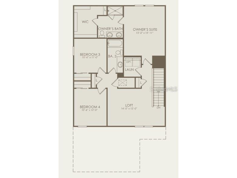
Room Information
Main Floor
Kitchen: 10x16
Living Room: 16.11x15.2
Bedroom 2: 12.5x11.1
Upper Floor
Bedroom 4: 12x10.6
Bedroom 3: 11x10.6
Primary Bedroom: 15.11x13.2
Bathrooms
Full Baths: 3
Additonal Room Information
Laundry: Laundry Room, Upper Level
Interior Features
Appliances: Range Hood, Washer, Range, Refrigerator, Dishwasher, Disposal, Dryer, Microwave
Flooring: Carpet,Ceramic Tile
Doors/Windows: Blinds
Additional Interior Features: Split Bedrooms, Ceiling Fan(s), Upper Level Primary, Open Floorplan
Utilities
Sewer: Public Sewer
Other Utilities: Cable Connected,Electricity Connected,Municipal Utilities,Water Not Available
Cooling: Ceiling Fan(s), Central Air
Heating: Central
Exterior / Lot Features
Attached Garage: Attached Garage
Garage Spaces: 2
Roof: Shingle
Additional Exterior/Lot Features: Enclosed, Screened, Covered, Patio
Community Features
Community Features: Sidewalks, Street Lights
Homeowners Association: Yes
HOA Dues: $151 / Monthly
Driving Directions
I-4 to US-27 N in Polk County. Take exit 55 from I-4 W Continue on US-27 N. Drive to Delightful Dr in Four Corners.
Financial Considerations
Terms: Cash,Conventional,FHA,VA Loan
Tax/Property ID: 27-26-06-701219-001020
Tax Amount: 4791.63
Tax Year: 2024
A broker reciprocity listing courtesy: THE C SMITH REAL ESTATE GROUP LLC
Based on information provided by Stellar MLS as distributed by the MLS GRID. Information from the Internet Data Exchange is provided exclusively for consumers’ personal, non-commercial use, and such information may not be used for any purpose other than to identify prospective properties consumers may be interested in purchasing. This data is deemed reliable but is not guaranteed to be accurate by Edina Realty, Inc., or by the MLS. Edina Realty, Inc., is not a multiple listing service (MLS), nor does it offer MLS access.
Copyright 2025 Stellar MLS as distributed by the MLS GRID. All Rights Reserved.
Payment Calculator
Interest rate and annual percentage rate (APR) are based on current market conditions, are for informational purposes only, are subject to change without notice and may be subject to pricing add-ons related to property type, loan amount, loan-to-value, credit score and other variables. Estimated closing costs used in the APR calculation are assumed to be paid by the borrower at closing. If the closing costs are financed, the loan, APR and payment amounts will be higher. If the down payment is less than 20%, mortgage insurance may be required and could increase the monthly payment and APR. Contact us for details. Additional loan programs may be available. Accuracy is not guaranteed, and all products may not be available in all borrower's geographical areas and are based on their individual situation. This is not a credit decision or a commitment to lend.
Sales History & Tax Summary for 1594 Delightful Drive
Sales History
| Date | Price | Change |
|---|---|---|
| Currently not available. | ||
Tax Summary
| Tax Year | Estimated Market Value | Total Tax |
|---|---|---|
| Currently not available. | ||
Data powered by ATTOM Data Solutions. Copyright© 2025. Information deemed reliable but not guaranteed.
Schools
Schools nearby 1594 Delightful Drive
| Schools in attendance boundaries | Grades | Distance | Rating |
|---|---|---|---|
| Loading... | |||
| Schools nearby | Grades | Distance | Rating |
|---|---|---|---|
| Loading... | |||
Data powered by ATTOM Data Solutions. Copyright© 2025. Information deemed reliable but not guaranteed.
The schools shown represent both the assigned schools and schools by distance based on local school and district attendance boundaries. Attendance boundaries change based on various factors and proximity does not guarantee enrollment eligibility. Please consult your real estate agent and/or the school district to confirm the schools this property is zoned to attend. Information is deemed reliable but not guaranteed.
SchoolDigger ® Rating
The SchoolDigger rating system is a 1-5 scale with 5 as the highest rating. SchoolDigger ranks schools based on test scores supplied by each state's Department of Education. They calculate an average standard score by normalizing and averaging each school's test scores across all tests and grades.
Coming soon properties will soon be on the market, but are not yet available for showings.