15952 Honey Suckle Street Port Charlotte, FL 33953
For Sale MLS# N6141595
3 beds 3 baths 2,201 sq ft Single Family
Details for 15952 Honey Suckle Street
MLS# N6141595
Description for 15952 Honey Suckle Street, Port Charlotte, FL, 33953
Move right in and start living the Florida dream. This Marsala model features 3 bedrooms and 3 full bathrooms along with a flex space/den. The entire home has been professionally customized with a designers touch. A lovely shiplap accent wall welcomes you as you enter the foyer. You will notice that the home lets in lots of natural light, and offers an elegant open floor plan. The kitchen has shaker cabinets, granite countertops and upgraded appliances. In addition it has a beautiful functional island, and tons of counter space. The floor to ceiling shiplap electric fireplace with wood mantle is a splendid addition to the living room. Designer light fixtures and ceiling fans add to the inviting space. Each of the bedrooms are separate from the others, giving you lots of privacy. The master bedroom is very spacious and has two closets, a large master bathroom with glass enclosed shower, double sinks, and a soaking tub. The large sliding doors off of the living area open to a private backyard tropical oasis. The paver patio was extended with an oversized screened enclosure. You will love the custom 15x25 rectangular heated salt water pool and spa . The pool includes a spillover waterfall, glass tiles, bubbler, pebble tec, and sun shelf. It also has LED color changing lights, and is fully automated by your cell phone. Just press a button and your spa will heat up as you head home after a long day. Fire up the grill and enjoy the outdoor kitchen with wave tile accent wall, stainless steel counter tops, stainless vent hood, soft close cabinets, sink, and recessed lighting. Rinse off in the tiled rain shower with temperature controlled water. Add to that a 2 car garage with ceiling mounted storage rack shelving, and professional tropical landscaping. This home checks off every box. Located just minutes to shopping and dining, and a short drive to the areas sandy white beaches. The community is gated with no CDD, flood insurance not required, and low HOA fees, and offers a clubhouse with fitness center. There are also pickle ball courts, and a large community pool. Schedule a private showing today.
Listing Information
Property Type: Residential, Single Family Residence
Status: Active
Bedrooms: 3
Bathrooms: 3
Lot Size: 0.16 Acres
Square Feet: 2,201 sq ft
Year Built: 2022
Garage: Yes
Stories: 1 Story
Construction: Block,Stucco
Subdivision: Biscayne Lndg Ii
Foundation: Block
County: Charlotte
School Information
Elementary: Liberty Elementary
Middle: Murdock Middle
High: Port Charlotte High
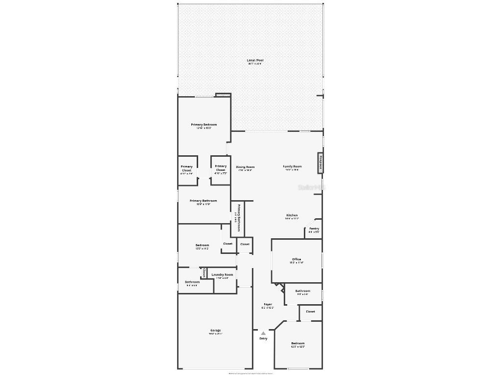
Room Information
Main Floor
Den: 11.4x13.2
Bedroom 3: 11.1x15
Bedroom 2: 12.1x12.3
Primary Bathroom: 12.2x13.5
Primary Bedroom: 15.5x13.5
Kitchen: 9.2x20.9
Dining Room: 18.11x12.9
Living Room: 18.11x12.5
Bathrooms
Full Baths: 3
Additonal Room Information
Laundry: Inside, Laundry Room
Interior Features
Appliances: Electric Water Heater, Microwave, Range, Refrigerator, Washer, Dishwasher, Disposal, Dryer
Flooring: Tile
Doors/Windows: Window Treatments
Fireplaces: Electric, Living Room
Additional Interior Features: Split Bedrooms, Walk-In Closet(s), Window Treatments, Ceiling Fan(s), Open Floorplan, Solid Surface Counters
Utilities
Water: Public
Sewer: Public Sewer
Other Utilities: Cable Connected,Electricity Connected,Municipal Utilities
Cooling: Ceiling Fan(s), Central Air
Heating: Central
Exterior / Lot Features
Attached Garage: Attached Garage
Garage Spaces: 2
Roof: Shingle
Pool: Gunite, Pool Alarm, Community, In Ground, Salt Water, Screen Enclosure, Tile, Other, Heated, Association
Lot View: Trees/Woods
Additional Exterior/Lot Features: Storm/Security Shutters, Rain Gutters, In-Wall Pest Control System, Sprinkler/Irrigation, Outdoor Shower, Outdoor Kitchen, Landscaped
Community Features
Community Features: Pool, Clubhouse, Street Lights, Sidewalks, Fitness, Community Mailbox
Association Amenities: Pickleball, Pool, Fitness Center, Cable TV
HOA Dues Include: Cable TV, Internet, Security, Taxes, Recreation Facilities, Pool(s), Common Areas, Maintenance Grounds, Reserve Fund, Road Maintenance
Homeowners Association: Yes
HOA Dues: $814 / Quarterly
Driving Directions
Go west on El Jobean to Biscayne Dr and turn right. Turn right onto Honey Suckle St into Biscayne Landing. Follow road to 15952 on the left.
Financial Considerations
Terms: Cash,Conventional,VA Loan
Tax/Property ID: 402114101009
Tax Amount: 6350
Tax Year: 2024
A broker reciprocity listing courtesy: WELLEN REALTY
Based on information provided by Stellar MLS as distributed by the MLS GRID. Information from the Internet Data Exchange is provided exclusively for consumers’ personal, non-commercial use, and such information may not be used for any purpose other than to identify prospective properties consumers may be interested in purchasing. This data is deemed reliable but is not guaranteed to be accurate by Edina Realty, Inc., or by the MLS. Edina Realty, Inc., is not a multiple listing service (MLS), nor does it offer MLS access.
Copyright 2026 Stellar MLS as distributed by the MLS GRID. All Rights Reserved.
Payment Calculator
Interest rate and annual percentage rate (APR) are based on current market conditions, are for informational purposes only, are subject to change without notice and may be subject to pricing add-ons related to property type, loan amount, loan-to-value, credit score and other variables. Estimated closing costs used in the APR calculation are assumed to be paid by the borrower at closing. If the closing costs are financed, the loan, APR and payment amounts will be higher. If the down payment is less than 20%, mortgage insurance may be required and could increase the monthly payment and APR. Contact us for details. Additional loan programs may be available. Accuracy is not guaranteed, and all products may not be available in all borrower's geographical areas and are based on their individual situation. This is not a credit decision or a commitment to lend.
Sales History & Tax Summary for 15952 Honey Suckle Street
Sales History
| Date | Price | |
|---|---|---|
| Currently not available. | ||
Tax Summary
| Tax Year | Estimated Market Value | Total Tax |
|---|---|---|
| Currently not available. | ||
Data powered by ATTOM Data Solutions. Copyright© 2026. Information deemed reliable but not guaranteed.
Schools
Schools nearby 15952 Honey Suckle Street
| Schools in attendance boundaries | Grades | Distance | Rating |
|---|---|---|---|
| Loading... | |||
| Schools nearby | Grades | Distance | Rating |
|---|---|---|---|
| Loading... | |||
Data powered by ATTOM Data Solutions. Copyright© 2026. Information deemed reliable but not guaranteed.
The schools shown represent both the assigned schools and schools by distance based on local school and district attendance boundaries. Attendance boundaries change based on various factors and proximity does not guarantee enrollment eligibility. Please consult your real estate agent and/or the school district to confirm the schools this property is zoned to attend. Information is deemed reliable but not guaranteed.
SchoolDigger ® Rating
The SchoolDigger rating system is a 1-5 scale with 5 as the highest rating. SchoolDigger ranks schools based on test scores supplied by each state's Department of Education. They calculate an average standard score by normalizing and averaging each school's test scores across all tests and grades.
Coming soon properties will soon be on the market, but are not yet available for showings.