1598 Heritage Crossing Court #201 Reunion, FL 34747
For Sale MLS# TB8423728
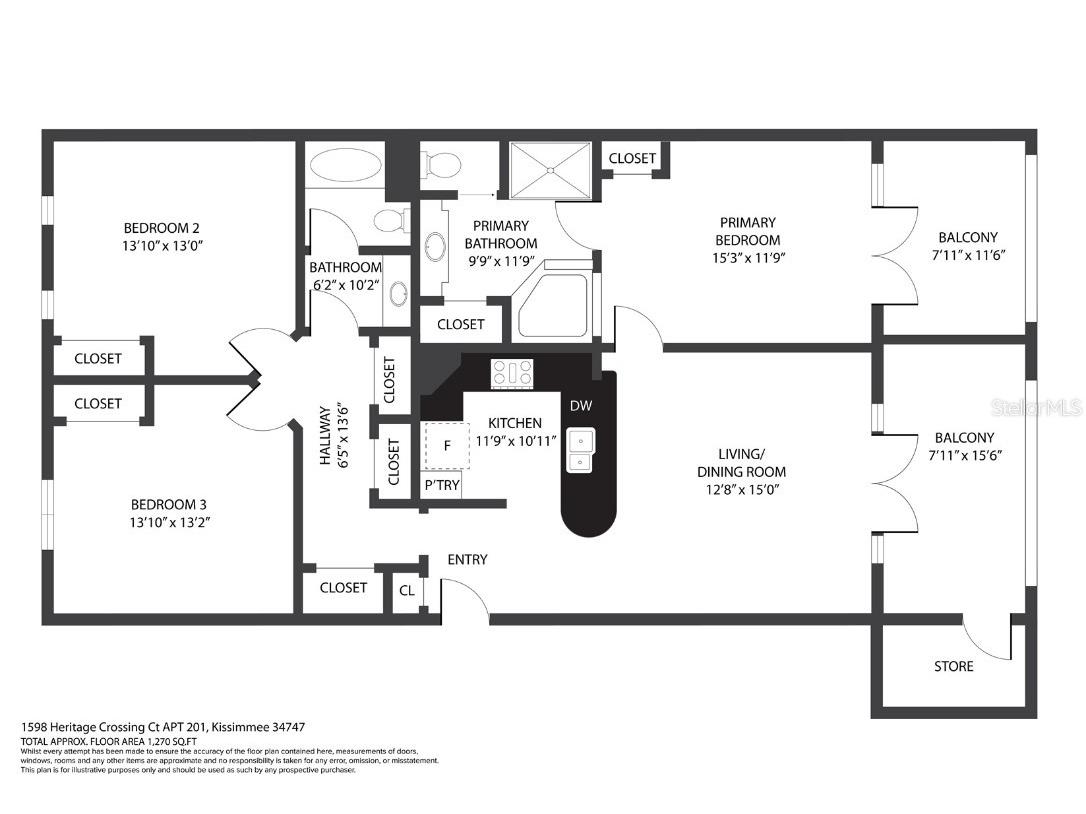
3 beds 2 baths 1,344 sq ft Condo
Details for 1598 Heritage Crossing Court #201
MLS# TB8423728
Description for 1598 Heritage Crossing Court #201, Reunion, FL, 34747
***MOTIVATED SELLER*** JUST A FEW MILES FOR DISNEY*** Elegant Condo in Reunion Resort – Fully Furnished & Turnkey Reunion Resort this property offers a transferable golf membership — a rare perk in this prestigious community. Beautifully maintained second-floor condominium nestled in the guard-gated Heritage Crossing neighborhood of Reunion Resort. This spacious 3-bedroom, 2-bath unit spans 1,344 square feet and offers a split, open floor plan with high ceilings and abundant natural light throughout. Step into a fully equipped kitchen featuring solid wood cabinetry, granite countertops, stainless steel appliances, and a breakfast bar that flows seamlessly into the dining and living areas. The living room opens to a generous balcony with panoramic views of the golf course, perfect for relaxing or entertaining. The primary suite includes its own private balcony and a luxurious en-suite bathroom with a soaking tub and walk-in shower. Each bedroom is tastefully furnished, making this condo truly turnkey — ideal for full-time living, vacationing, or short-term rental investment.
Listing Information
Property Type: Residential, Condominium
Status: Active
Bedrooms: 3
Bathrooms: 2
Lot Size: 0.14 Acres
Square Feet: 1,344 sq ft
Year Built: 2005
Stories: 1 Story
Construction: Block,Stucco
Subdivision: Heritage Crossing Condo Ph 5
Foundation: Slab
County: Osceola
Room Information
Upper Floor
Primary Bedroom:
Kitchen:
Living Room:
Bathrooms
Full Baths: 2
Additonal Room Information
Laundry: Inside, Laundry Closet
Interior Features
Appliances: Electric Water Heater, Range, Refrigerator, Dishwasher, Disposal, Dryer, Washer
Flooring: Carpet,Ceramic Tile
Additional Interior Features: Ceiling Fan(s), Elevator, Tray Ceiling(s), Crown Molding, Solid Surface Counters, Stone Counters, Kitchen/Family Room Combo
Utilities
Water: Public
Sewer: Public Sewer
Other Utilities: Cable Connected,Electricity Connected,Sewer Connected
Cooling: Ceiling Fan(s), Central Air
Heating: Central, Electric
Exterior / Lot Features
Parking Description: Open
Roof: Shingle
Pool: In Ground, Community, Heated
Additional Exterior/Lot Features: In-Wall Pest Control System, French Patio Doors, Balcony, Balcony, Deck, Patio, Porch
Community Features
Community Features: Pool, Tennis Court(s), Sidewalks, Playground, Clubhouse, Golf, Gated, Park, Restaurant, Fitness, Golf Carts OK
Security Features: Gated Community, Gated with Guard
Association Amenities: Cable TV, Clubhouse, Fitness Center, Tennis Court(s), Recreation Facilities, Gated, Spa/Hot Tub, Golf Course
HOA Dues Include: Insurance, Pest Control, Association Management, Maintenance Structure, Pool(s), Security, Cable TV
Homeowners Association: Yes
HOA Dues: $630 / Monthly
Driving Directions
I-4 to exit 58, go East on 532 to Reunion Entrance on left. Take first right onto Heritage Crossing Way- show ID
Financial Considerations
Terms: Cash,Conventional
Tax/Property ID: 34-25-27-3466-0001-0E40
Tax Amount: 5411.09
Tax Year: 2024
A broker reciprocity listing courtesy: REDFIN CORPORATION
Based on information provided by Stellar MLS as distributed by the MLS GRID. Information from the Internet Data Exchange is provided exclusively for consumers’ personal, non-commercial use, and such information may not be used for any purpose other than to identify prospective properties consumers may be interested in purchasing. This data is deemed reliable but is not guaranteed to be accurate by Edina Realty, Inc., or by the MLS. Edina Realty, Inc., is not a multiple listing service (MLS), nor does it offer MLS access.
Copyright 2025 Stellar MLS as distributed by the MLS GRID. All Rights Reserved.
Payment Calculator
Interest rate and annual percentage rate (APR) are based on current market conditions, are for informational purposes only, are subject to change without notice and may be subject to pricing add-ons related to property type, loan amount, loan-to-value, credit score and other variables. Estimated closing costs used in the APR calculation are assumed to be paid by the borrower at closing. If the closing costs are financed, the loan, APR and payment amounts will be higher. If the down payment is less than 20%, mortgage insurance may be required and could increase the monthly payment and APR. Contact us for details. Additional loan programs may be available. Accuracy is not guaranteed, and all products may not be available in all borrower's geographical areas and are based on their individual situation. This is not a credit decision or a commitment to lend.
Sales History & Tax Summary for 1598 Heritage Crossing Court #201
Sales History
| Date | Price | Change |
|---|---|---|
| Currently not available. | ||
Tax Summary
| Tax Year | Estimated Market Value | Total Tax |
|---|---|---|
| Currently not available. | ||
Data powered by ATTOM Data Solutions. Copyright© 2025. Information deemed reliable but not guaranteed.
Schools
Schools nearby 1598 Heritage Crossing Court #201
| Schools in attendance boundaries | Grades | Distance | Rating |
|---|---|---|---|
| Loading... | |||
| Schools nearby | Grades | Distance | Rating |
|---|---|---|---|
| Loading... | |||
Data powered by ATTOM Data Solutions. Copyright© 2025. Information deemed reliable but not guaranteed.
The schools shown represent both the assigned schools and schools by distance based on local school and district attendance boundaries. Attendance boundaries change based on various factors and proximity does not guarantee enrollment eligibility. Please consult your real estate agent and/or the school district to confirm the schools this property is zoned to attend. Information is deemed reliable but not guaranteed.
SchoolDigger ® Rating
The SchoolDigger rating system is a 1-5 scale with 5 as the highest rating. SchoolDigger ranks schools based on test scores supplied by each state's Department of Education. They calculate an average standard score by normalizing and averaging each school's test scores across all tests and grades.
Coming soon properties will soon be on the market, but are not yet available for showings.