$1,179,500
1600 Gulf Boulevard #618 Clearwater, FL 33767 - GULF OF MEXICO
For Sale MLS# TB8464904
2 beds 2 baths 1,840 sq ft Condo
OPEN HOUSE: Sunday, 5/10 11:00 AM - 01:00 PM
Details for 1600 Gulf Boulevard #618
MLS# TB8464904
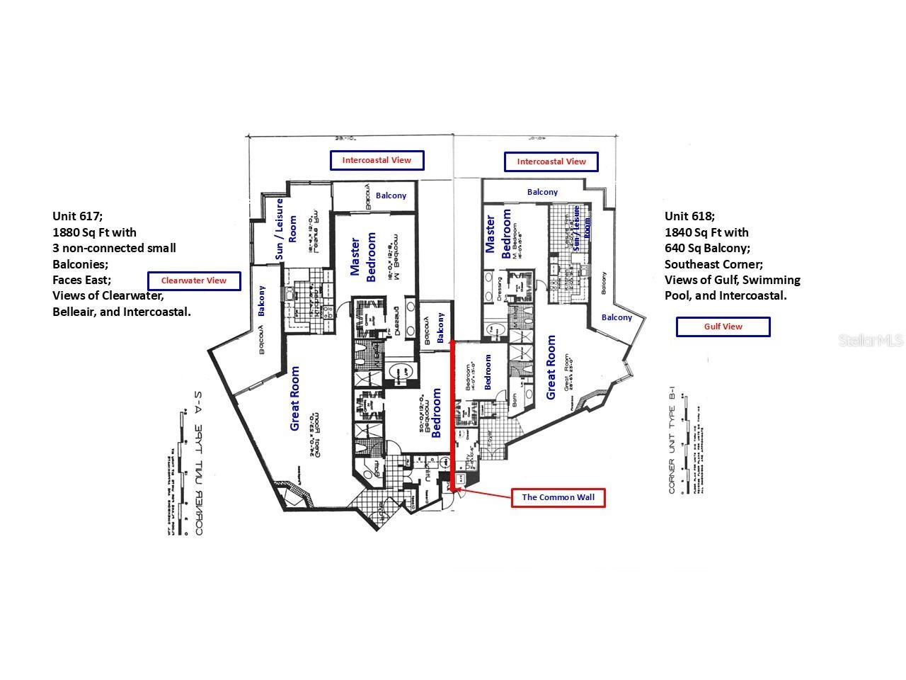
Description for 1600 Gulf Boulevard #618, Clearwater, FL, 33767 - GULF OF MEXICO
LUXURY, LIGHT & LOCATION: YOUR DREAM CLEARWATER CONDO Welcome to an extraordinary, fully updated beachside residence in Dan’s Island, one of Clearwater Beach’s most prestigious communities on exclusive Sand Key. Perched on the southeast corner of the sixth floor, this choice unit showcases sweeping, unobstructed views of the Gulf of Mexico, the Intracoastal Waterway, and south along Gulf Boulevard—capturing both sunrise and sunset from nearly every room. Lovingly cared for and sparingly used, this condo has had just two owners since new. The current owners purchased in 1994 and chose not to occupy or rent the home for 25 years, preserving its pristine condition. The residence has since been completely renovated and freshly painted, with thoughtful upgrades throughout. Highlights include NEW top-of-the-line LG Smart appliances (refrigerator, range/oven, dishwasher, microwave—April 2025), LG Smart Tower washer & dryer and sunroom TV (October 2023), and a Rheem 50-gallon water heater (October 2023). New Train HVAC System April 2026, Elevators and Roof are currently being replaced. PGT hurricane-impact sliders and windows have protected the home for years; notably, this unit has never experienced wind or water damage. The Milestone and Reserve Study are complete and fully funded, offering peace of mind. Every window and sliding glass door frames dramatic water views, flooding the home with natural light. A serene sky-blue palette in the Great Room enhances the indoor-outdoor connection, while engineered Brazilian hardwood floors add warmth and refined coastal style. The open-concept Great Room and dining area span an impressive 655 SF, anchored by a full wall of glass sliders and a coastal, wood-burning fireplace with custom mantle and mounted 60" TV. Step onto the wrap-around balcony—a remarkable 75-foot expanse (approximately 450 SF) with direct Gulf-front and Intracoastal vistas—perfect for entertaining, relaxing, or simply savoring the sea breeze. Composite Bahama shutters provide versatile light control and privacy in the Great Room and both bedrooms. New HVAC system being installed late January or February for this unit 618. RARE OPPORTUNITY: The adjacent unit (617) is also available, and the association allows the two units to be combined, creating a once-in-a-generation, side-by-side Gulf-front residence totaling 3,720 SF. More space than most single-family beachfront homes—with no maintenance. Available individually or as part of a rare side-by-side Gulf-Front Condo Combination Opportunity. What would YOU do with 3,720 SF on the Gulf? Experience timeless elegance, unmatched views, and the very best of Sand Key living in this exceptional Dan’s Island offering.
Listing Information
Property Type: Residential, Condominium
Status: Active
Bedrooms: 2
Bathrooms: 2
Lot Size: 0.09 Acres
Square Feet: 1,840 sq ft
Year Built: 1985
Stories: 1 Story
Construction: Concrete,Stucco
Subdivision: Dans Island On Sand Key Condo
Foundation: Slab
County: Pinellas
School Information
Elementary: Mildred Helms Elementary-Pn
Middle: Largo Middle-Pn
High: Largo High-Pn
Room Information
Main Floor
Bedroom 1: 12x13
Primary Bedroom: 15x16
Family Room: 9x13
Kitchen: 9x12
Living Room: 26x27
Bathrooms
Full Baths: 2
Additonal Room Information
Laundry: Inside, Laundry Room
Interior Features
Appliances: Wine Refrigerator, Electric Water Heater, Dishwasher, Disposal, Dryer, Washer, Microwave, Range, Refrigerator
Flooring: Linoleum,Tile,Vinyl,Wood
Doors/Windows: Double Pane Windows, Storm Window(s), Blinds, Window Treatments
Additional Interior Features: Walk-In Closet(s), Window Treatments, Living/Dining Room, Ceiling Fan(s), Elevator, Stone Counters
Utilities
Water: Public
Sewer: Public Sewer
Other Utilities: Cable Connected,Electricity Connected,Municipal Utilities,Sewer Connected,Water Connected
Cooling: Ceiling Fan(s), Central Air
Heating: Central
Exterior / Lot Features
Parking Description: Guest, Common
Roof: Other
Pool: Community, In Ground, Association, Heated
Lot View: Beach,Intercoastal,Ocean,Pool,Water
Additional Exterior/Lot Features: Sprinkler/Irrigation, Balcony, Storage, Outdoor Grill, Outdoor Kitchen, Lighting, Patio, Balcony, Covered, Wrap Around
Waterfront Details
Standard Water Body: GULF OF MEXICO
Water Front Features: Beach Access, Ocean Access, Gulf Access
Community Features
Community Features: Sidewalks, Pool, Waterfront, Street Lights, Gated, Racquetball, Fishing, Fitness, Water Access, Dock, Boat Slip, Community Mailbox, Clubhouse
Security Features: Security System, Fire Alarm, Fire Sprinkler System, Gated Community, Security Lights, Lobby Secured, Key Card Entry, Secured Garage/Parking, Security Gate, Gated with Guard
Association Amenities: Sauna, Pool, Recreation Facilities, Storage, Cable TV, Elevator(s), Security, Clubhouse, Fitness Center, Spa/Hot Tub, Basketball Court, Gated, Maintenance Grounds, Racquetball
HOA Dues Include: Reserve Fund, Maintenance Structure, Pool(s), Pest Control, Maintenance Grounds, Association Management, Insurance, Sewer, Security, Internet, Cable TV, Recreation Facilities, Water, Trash
Driving Directions
From the Belleair Causeway go North on Gulf Blvd (approx. 1 mile) to Dan's Island. Located on the West, Gulf side. Enter complex between the 2 buildings at the guardhouse gate. Turn right to building 1600. Unit 618
Financial Considerations
Terms: Cash,Conventional,VA Loan
Tax/Property ID: 30-29-15-20262-000-0618
Tax Amount: 5708.14
Tax Year: 2025
A broker reciprocity listing courtesy: KELLER WILLIAMS ST PETE REALTY
Based on information provided by Stellar MLS as distributed by the MLS GRID. Information from the Internet Data Exchange is provided exclusively for consumers’ personal, non-commercial use, and such information may not be used for any purpose other than to identify prospective properties consumers may be interested in purchasing. This data is deemed reliable but is not guaranteed to be accurate by Edina Realty, Inc., or by the MLS. Edina Realty, Inc., is not a multiple listing service (MLS), nor does it offer MLS access.
Copyright 2026 Stellar MLS as distributed by the MLS GRID. All Rights Reserved.
Payment Calculator
Interest rate and annual percentage rate (APR) are based on current market conditions, are for informational purposes only, are subject to change without notice and may be subject to pricing add-ons related to property type, loan amount, loan-to-value, credit score and other variables. Estimated closing costs used in the APR calculation are assumed to be paid by the borrower at closing. If the closing costs are financed, the loan, APR and payment amounts will be higher. If the down payment is less than 20%, mortgage insurance may be required and could increase the monthly payment and APR. Contact us for details. Additional loan programs may be available. Accuracy is not guaranteed, and all products may not be available in all borrower's geographical areas and are based on their individual situation. This is not a credit decision or a commitment to lend.
Sales History & Tax Summary for 1600 Gulf Boulevard #618
Sales History
| Date | Price | |
|---|---|---|
| Currently not available. | ||
Tax Summary
| Tax Year | Estimated Market Value | Total Tax |
|---|---|---|
| Currently not available. | ||
Data powered by ATTOM Data Solutions. Copyright© 2026. Information deemed reliable but not guaranteed.
Schools
Schools nearby 1600 Gulf Boulevard #618
| Schools in attendance boundaries | Grades | Distance | Rating |
|---|---|---|---|
| Loading... | |||
| Schools nearby | Grades | Distance | Rating |
|---|---|---|---|
| Loading... | |||
Data powered by ATTOM Data Solutions. Copyright© 2026. Information deemed reliable but not guaranteed.
The schools shown represent both the assigned schools and schools by distance based on local school and district attendance boundaries. Attendance boundaries change based on various factors and proximity does not guarantee enrollment eligibility. Please consult your real estate agent and/or the school district to confirm the schools this property is zoned to attend. Information is deemed reliable but not guaranteed.
SchoolDigger ® Rating
The SchoolDigger rating system is a 1-5 scale with 5 as the highest rating. SchoolDigger ranks schools based on test scores supplied by each state's Department of Education. They calculate an average standard score by normalizing and averaging each school's test scores across all tests and grades.
Coming soon properties will soon be on the market, but are not yet available for showings.