1600 N Old Coachman Road #709 Clearwater, FL 33765
For Sale MLS# TB8355888
1 beds 1 baths 492 sq ft Single Family
Details for 1600 N Old Coachman Road #709
MLS# TB8355888
Description for 1600 N Old Coachman Road #709, Clearwater, FL, 33765
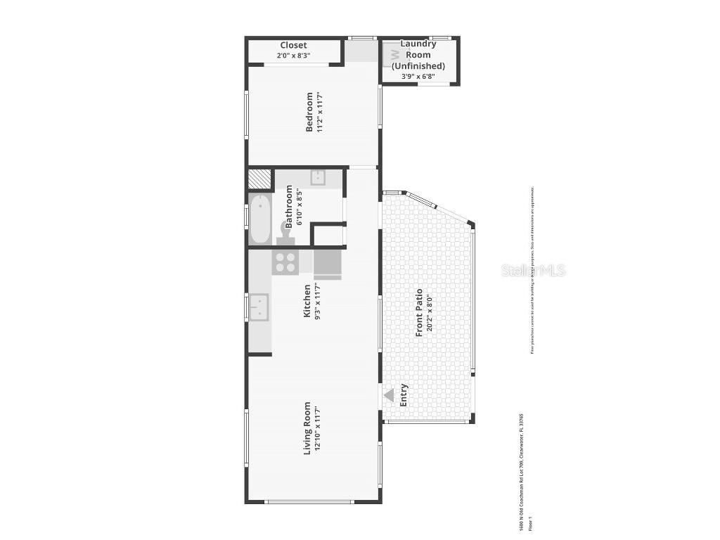
Beautiful 1-Bed 1-Bath Mobile Home Near the Beach-only $190 HOA - $69,500 (Clearwater) Non flood zone! 55+ sought after location in Clearwater, lowest maintenance fee in Pinellas County and NOT a Lot Rent!. This spacious and bright corner Unit offers a contemporary open floor plan that will please the eye and inspire the heart. The Home is being thoroughly updated and tastefully upgraded from the inside out to enhance looks and daily living comforts. It features: central air, resealed metal roof, all new and optimized plumbing work and faucets, straigtened ground structure support, replaced most wall panels, replaced and reinforced sub-floor topped off with wood laminate and vinyl luxury floors, four new vinyl windows, plenty of cabinets in the kitchen which includes two high and deep closets for pantry and home tools such as vacuum cleaner and step latter, tastefully decorated and color coordinated spacious bathroom with huge linen closet, ample vanity with drawers and a medicine cabinet. The bedroom has spacious sliding double door closet with built-in shelves for shoes and It has ample storage space for large luggage, built-in drawer dresser and another movable drawer dresser, laundry room with washer (attached to hot and cold hookups) with deep wall shelves for storage, newer paint all around and many other updates not readily visible in the photos. The package also includes if you wish! the custom made dining table, coffee table, home office desk set, couch, all window dressings, decorative set of lamps in the bedroom and many other usable and decorative items all around. $195 maintenance fee includes grounds maintenance, sewer, trash, water, recreational facilities, clubhouse and community laundry room. The reputable Alcove MHP is small and private 55+ resident owned community surrounded by Coachman Ridge Park, where you can enjoy walking trails, creeks, nature preserved areas, tennis and racquet ball courts. Also only 3 min walk is the Long Center which has fitness and gymnasium center, an Olympic-size pool, a heated training pool, soccer and playground fields at a nice discounted price with a silver sneakers membership. No pets, and no leasing. MINIMUM CREDIT SCORE REQUIRED FOR BUYERS; 725. Please call for your private viewing or a Realtime FaceTime Viewing.
Listing Information
Property Type: Residential, Mobile Home, Florida
Status: Active
Bedrooms: 1
Bathrooms: 1
Lot Size: 0.10 Acres
Square Feet: 492 sq ft
Year Built: 1972
Stories: 1 Story
Construction: Metal Siding
Subdivision: Alcove Mobile Home Community Unrec
Foundation: Crawlspace
County: Pinellas
Room Information
Main Floor
Porch: 8x20
Laundry: 7x4
Primary Bedroom: 12x11
Bathroom 1: 8x7
Kitchen: 12x9
Living Room: 12x12
Bathrooms
Full Baths: 1
Additonal Room Information
Laundry: Outside, Laundry Room
Interior Features
Appliances: Electric Water Heater, Range, Refrigerator
Flooring: Laminate,Luxury Vinyl
Basement: Crawl Space
Doors/Windows: Window Treatments
Additional Interior Features: Eat-In Kitchen, Living/Dining Room, Window Treatments, Main Level Primary, Kitchen/Family Room Combo
Utilities
Water: Public
Sewer: Public Sewer
Other Utilities: Cable Connected,Electricity Connected,Municipal Utilities,Water Connected
Cooling: Central Air
Heating: Central
Exterior / Lot Features
Roof: Other
Additional Exterior/Lot Features: Other, Lighting, Enclosed, Covered, Front Porch, Buyer Approval Required
Community Features
Community Features: Clubhouse
Association Amenities: Clubhouse
HOA Dues Include: Trash, Water, Sewer, Recreation Facilities, Maintenance Grounds
Homeowners Association: Yes
HOA Dues: $190 / Monthly
Driving Directions
US 19 North to Sunset Point Rd. to Old Coachman Rd to 1600 Old Coachman Rd. to 7th St to address.
Financial Considerations
Terms: Cash
Tax/Property ID: 07-29-16-00274-000-7090
Tax Amount: 75
Tax Year: 2024
A broker reciprocity listing courtesy: HOME SWEET HOME REAL ESTATE
Based on information provided by Stellar MLS as distributed by the MLS GRID. Information from the Internet Data Exchange is provided exclusively for consumers’ personal, non-commercial use, and such information may not be used for any purpose other than to identify prospective properties consumers may be interested in purchasing. This data is deemed reliable but is not guaranteed to be accurate by Edina Realty, Inc., or by the MLS. Edina Realty, Inc., is not a multiple listing service (MLS), nor does it offer MLS access.
Copyright 2026 Stellar MLS as distributed by the MLS GRID. All Rights Reserved.
Payment Calculator
Interest rate and annual percentage rate (APR) are based on current market conditions, are for informational purposes only, are subject to change without notice and may be subject to pricing add-ons related to property type, loan amount, loan-to-value, credit score and other variables. Estimated closing costs used in the APR calculation are assumed to be paid by the borrower at closing. If the closing costs are financed, the loan, APR and payment amounts will be higher. If the down payment is less than 20%, mortgage insurance may be required and could increase the monthly payment and APR. Contact us for details. Additional loan programs may be available. Accuracy is not guaranteed, and all products may not be available in all borrower's geographical areas and are based on their individual situation. This is not a credit decision or a commitment to lend.
Sales History & Tax Summary for 1600 N Old Coachman Road #709
Sales History
| Date | Price | |
|---|---|---|
| Currently not available. | ||
Tax Summary
| Tax Year | Estimated Market Value | Total Tax |
|---|---|---|
| Currently not available. | ||
Data powered by ATTOM Data Solutions. Copyright© 2026. Information deemed reliable but not guaranteed.
Schools
Schools nearby 1600 N Old Coachman Road #709
| Schools in attendance boundaries | Grades | Distance | Rating |
|---|---|---|---|
| Loading... | |||
| Schools nearby | Grades | Distance | Rating |
|---|---|---|---|
| Loading... | |||
Data powered by ATTOM Data Solutions. Copyright© 2026. Information deemed reliable but not guaranteed.
The schools shown represent both the assigned schools and schools by distance based on local school and district attendance boundaries. Attendance boundaries change based on various factors and proximity does not guarantee enrollment eligibility. Please consult your real estate agent and/or the school district to confirm the schools this property is zoned to attend. Information is deemed reliable but not guaranteed.
SchoolDigger ® Rating
The SchoolDigger rating system is a 1-5 scale with 5 as the highest rating. SchoolDigger ranks schools based on test scores supplied by each state's Department of Education. They calculate an average standard score by normalizing and averaging each school's test scores across all tests and grades.
Coming soon properties will soon be on the market, but are not yet available for showings.