$399,999
Off-Market Date: 01/30/20261600 Spray Terrace Saint Cloud, FL 34771
Pending MLS# O6373768
4 beds 2 baths 1,830 sq ft Single Family
Details for 1600 Spray Terrace
MLS# O6373768
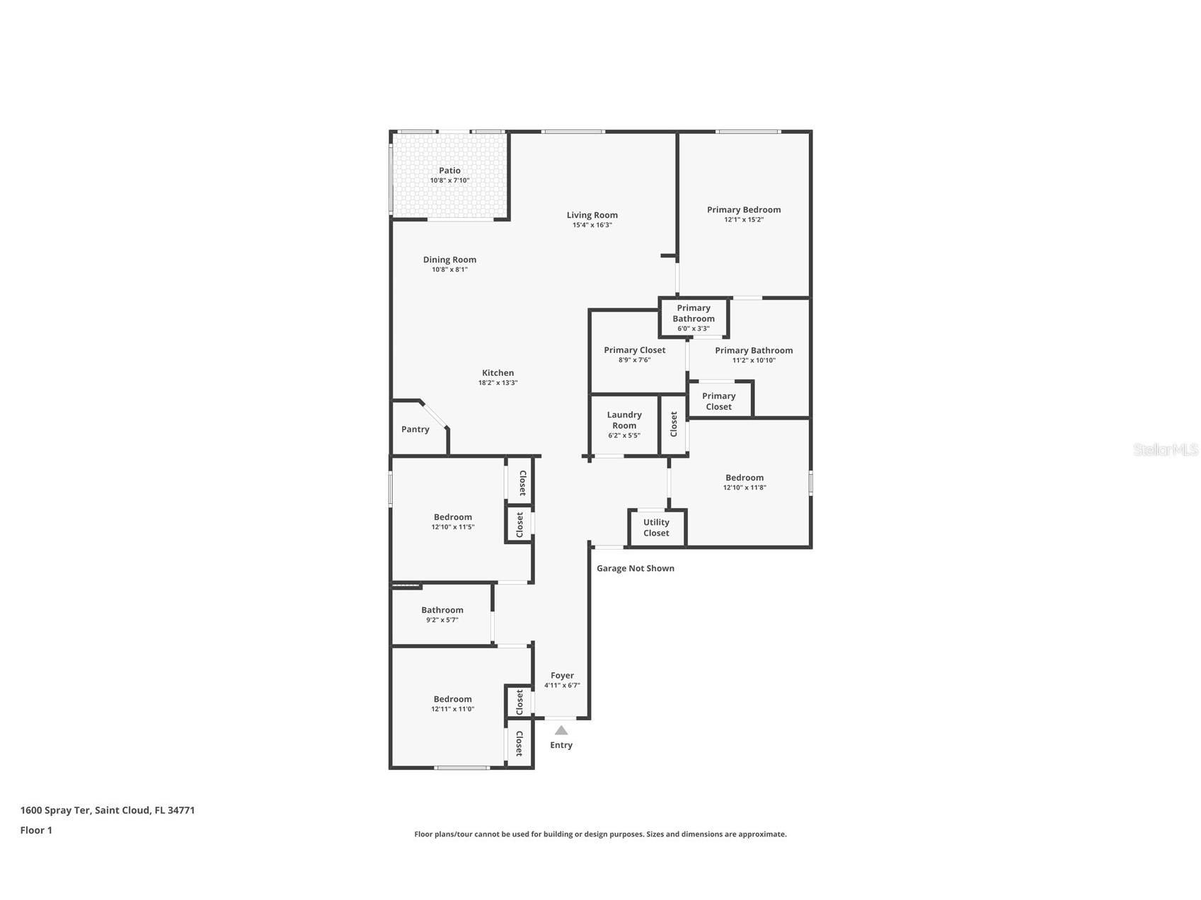
Description for 1600 Spray Terrace, Saint Cloud, FL, 34771
Under contract-accepting backup offers. Welcome to this beautifully upgraded 4-bedroom, 2-bath DR Horton home, perfectly positioned on a desirable corner lot in the Barrington community of Saint Cloud. Built in 2020, this single-story residence offers an open-concept layout with a true split-bedroom floor plan, filled with natural light and designed for easy, everyday living. The heart of the home features a spacious kitchen with stone countertops, white cabinetry, subway tile backsplash, stainless steel appliances, pantry storage, and a large center island with seating and decorative stone detail. The kitchen flows seamlessly into the dining and living areas, highlighted by tile flooring throughout the main spaces, modern pendant lighting, and clear sightlines ideal for entertaining. A stylish accent wall adds a custom touch and elevates the overall design. The private primary suite offers a relaxing retreat with plush carpet, a modern ceiling fan, abundant natural light, and a striking geometric accent wall. The en-suite bathroom features a dual-sink vanity with stone countertops, updated cabinetry, and an oversized walk-in shower with glass enclosure, floor-to-ceiling tile, and decorative accents. Three additional bedrooms are thoughtfully located near a full secondary bath, offering flexibility for guests, home office space, or family living. Step outside to enjoy the enclosed and screened lanai finished with epoxy flooring, opening to a fully fenced backyard with extensive paver patio space, custom seating areas, and string lighting that creates the perfect setting for outdoor entertaining. Additional upgrades include epoxy flooring in both the lanai and garage, rain gutters, irrigation, built-in exterior lighting, stone accents on the front elevation, and well-maintained landscaping that enhances curb appeal. Conveniently located near Narcoossee Road with easy access to Lake Nona, major highways, shopping, dining, and top-rated schools. No CDD, and low HOA. This home is truly move-in ready and shows pride of ownership throughout. Schedule your private showing today.
Listing Information
Property Type: Residential, Single Family Residence
Status: Pending
Bedrooms: 4
Bathrooms: 2
Lot Size: 0.16 Acres
Square Feet: 1,830 sq ft
Year Built: 2020
Garage: Yes
Stories: 1 Story
Construction: Block,Stucco
Subdivision: Barrington
Builder: DR Horton
Foundation: Slab
County: Osceola
School Information
Elementary: Narcoossee Elementary
Middle: Narcoossee Middle
High: Tohopekaliga High School
Room Information
Main Floor
Living Room:
Family Room:
Kitchen:
Porch:
Laundry:
Bedroom 4:
Bedroom 3:
Bedroom 2:
Primary Bathroom:
Primary Bedroom:
Dining Room:
Bathrooms
Full Baths: 2
Additonal Room Information
Laundry: Laundry Room
Interior Features
Appliances: Electric Water Heater, Range, Refrigerator, Microwave, Dishwasher, Disposal
Flooring: Carpet,Tile
Doors/Windows: Blinds, Window Treatments
Additional Interior Features: Eat-In Kitchen, Split Bedrooms, Walk-In Closet(s), Window Treatments, Built-in Features, Living/Dining Room, Ceiling Fan(s), Open Floorplan, Main Level Primary, Kitchen/Family Room Combo, Stone Counters, Wood Cabinets
Utilities
Water: Public
Sewer: Public Sewer
Other Utilities: Municipal Utilities
Cooling: Ceiling Fan(s), Central Air
Heating: Central
Exterior / Lot Features
Attached Garage: Attached Garage
Garage Spaces: 2
Parking Description: Garage Door Opener, on street, Garage, driveway
Roof: Shingle
Fencing: fenced
Additional Exterior/Lot Features: Rain Gutters, Sprinkler/Irrigation, Lighting, Screened, Deck, Patio, Porch, Rear Porch, Corner Lot, Flat, Level, Landscaped
Community Features
Community Features: Sidewalks
Homeowners Association: Yes
HOA Dues: $313 / Quarterly
Driving Directions
Directions: 1. Head south on Narcoossee Rd (FL-15/FL-417 area) toward Saint Cloud. 2. Continue straight for approximately 10–12 miles. 3. Turn left onto Jones Rd (watch for the light/intersection after passing Silver Creek Ct). 4. Follow Jones Rd for about 1 mile. 5. Turn right onto Spray Terrace. 6. 600 Spray Ter will be on your left side – it’s a corner lot property.
Financial Considerations
Terms: Cash,Conventional,FHA,Other,VA Loan
Tax/Property ID: 17-25-31-3347-0001-0320
Tax Amount: 3886
Tax Year: 2024
A broker reciprocity listing courtesy: REAL BROKER, LLC
Based on information provided by Stellar MLS as distributed by the MLS GRID. Information from the Internet Data Exchange is provided exclusively for consumers’ personal, non-commercial use, and such information may not be used for any purpose other than to identify prospective properties consumers may be interested in purchasing. This data is deemed reliable but is not guaranteed to be accurate by Edina Realty, Inc., or by the MLS. Edina Realty, Inc., is not a multiple listing service (MLS), nor does it offer MLS access.
Copyright 2026 Stellar MLS as distributed by the MLS GRID. All Rights Reserved.
Sales History & Tax Summary for 1600 Spray Terrace
Sales History
| Date | Price | |
|---|---|---|
| Currently not available. | ||
Tax Summary
| Tax Year | Estimated Market Value | Total Tax |
|---|---|---|
| Currently not available. | ||
Data powered by ATTOM Data Solutions. Copyright© 2026. Information deemed reliable but not guaranteed.
Schools
Schools nearby 1600 Spray Terrace
| Schools in attendance boundaries | Grades | Distance | Rating |
|---|---|---|---|
| Loading... | |||
| Schools nearby | Grades | Distance | Rating |
|---|---|---|---|
| Loading... | |||
Data powered by ATTOM Data Solutions. Copyright© 2026. Information deemed reliable but not guaranteed.
The schools shown represent both the assigned schools and schools by distance based on local school and district attendance boundaries. Attendance boundaries change based on various factors and proximity does not guarantee enrollment eligibility. Please consult your real estate agent and/or the school district to confirm the schools this property is zoned to attend. Information is deemed reliable but not guaranteed.
SchoolDigger ® Rating
The SchoolDigger rating system is a 1-5 scale with 5 as the highest rating. SchoolDigger ranks schools based on test scores supplied by each state's Department of Education. They calculate an average standard score by normalizing and averaging each school's test scores across all tests and grades.
Coming soon properties will soon be on the market, but are not yet available for showings.