1601 N Tee Time Terrace Hernando, FL 34442
For Sale MLS# OM718305
3 beds 2 baths 2,899 sq ft Single Family
Details for 1601 N Tee Time Terrace
MLS# OM718305
Description for 1601 N Tee Time Terrace, Hernando, FL, 34442
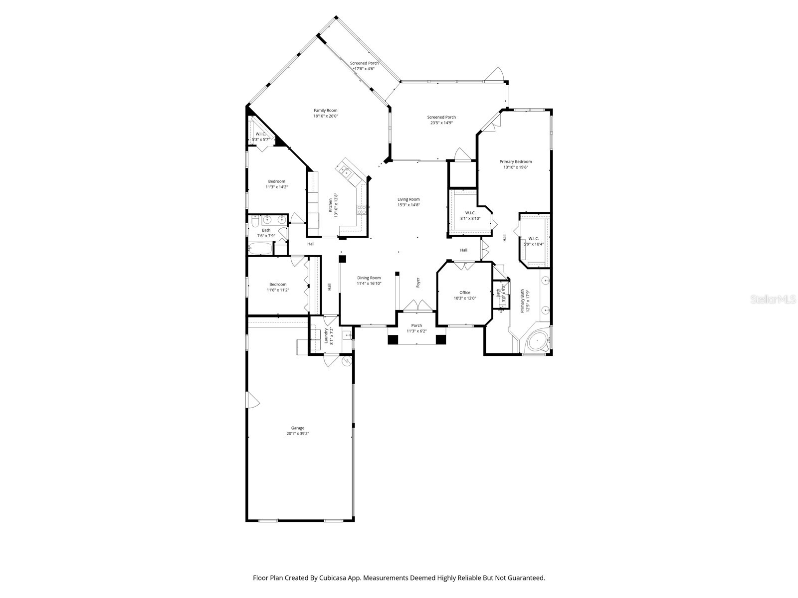
Welcome to this recently updated Terra Vista/Foxfire home that provides Florida resort-style living… at its best! This beautifully situated Fox Fire home is only approximately 102 steps away from the full-service, Bella Vita Spa & Fitness Center’s Front Door. And it is an even shorter stroll, to where many Terra Vista Homeowners “start and/or end their day”, … walking the tree/flower-lined sidewalks of the very popular Fenway-SkyView Crossing, Fitness/Walking Course. There are many, many Terra Vista resort-style activities to enjoy, right from your front doorstep, when living in this Foxfire Community home. Foxfire is a smaller, one-entrance “pocket community”, where listings seldom come to market. Inside this home is almost 3000 sqft of living area, where every detail has been cared for and, is “move-in ready”. This remodeled/updated home has an Open Floor Plan with abundant natural light, 10 &12 ft ceilings and features: … 3 Bedrooms, 2 full Baths, formal Living, Dinning & Family rooms, a large Office AND an oversized Garage that easily handles 2 cars, golf cart, workshop area with cabinet/counter storage and a garage refrigerator. Additionally, the oversized Master Bedroom comes with updated, double cordless mini-blind French Doors, leading to a covered Lanai. And, the Master Bath has been totally remodeled with granite vanity tops, vessel sinks, 2’X1’ tile, Jacuzzi tub, 19” toilets and a large glass enclosed walk-in shower. The Kitchen Area was remodeled featuring a nice breakfast bar/counter, breakfast table area, equipped with all GE Pro Appliances, … all overlooking a large Family Room with large glass slider & view windows. Furthermore, this home is orientated on a “Morning Sun”, unobstructed hill-view lot. At 131 feet above sea level, you’ll love the sense of space and serenity this Foxfire home offers. Along with living in Foxfire, there is so much to enjoy residing in Terra Vista. Live music and dancing at the Tiki Bar, Grill & SkyView Club Restaurants; multiple Golf courses, Golf Simulator, Pickleball and Club Tennis (on both traditional and Har-Tru courts) with club house & shaded gazebo viewing areas. Three well equipped Fitness Centers, Olympic-sized pools, Paddle-Ball courts and countless club activities available from cards, billiards, special interests, community gatherings and club/community daytrips. What’s more, everything you might need is just minutes away, from good shopping; Hospitals, ERs & Doctors; and variety of popular restaurants, cafes and service shops options.
Listing Information
Property Type: Residential, Single Family Residence
Status: Active
Bedrooms: 3
Bathrooms: 2
Lot Size: 0.36 Acres
Square Feet: 2,899 sq ft
Year Built: 2005
Garage: Yes
Stories: 1 Story
Construction: Block,Stucco
Subdivision: Foxfire
Foundation: Slab
County: Citrus
Room Information
Main Floor
Kitchen:
Living Room:
Primary Bedroom: 19x14
Bathrooms
Full Baths: 2
Additonal Room Information
Laundry: Inside, Common Area
Interior Features
Appliances: Built-In Oven, Range Hood, Dishwasher, Disposal, Microwave, Range, Refrigerator
Flooring: Carpet,Engineered Hardwood,Tile
Doors/Windows: Window Treatments, Blinds
Additional Interior Features: Walk-In Closet(s), Window Treatments, Split Bedrooms, Ceiling Fan(s), Tray Ceiling(s), Built-in Features, High Ceilings, Stone Counters, Wood Cabinets, Main Level Primary, Crown Molding
Utilities
Water: Public
Sewer: Public Sewer
Other Utilities: Cable Connected,Electricity Connected,Propane,Underground Utilities
Cooling: Ceiling Fan(s), Central Air
Heating: Heat Pump
Exterior / Lot Features
Attached Garage: Attached Garage
Garage Spaces: 3
Roof: Tile
Pool: Community, Association
Additional Exterior/Lot Features: Sprinkler/Irrigation, Rain Gutters, Outdoor Grill, Lighting
Community Features
Community Features: Golf, Dog Park, Golf Carts OK
Association Amenities: Pickleball, Shuffleboard Court, Racquetball, Park, Maintenance Grounds, Gated, Spa/Hot Tub, Golf Course, Trail(s), Recreation Facilities, Playground, Clubhouse, Fitness Center, Security, Basketball Court, Cable TV, Other, Tennis Court(s), Pool, Sauna
HOA Dues Include: Internet, Taxes, Cable TV, Security, Recreation Facilities, Insurance, Maintenance Grounds, Pest Control, Pool(s), Reserve Fund, Road Maintenance, Common Areas
Homeowners Association: Yes
HOA Dues: $18 / Monthly
Driving Directions
From Norvell Bryant Hwy - (MAIN GATE) - rte 486 to TERRA VISTA GATE - continue to roundabout - make a right onto FENWAY DRIVE going West and make a left at FOXFIRE Entrance - and home is on the left 1601 N Tee Time
Financial Considerations
Terms: Cash,Conventional,FHA,VA Loan
Tax/Property ID: 18E-18S-25-0220-00000-0270
Tax Amount: 4889
Tax Year: 2025
A broker reciprocity listing courtesy: REMAX REALTY ONE
Based on information provided by Stellar MLS as distributed by the MLS GRID. Information from the Internet Data Exchange is provided exclusively for consumers’ personal, non-commercial use, and such information may not be used for any purpose other than to identify prospective properties consumers may be interested in purchasing. This data is deemed reliable but is not guaranteed to be accurate by Edina Realty, Inc., or by the MLS. Edina Realty, Inc., is not a multiple listing service (MLS), nor does it offer MLS access.
Copyright 2026 Stellar MLS as distributed by the MLS GRID. All Rights Reserved.
Payment Calculator
Interest rate and annual percentage rate (APR) are based on current market conditions, are for informational purposes only, are subject to change without notice and may be subject to pricing add-ons related to property type, loan amount, loan-to-value, credit score and other variables. Estimated closing costs used in the APR calculation are assumed to be paid by the borrower at closing. If the closing costs are financed, the loan, APR and payment amounts will be higher. If the down payment is less than 20%, mortgage insurance may be required and could increase the monthly payment and APR. Contact us for details. Additional loan programs may be available. Accuracy is not guaranteed, and all products may not be available in all borrower's geographical areas and are based on their individual situation. This is not a credit decision or a commitment to lend.
Sales History & Tax Summary for 1601 N Tee Time Terrace
Sales History
| Date | Price | |
|---|---|---|
| Currently not available. | ||
Tax Summary
| Tax Year | Estimated Market Value | Total Tax |
|---|---|---|
| Currently not available. | ||
Data powered by ATTOM Data Solutions. Copyright© 2026. Information deemed reliable but not guaranteed.
Schools
Schools nearby 1601 N Tee Time Terrace
| Schools in attendance boundaries | Grades | Distance | Rating |
|---|---|---|---|
| Loading... | |||
| Schools nearby | Grades | Distance | Rating |
|---|---|---|---|
| Loading... | |||
Data powered by ATTOM Data Solutions. Copyright© 2026. Information deemed reliable but not guaranteed.
The schools shown represent both the assigned schools and schools by distance based on local school and district attendance boundaries. Attendance boundaries change based on various factors and proximity does not guarantee enrollment eligibility. Please consult your real estate agent and/or the school district to confirm the schools this property is zoned to attend. Information is deemed reliable but not guaranteed.
SchoolDigger ® Rating
The SchoolDigger rating system is a 1-5 scale with 5 as the highest rating. SchoolDigger ranks schools based on test scores supplied by each state's Department of Education. They calculate an average standard score by normalizing and averaging each school's test scores across all tests and grades.
Coming soon properties will soon be on the market, but are not yet available for showings.