1604 Leland Drive Sun City Center, FL 33573
For Sale MLS# TB8427797
2 beds 2 baths 1,394 sq ft Condo
Details for 1604 Leland Drive
MLS# TB8427797
Description for 1604 Leland Drive, Sun City Center, FL, 33573
Short Sale. Accepting all offers! Enjoy carefree Florida living in this beautifully updated 2-bedroom, 2-bath condo with a 2-car garage and dedicated golf cart parking, located in the desirable Kings Point community of Sun City Center. Step into a spacious living area with laminate flooring and abundant natural light. The dining area features floor-to-ceiling windows with views into the kitchen and breakfast bar, making it ideal for everyday living and entertaining. The kitchen offers stone countertops, plenty of cabinet space, and access to the bright Florida room—perfect for relaxing or hosting guests. The primary suite features laminate flooring, large windows, and a stunning 2025-renovated en suite with a walk-in glass shower, elegant tile, stone countertops, and double vessel sinks. The second bedroom is generously sized and located near the updated guest bath. This home features tile flooring throughout, with the exception of the living room and primary bedroom, which have laminate. Enjoy the convenience of washer and dryer hookups in the garage, along with a water softener and 2025-installed electrical setup for a generator, ideal for peace of mind during hurricane season. Major updates include: 2022 – New water heater, new AC, new ductwork, new electric panel, and all new fans and lights. 2025 – New dishwasher, new garbage disposal, and remodeled primary bath. You’ll love the gated community of Kings Point, which has amazing facilities, pools, clubs and events just waiting for you to enjoy. Located between Sarasota and Tampa, this home is perfectly positioned for a convenient ride to airports, great shopping, dining, and professional entertainment. With easy access to award-winning, sandy beaches, you’ll experience the best of all worlds—without the stress of big city life. Leave the hustle behind and embrace a new chapter in Sun City Center, Florida, the state's top-ranked and most affordable 55+ retirement community. Relax in the Florida room or unwind on the covered back patio—either way, you’ll love the lifestyle and amenities that Kings Point has to offer!
Listing Information
Property Type: Residential, Condominium
Status: Active
Bedrooms: 2
Bathrooms: 2
Lot Size: 0.05 Acres
Square Feet: 1,394 sq ft
Year Built: 1988
Garage: Yes
Stories: 1 Story
Construction: Block,Stucco
Subdivision: Lancaster Ii Condo
Foundation: Slab
County: Hillsborough
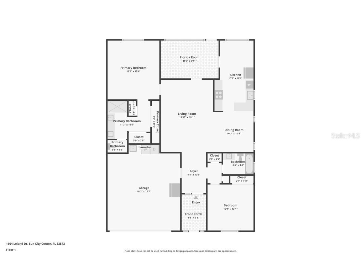
Room Information
Main Floor
Porch: 9.6x6.6
Foyer: 10.5x6.6
Florida Room: 9.11x15.3
Dining Room: 10.6x10.3
Bedroom 2: 12.1x12.1
Living Room: 19.1x13.1
Kitchen: 18.6x10.3
Primary Bedroom: 15.6x13.8
Bathrooms
Full Baths: 2
Additonal Room Information
Laundry: In Garage
Interior Features
Appliances: Dishwasher, Range, Refrigerator
Flooring: Ceramic Tile,Laminate
Accessibility: Wheelchair Access
Additional Interior Features: Eat-In Kitchen, Walk-In Closet(s), Ceiling Fan(s), High Ceilings, Living/Dining Room, Built-in Features, Open Floorplan, Solid Surface Counters, Wood Cabinets
Utilities
Water: Public
Sewer: Public Sewer
Other Utilities: Cable Available,Electricity Available
Cooling: Ceiling Fan(s), Central Air
Heating: Central
Exterior / Lot Features
Attached Garage: Attached Garage
Garage Spaces: 2
Parking Description: Golf Cart Garage, driveway
Roof: Shingle
Pool: Association, Community
Additional Exterior/Lot Features: Other, Patio, Covered, Enclosed, Screened, Rear Porch, Front Porch, Flat, Level, Landscaped, City Lot, Buyer Approval Required, Outside City Limits
Community Features
Community Features: Community Mailbox, Clubhouse, Restaurant, Fitness, Golf Carts OK, Gated, Golf, Handicap Access, Tennis Court(s), Pool, Sidewalks
Security Features: Gated Community, Gated with Guard
Association Amenities: Security, Recreation Facilities, Tennis Court(s), Clubhouse, Fitness Center, Cable TV, Pool, Golf Course, Gated, Shuffleboard Court, Maintenance Grounds, Pickleball
HOA Dues Include: Pool(s), Maintenance Structure, Pest Control, Reserve Fund, Road Maintenance, Sewer, Water, Internet, Cable TV, Recreation Facilities, Security
Driving Directions
Heading East on College Ave towards Sun City Center, turn right onto Kings Blvd, right onto Hammersmith Dr, right onto Latham Ln, left onto Leland, home is on the left.
Financial Considerations
Terms: Cash,Conventional
Tax/Property ID: U-14-32-19-1ZG-000000-00021.0
Tax Amount: 2446.07
Tax Year: 2024
A broker reciprocity listing courtesy: KELLER WILLIAMS SOUTH SHORE
Based on information provided by Stellar MLS as distributed by the MLS GRID. Information from the Internet Data Exchange is provided exclusively for consumers’ personal, non-commercial use, and such information may not be used for any purpose other than to identify prospective properties consumers may be interested in purchasing. This data is deemed reliable but is not guaranteed to be accurate by Edina Realty, Inc., or by the MLS. Edina Realty, Inc., is not a multiple listing service (MLS), nor does it offer MLS access.
Copyright 2026 Stellar MLS as distributed by the MLS GRID. All Rights Reserved.
Payment Calculator
Interest rate and annual percentage rate (APR) are based on current market conditions, are for informational purposes only, are subject to change without notice and may be subject to pricing add-ons related to property type, loan amount, loan-to-value, credit score and other variables. Estimated closing costs used in the APR calculation are assumed to be paid by the borrower at closing. If the closing costs are financed, the loan, APR and payment amounts will be higher. If the down payment is less than 20%, mortgage insurance may be required and could increase the monthly payment and APR. Contact us for details. Additional loan programs may be available. Accuracy is not guaranteed, and all products may not be available in all borrower's geographical areas and are based on their individual situation. This is not a credit decision or a commitment to lend.
Sales History & Tax Summary for 1604 Leland Drive
Sales History
| Date | Price | |
|---|---|---|
| Currently not available. | ||
Tax Summary
| Tax Year | Estimated Market Value | Total Tax |
|---|---|---|
| Currently not available. | ||
Data powered by ATTOM Data Solutions. Copyright© 2026. Information deemed reliable but not guaranteed.
Schools
Schools nearby 1604 Leland Drive
| Schools in attendance boundaries | Grades | Distance | Rating |
|---|---|---|---|
| Loading... | |||
| Schools nearby | Grades | Distance | Rating |
|---|---|---|---|
| Loading... | |||
Data powered by ATTOM Data Solutions. Copyright© 2026. Information deemed reliable but not guaranteed.
The schools shown represent both the assigned schools and schools by distance based on local school and district attendance boundaries. Attendance boundaries change based on various factors and proximity does not guarantee enrollment eligibility. Please consult your real estate agent and/or the school district to confirm the schools this property is zoned to attend. Information is deemed reliable but not guaranteed.
SchoolDigger ® Rating
The SchoolDigger rating system is a 1-5 scale with 5 as the highest rating. SchoolDigger ranks schools based on test scores supplied by each state's Department of Education. They calculate an average standard score by normalizing and averaging each school's test scores across all tests and grades.
Coming soon properties will soon be on the market, but are not yet available for showings.