16082 SW 24th Place Ocala, FL 34481
Pending MLS# OM703081
3 beds 2 baths 1,512 sq ft Single Family
Details for 16082 SW 24th Place
MLS# OM703081
Description for 16082 SW 24th Place, Ocala, FL, 34481
Nestled on a beautifully landscaped 1+ acre lot, this exceptional property offers the perfect blend of privacy, space, and comfort. Surrounded by mature trees and open skies, the home features 3 bedrooms and 2 bathrooms, along with generous living areas ideal for both relaxation and entertaining. Step outside to enjoy expansive grounds, ideal for gardening, recreation, or even future expansion. Whether you're dreaming of a backyard oasis, a workshop, or simply room to roam, this property delivers. Located in a peaceful, sought-after neighborhood, yet conveniently close to local amenities, it’s the best of both worlds. This is more than a house—it’s a lifestyle. Call today for a private showing or stop by. Come see us today!
Listing Information
Property Type: Residential, Manufactured Home
Status: Pending
Bedrooms: 3
Bathrooms: 2
Lot Size: 1.14 Acres
Square Feet: 1,512 sq ft
Year Built: 1988
Stories: 1 Story
Construction: Vinyl Siding
Subdivision: Westwood Acres N
Foundation: Other
County: Marion
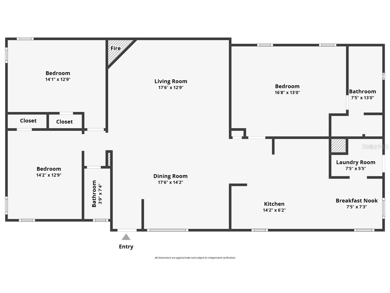
Room Information
Main Floor
Dinette: 7x7
Living Room: 12x17
Laundry: 5x7
Bathroom 1: 7x3
Primary Bathroom: 13x17
Bedroom 2: 12x14
Bedroom 1: 12x14
Primary Bedroom: 13x16
Kitchen: 6x14
Dining Room: 14x17
Bathrooms
Full Baths: 2
Additonal Room Information
Laundry: Laundry Room
Interior Features
Appliances: Dishwasher, Dryer, Microwave, Range, Refrigerator, Washer
Flooring: Vinyl
Fireplaces: Gas
Additional Interior Features: Ceiling Fan(s)
Utilities
Water: Well
Sewer: Septic Tank
Other Utilities: Natural Gas Available,Water Available
Cooling: Central Air, Ceiling Fan(s)
Heating: Gas
Exterior / Lot Features
Roof: Shingle
Pool: Above Ground
Lot Dimensions: 138x160
Additional Exterior/Lot Features: Storage
Driving Directions
Go down state road FL-40 W. Turn right onto SW 161st Ct Rd. Turn left onto SW 47 St. Turn right onto SW 165th Avenue Rd. Turn right onto SW 24th Pl. Destination will be on the right 16082 SW 24th Pl Ocala, FL 34481.
Financial Considerations
Terms: Cash,Conventional,FHA,VA Loan
Tax/Property ID: 2091-011-008
Tax Amount: 1730.56
Tax Year: 2024
A broker reciprocity listing courtesy: LPT REALTY, LLC
Based on information provided by Stellar MLS as distributed by the MLS GRID. Information from the Internet Data Exchange is provided exclusively for consumers’ personal, non-commercial use, and such information may not be used for any purpose other than to identify prospective properties consumers may be interested in purchasing. This data is deemed reliable but is not guaranteed to be accurate by Edina Realty, Inc., or by the MLS. Edina Realty, Inc., is not a multiple listing service (MLS), nor does it offer MLS access.
Copyright 2026 Stellar MLS as distributed by the MLS GRID. All Rights Reserved.
Sales History & Tax Summary for 16082 SW 24th Place
Sales History
| Date | Price | |
|---|---|---|
| Currently not available. | ||
Tax Summary
| Tax Year | Estimated Market Value | Total Tax |
|---|---|---|
| Currently not available. | ||
Data powered by ATTOM Data Solutions. Copyright© 2026. Information deemed reliable but not guaranteed.
Schools
Schools nearby 16082 SW 24th Place
| Schools in attendance boundaries | Grades | Distance | Rating |
|---|---|---|---|
| Loading... | |||
| Schools nearby | Grades | Distance | Rating |
|---|---|---|---|
| Loading... | |||
Data powered by ATTOM Data Solutions. Copyright© 2026. Information deemed reliable but not guaranteed.
The schools shown represent both the assigned schools and schools by distance based on local school and district attendance boundaries. Attendance boundaries change based on various factors and proximity does not guarantee enrollment eligibility. Please consult your real estate agent and/or the school district to confirm the schools this property is zoned to attend. Information is deemed reliable but not guaranteed.
SchoolDigger ® Rating
The SchoolDigger rating system is a 1-5 scale with 5 as the highest rating. SchoolDigger ranks schools based on test scores supplied by each state's Department of Education. They calculate an average standard score by normalizing and averaging each school's test scores across all tests and grades.
Coming soon properties will soon be on the market, but are not yet available for showings.