$599,900
Off-Market Date: 04/01/202616095 Aralia Drive Punta Gorda, FL 33955
Pending MLS# C7520230
3 beds 2 baths 1,395 sq ft Single Family
Details for 16095 Aralia Drive
MLS# C7520230
Description for 16095 Aralia Drive, Punta Gorda, FL, 33955
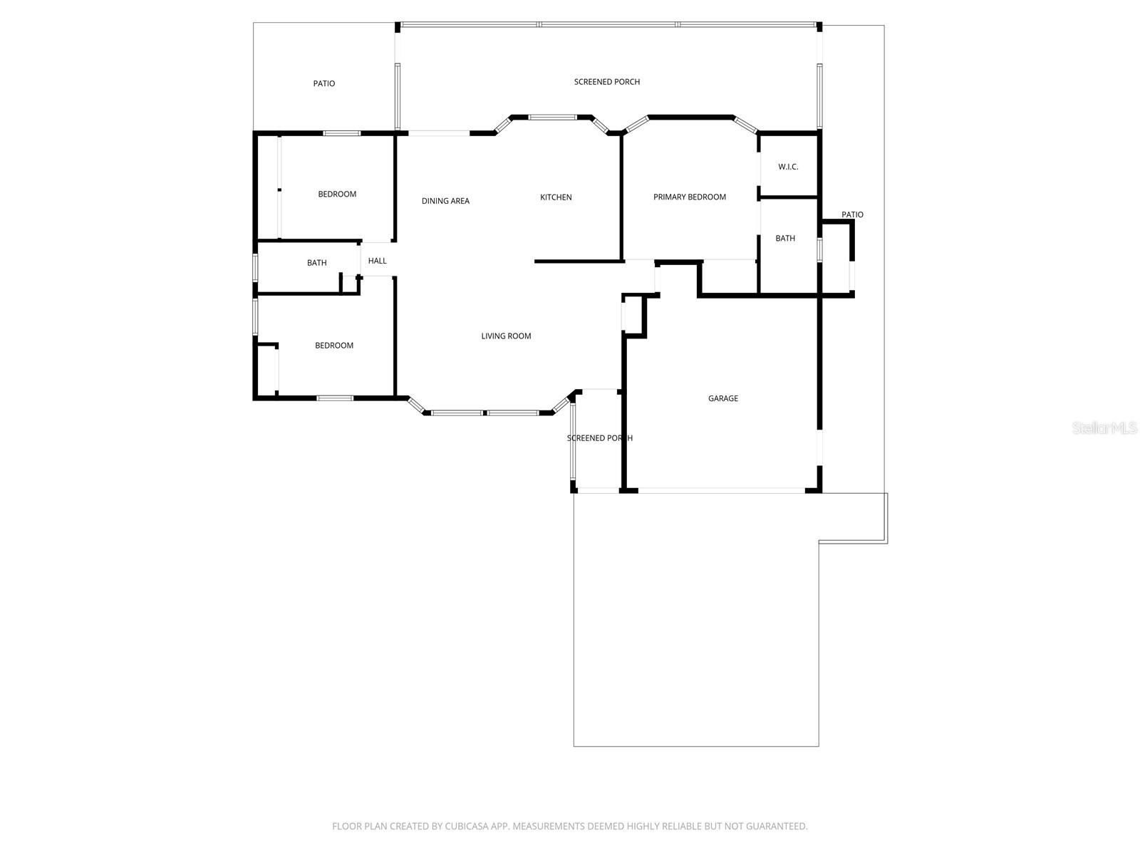
Under contract-accepting backup offers. RARE OPPORTUNITY ON ALMOST 3 ACRES – AGRICULTURAL ZONING! Property consists of two separate folio numbers, presenting excellent investment or development potential. Enjoy peaceful country living with room to grow, bring your horses and animals, and experience true privacy. This unique property sits on NEARLY 3 ACRES of usable land and features a PRIVATE POND, creating a serene and picturesque setting. The home offers a bright, open layout with high ceilings, elegant tile flooring throughout the main living areas, and abundant natural light. Spacious living and dining areas flow seamlessly into a functional kitchen, making it ideal for everyday living and entertaining. Step outside to a large covered and screened lanai, perfect for relaxing while overlooking the expansive grounds and tranquil pond views. Also, a separate block construction Storage/garage. The property provides endless possibilities with AGRICULTURAL ZONING, mature trees, and wide-open space—ideal for farming, livestock, workshops, barns, RVs, boats, or future expansion. **No HOA** offers complete freedom and flexibility. A rare opportunity to enjoy a peaceful rural lifestyle with modern comforts, all while remaining conveniently located near shopping, dining, and major roadways. Minutes from Cape Coral!
Listing Information
Property Type: Residential, Single Family Residence
Status: Pending
Bedrooms: 3
Bathrooms: 2
Lot Size: 2.85 Acres
Square Feet: 1,395 sq ft
Year Built: 2004
Garage: Yes
Stories: 1 Story
Construction: Block
Subdivision: Orange Grove Park Pt 01
Foundation: Slab
County: Charlotte
Room Information
Main Floor
Primary Bedroom:
Living Room:
Kitchen:
Bathrooms
Full Baths: 2
Additonal Room Information
Laundry: In Garage
Interior Features
Appliances: Dishwasher, Microwave, Range, Refrigerator
Flooring: Vinyl
Additional Interior Features: High Ceilings
Utilities
Water: Well
Sewer: Septic Tank
Other Utilities: Other
Cooling: Central Air
Heating: Central
Exterior / Lot Features
Attached Garage: Attached Garage
Garage Spaces: 2
Roof: Shingle
Lot View: Pond,Water
Additional Exterior/Lot Features: Storage, Other, French Patio Doors, Rear Porch, Patio, Cleared, Farm, Pasture
Waterfront Details
Water Front Features: Pond
Driving Directions
Hwy 41 South to South Punta Gorda, Left on Tangelo Road, which turns into Aralia Drive.
Financial Considerations
Terms: Cash,Conventional,FHA,VA Loan
Tax/Property ID: 422430201016
Tax Amount: 5435.11
Tax Year: 2025
A broker reciprocity listing courtesy: DELPHI INVESTMENT REALTY
Based on information provided by Stellar MLS as distributed by the MLS GRID. Information from the Internet Data Exchange is provided exclusively for consumers’ personal, non-commercial use, and such information may not be used for any purpose other than to identify prospective properties consumers may be interested in purchasing. This data is deemed reliable but is not guaranteed to be accurate by Edina Realty, Inc., or by the MLS. Edina Realty, Inc., is not a multiple listing service (MLS), nor does it offer MLS access.
Copyright 2026 Stellar MLS as distributed by the MLS GRID. All Rights Reserved.
Sales History & Tax Summary for 16095 Aralia Drive
Sales History
| Date | Price | |
|---|---|---|
| Currently not available. | ||
Tax Summary
| Tax Year | Estimated Market Value | Total Tax |
|---|---|---|
| Currently not available. | ||
Data powered by ATTOM Data Solutions. Copyright© 2026. Information deemed reliable but not guaranteed.
Schools
Schools nearby 16095 Aralia Drive
| Schools in attendance boundaries | Grades | Distance | Rating |
|---|---|---|---|
| Loading... | |||
| Schools nearby | Grades | Distance | Rating |
|---|---|---|---|
| Loading... | |||
Data powered by ATTOM Data Solutions. Copyright© 2026. Information deemed reliable but not guaranteed.
The schools shown represent both the assigned schools and schools by distance based on local school and district attendance boundaries. Attendance boundaries change based on various factors and proximity does not guarantee enrollment eligibility. Please consult your real estate agent and/or the school district to confirm the schools this property is zoned to attend. Information is deemed reliable but not guaranteed.
SchoolDigger ® Rating
The SchoolDigger rating system is a 1-5 scale with 5 as the highest rating. SchoolDigger ranks schools based on test scores supplied by each state's Department of Education. They calculate an average standard score by normalizing and averaging each school's test scores across all tests and grades.
Coming soon properties will soon be on the market, but are not yet available for showings.