161 S Gulf Boulevard Placida, FL 33946 - GULF
For Sale MLS# D6143265
4 beds 3 baths 1,792 sq ft Single Family
Details for 161 S Gulf Boulevard
MLS# D6143265
Description for 161 S Gulf Boulevard, Placida, FL, 33946 - GULF
Beachfront Bliss on Don Pedro Island – 100 Ft of Gulf Frontage! Escape to paradise on this stunning Gulf-front property boasting 100 feet of pristine white sand beach, where seashells and sharks’ teeth are in abundance—and solitude is the norm. Located on the exclusive Don Pedro Island, this 4-bedroom, 3-bath coastal retreat offers one-level living with an open and breezy layout designed for relaxation. The spacious primary suite features an en-suite bath and direct access to a large screened porch, the perfect place to unwind and take in panoramic sunset views over the Gulf of Mexico. Soak in the island lifestyle from your lower sun deck, where swaying coconut palms and the sound of the surf create a tropical escape made for steel drums and piña coladas. Upgrades include a newer standing seam metal roof, hurricane impact-rated windows and doors, new septic tank, and an elevator shaft wired and ready for installation. A 3' easement across the street provides access to Bocilla Lagoon—perfect for kayaking and exploring the serene backwaters. Don Pedro Island offers the ultimate in Old Florida charm: few cars, no crowds—just peace, privacy, and natural beauty. Accessible only by boat or car ferry, this island sanctuary is Florida living at its finest.
Listing Information
Property Type: Residential, Single Family Residence
Status: Active
Bedrooms: 4
Bathrooms: 3
Lot Size: 0.35 Acres
Square Feet: 1,792 sq ft
Year Built: 2006
Stories: 1 Story
Construction: Vinyl Siding,Wood Frame
Construction Display: New Construction
Subdivision: Palm Island Estates Un 4
Foundation: Pillar/Post/Pier
County: Charlotte
Construction Status: New Construction
School Information
Elementary: Vineland Elementary
Middle: L.A. Ainger Middle
High: Lemon Bay High
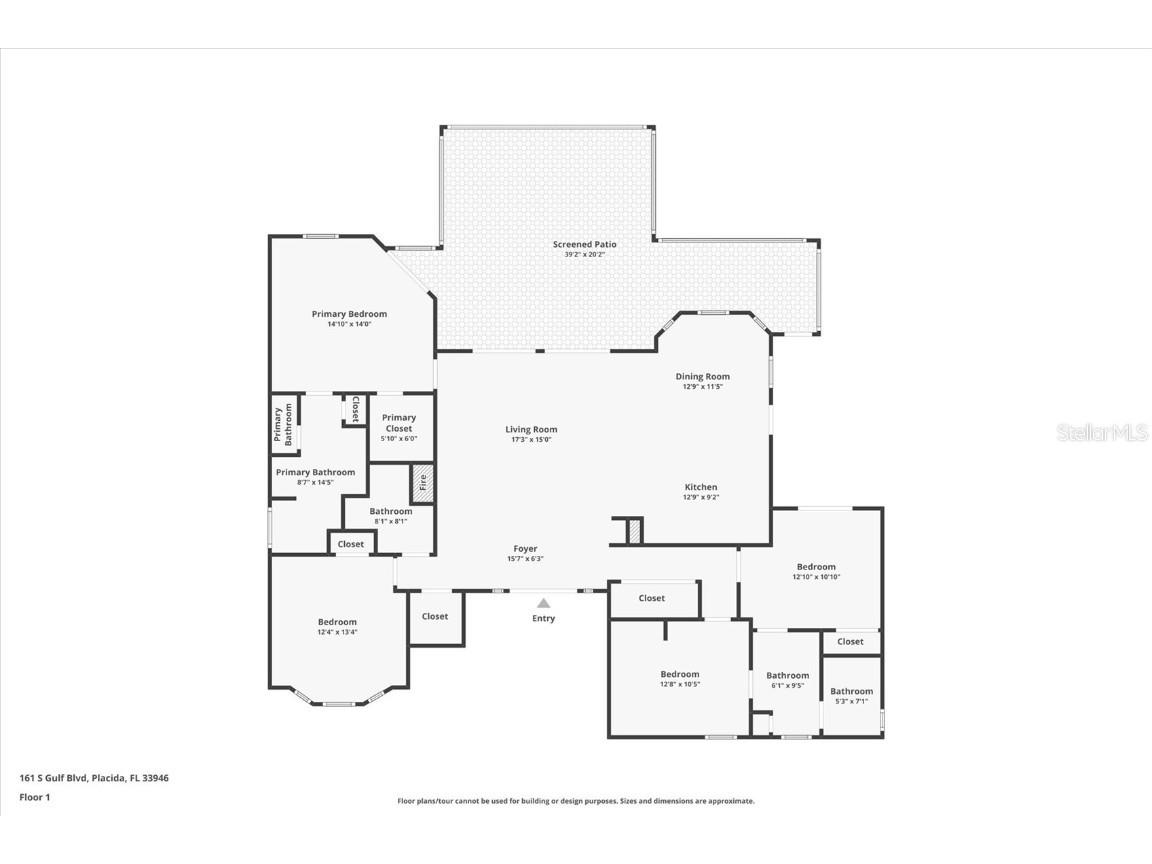
Room Information
Main Floor
Bedroom 4: 12.6x10.6
Bedroom 3: 11x11
Bedroom 2: 12x11
Primary Bedroom: 14.8x13
Kitchen: 10x10
Great Room: 19.6x11
Bathrooms
Full Baths: 3
Additonal Room Information
Laundry: Laundry Closet, Inside
Interior Features
Appliances: Electric Water Heater, Dishwasher, Disposal, Dryer, Freezer, Microwave, Range, Refrigerator, Washer
Flooring: Carpet,Ceramic Tile
Doors/Windows: Window Treatments, Storm Window(s), Shutters
Fireplaces: Electric, Family Room
Additional Interior Features: Eat-In Kitchen, Window Treatments, Walk-In Closet(s), Built-in Features, High Ceilings, Ceiling Fan(s), Open Floorplan, Main Level Primary
Utilities
Water: Private
Sewer: Septic Tank
Other Utilities: Cable Available,Electricity Connected,Water Connected
Cooling: Ceiling Fan(s), Central Air
Heating: Electric, Central
Exterior / Lot Features
Parking Description: Covered
Roof: Metal
Lot View: Beach,Ocean,Water
Lot Dimensions: 100x151
Additional Exterior/Lot Features: Lighting, Screened, Covered, Rear Porch, Landscaped, Flood Zone, Outside City Limits
Waterfront Details
Standard Water Body: GULF
Water Front Features: Gulf Access, Bay Access, Deeded Access, Beach Access
Driving Directions
From 776 and Placida Rd., travel south on Placida Rd. to Panama Blvd. Take car ferry to the island (agent will assist with access). Once on island, take N. Gulf Blvd. to left on S. Guld Blvd. to address.
Financial Considerations
Terms: Cash,Conventional
Tax/Property ID: 412033326006
Tax Amount: 31164.3
Tax Year: 2024
A broker reciprocity listing courtesy: PARADISE EXCLUSIVE INC
Based on information provided by Stellar MLS as distributed by the MLS GRID. Information from the Internet Data Exchange is provided exclusively for consumers’ personal, non-commercial use, and such information may not be used for any purpose other than to identify prospective properties consumers may be interested in purchasing. This data is deemed reliable but is not guaranteed to be accurate by Edina Realty, Inc., or by the MLS. Edina Realty, Inc., is not a multiple listing service (MLS), nor does it offer MLS access.
Copyright 2026 Stellar MLS as distributed by the MLS GRID. All Rights Reserved.
Payment Calculator
Interest rate and annual percentage rate (APR) are based on current market conditions, are for informational purposes only, are subject to change without notice and may be subject to pricing add-ons related to property type, loan amount, loan-to-value, credit score and other variables. Estimated closing costs used in the APR calculation are assumed to be paid by the borrower at closing. If the closing costs are financed, the loan, APR and payment amounts will be higher. If the down payment is less than 20%, mortgage insurance may be required and could increase the monthly payment and APR. Contact us for details. Additional loan programs may be available. Accuracy is not guaranteed, and all products may not be available in all borrower's geographical areas and are based on their individual situation. This is not a credit decision or a commitment to lend.
Sales History & Tax Summary for 161 S Gulf Boulevard
Sales History
| Date | Price | |
|---|---|---|
| Currently not available. | ||
Tax Summary
| Tax Year | Estimated Market Value | Total Tax |
|---|---|---|
| Currently not available. | ||
Data powered by ATTOM Data Solutions. Copyright© 2026. Information deemed reliable but not guaranteed.
Schools
Schools nearby 161 S Gulf Boulevard
| Schools in attendance boundaries | Grades | Distance | Rating |
|---|---|---|---|
| Loading... | |||
| Schools nearby | Grades | Distance | Rating |
|---|---|---|---|
| Loading... | |||
Data powered by ATTOM Data Solutions. Copyright© 2026. Information deemed reliable but not guaranteed.
The schools shown represent both the assigned schools and schools by distance based on local school and district attendance boundaries. Attendance boundaries change based on various factors and proximity does not guarantee enrollment eligibility. Please consult your real estate agent and/or the school district to confirm the schools this property is zoned to attend. Information is deemed reliable but not guaranteed.
SchoolDigger ® Rating
The SchoolDigger rating system is a 1-5 scale with 5 as the highest rating. SchoolDigger ranks schools based on test scores supplied by each state's Department of Education. They calculate an average standard score by normalizing and averaging each school's test scores across all tests and grades.
Coming soon properties will soon be on the market, but are not yet available for showings.