16119 Naples Street Brooksville, FL 34604
For Sale MLS# A4668350
4 beds 2 baths 1,782 sq ft Single Family
Details for 16119 Naples Street
MLS# A4668350
Description for 16119 Naples Street, Brooksville, FL, 34604
One or more photo(s) has been virtually staged. Discover this charming 4-bedroom, 2-bath mobile home situated on a 0.50-acre lot in Brooksville, FL. Inside, the open living area flows seamlessly into the family room and kitchen, creating a warm and inviting atmosphere. Recent updates include new flooring, fresh paint, and a new roof (2023). Outside, enjoy a spacious yard perfect for relaxing or entertaining. Conveniently located near local amenities, this home offers the ideal blend of comfort, charm, and convenience.
Listing Information
Property Type: Residential, Manufactured Home
Status: Active
Bedrooms: 4
Bathrooms: 2
Lot Size: 0.53 Acres
Square Feet: 1,782 sq ft
Year Built: 2005
Stories: 1 Story
Construction: Vinyl Siding,Wood Frame
Subdivision: Tangerine Estates
Foundation: Pillar/Post/Pier
County: Hernando
School Information
Elementary: Moton Elementary School
Middle: D.S. Parrot Middle
High: Natures Coast Technical High School
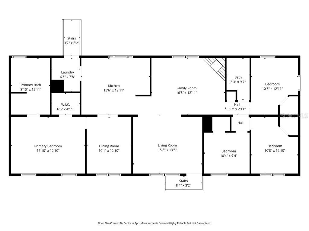
Room Information
Main Floor
Dining Room: 10.1x12.1
Laundry: 6.5x7.8
Bedroom 4: 10.8x12.11
Bedroom 3: 10.8x12.1
Bedroom 2: 9.4x10.4
Primary Bedroom: 12.1x16.1
Kitchen: 12.11x15.6
Family Room: 12.11x16.8
Living Room: 13.5x15.8
Bathrooms
Full Baths: 2
Additonal Room Information
Laundry: Inside, Laundry Room
Interior Features
Appliances: Range Hood, Dishwasher, Range, Refrigerator
Flooring: Linoleum,Luxury Vinyl
Fireplaces: Wood Burning, Living Room
Additional Interior Features: Ceiling Fan(s), Split Bedrooms, Walk-In Closet(s), Open Floorplan
Utilities
Water: Well
Sewer: Septic Tank
Other Utilities: Cable Available,Electricity Connected
Cooling: Central Air, Ductless, Ceiling Fan(s)
Heating: Electric, Central
Exterior / Lot Features
Roof: Metal
Fencing: Wire
Additional Exterior/Lot Features: Lighting
Driving Directions
California St, turn onto Sandusky St, immediately turn left onto Miami St, turn right onto Naples St, property is on the right.
Financial Considerations
Terms: Cash,Conventional,FHA,VA Loan
Tax/Property ID: R12-223-18-3660-0EE0-0980
Tax Amount: 1544.89
Tax Year: 2024
A broker reciprocity listing courtesy: 365 REALTY GROUP INC
Based on information provided by Stellar MLS as distributed by the MLS GRID. Information from the Internet Data Exchange is provided exclusively for consumers’ personal, non-commercial use, and such information may not be used for any purpose other than to identify prospective properties consumers may be interested in purchasing. This data is deemed reliable but is not guaranteed to be accurate by Edina Realty, Inc., or by the MLS. Edina Realty, Inc., is not a multiple listing service (MLS), nor does it offer MLS access.
Copyright 2025 Stellar MLS as distributed by the MLS GRID. All Rights Reserved.
Payment Calculator
Interest rate and annual percentage rate (APR) are based on current market conditions, are for informational purposes only, are subject to change without notice and may be subject to pricing add-ons related to property type, loan amount, loan-to-value, credit score and other variables. Estimated closing costs used in the APR calculation are assumed to be paid by the borrower at closing. If the closing costs are financed, the loan, APR and payment amounts will be higher. If the down payment is less than 20%, mortgage insurance may be required and could increase the monthly payment and APR. Contact us for details. Additional loan programs may be available. Accuracy is not guaranteed, and all products may not be available in all borrower's geographical areas and are based on their individual situation. This is not a credit decision or a commitment to lend.
Sales History & Tax Summary for 16119 Naples Street
Sales History
| Date | Price | Change |
|---|---|---|
| Currently not available. | ||
Tax Summary
| Tax Year | Estimated Market Value | Total Tax |
|---|---|---|
| Currently not available. | ||
Data powered by ATTOM Data Solutions. Copyright© 2025. Information deemed reliable but not guaranteed.
Schools
Schools nearby 16119 Naples Street
| Schools in attendance boundaries | Grades | Distance | Rating |
|---|---|---|---|
| Loading... | |||
| Schools nearby | Grades | Distance | Rating |
|---|---|---|---|
| Loading... | |||
Data powered by ATTOM Data Solutions. Copyright© 2025. Information deemed reliable but not guaranteed.
The schools shown represent both the assigned schools and schools by distance based on local school and district attendance boundaries. Attendance boundaries change based on various factors and proximity does not guarantee enrollment eligibility. Please consult your real estate agent and/or the school district to confirm the schools this property is zoned to attend. Information is deemed reliable but not guaranteed.
SchoolDigger ® Rating
The SchoolDigger rating system is a 1-5 scale with 5 as the highest rating. SchoolDigger ranks schools based on test scores supplied by each state's Department of Education. They calculate an average standard score by normalizing and averaging each school's test scores across all tests and grades.
Coming soon properties will soon be on the market, but are not yet available for showings.