$194,900
1616 Myrtle Beach Drive The Villages, FL 32159
For Sale MLS# G5106925
2 beds 2 baths 1,056 sq ft Single Family
Details for 1616 Myrtle Beach Drive
MLS# G5106925
Description for 1616 Myrtle Beach Drive, The Villages, FL, 32159
NO BOND! Affordable TURNKEY Opportunity in the sought-after Orange Blossom Community — MOVE-IN READY and full of charm! Located just a short distance from Hilltop Golf Course, Pool & Restaurant, this delightful 2 Bedroom, 2 Bath home offers a warm, welcoming feel throughout and NO CARPET anywhere for easy maintenance and a clean, modern look. Enjoy relaxing on the charming front paver patio, the perfect spot for morning coffee or evening unwinding. The enclosed front porch adds additional living space and opens to the spacious 15' x 14' patio, ideal for entertaining or enjoying Florida’s beautiful weather. Inside, the large eat-in kitchen flows seamlessly into the living room, creating an open and comfortable layout. The nicely furnished guest bedroom is inviting and move-in ready, while the primary bedroom features a walk-in shower and a comfortable retreat at the end of the day. Recent updates include new flooring, new stove & microwave, double-pane vinyl windows (2017), NEW HVAC (2023), Roof (2011), and exterior paint (2022). The exterior offers a large carport and an outside utility room complete with washer, dryer, and hot water heater. A TURNKEY, affordable, and charming home in a prime location — perfect as a full-time residence, seasonal retreat, or investment opportunity!
Listing Information
Property Type: Residential, Manufactured Home
Status: Active
Bedrooms: 2
Bathrooms: 2
Lot Size: 0.12 Acres
Square Feet: 1,056 sq ft
Year Built: 1987
Stories: 1 Story
Construction: Vinyl Siding
Construction Display: New Construction
Subdivision: Lady Lake Orange Blossom Gardens Unit 09
Foundation: Crawlspace
County: Lake
Construction Status: New Construction
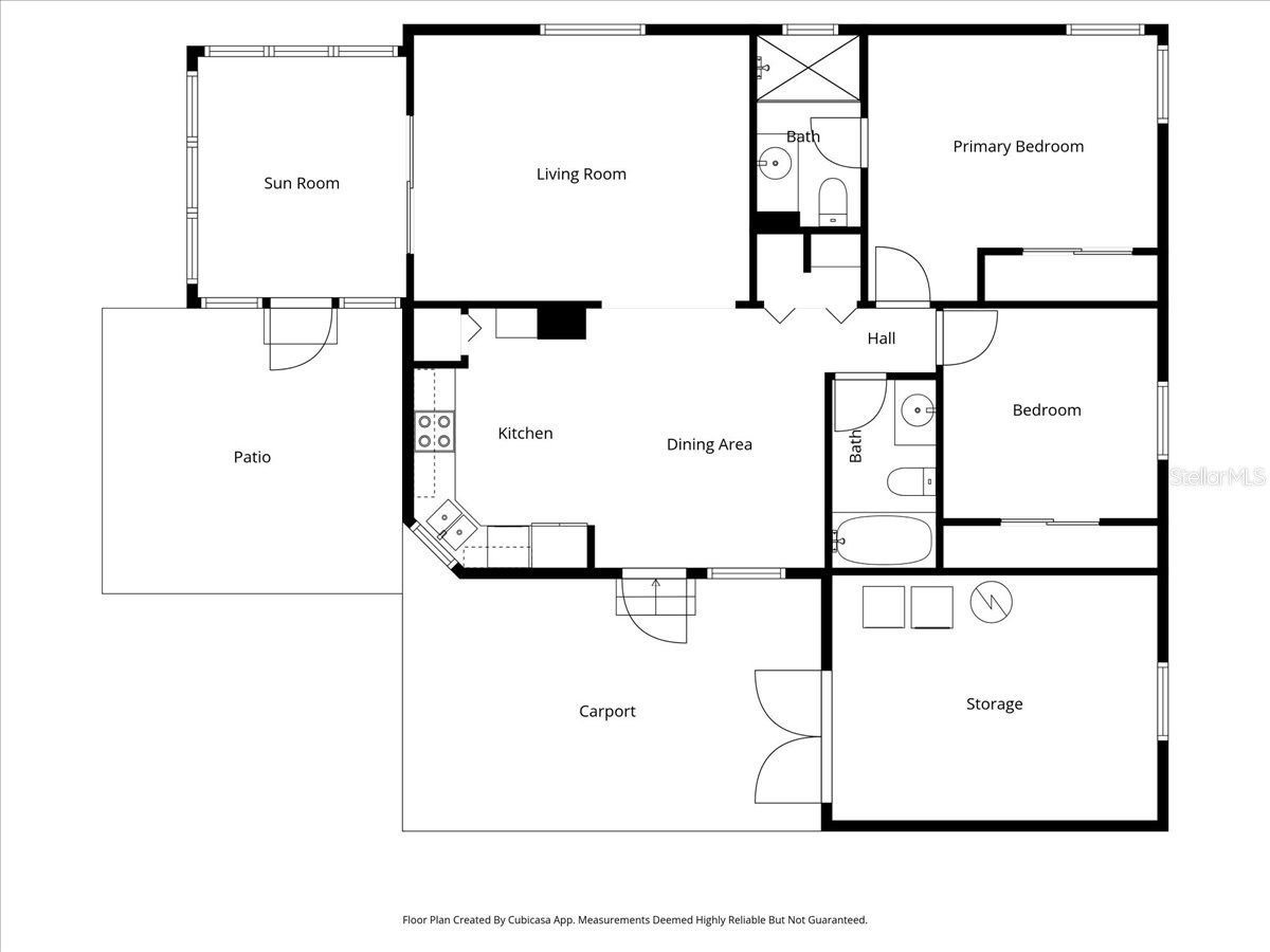
Room Information
Main Floor
Bedroom 2: 10x10.2
Bathroom 2: 8.11x4.11
Primary Bathroom: 9.2x4.11
Primary Bedroom: 12.8x13.9
Living Room: 12.8x16
Kitchen: 12.4x8.7
Dining Room: 12.4x10.11
Bathrooms
Full Baths: 2
Additonal Room Information
Laundry: In Garage
Interior Features
Appliances: Built-In Oven, Dishwasher, Dryer, Microwave, Washer
Flooring: Laminate
Basement: Crawl Space
Doors/Windows: Window Treatments, Blinds, Double Pane Windows
Additional Interior Features: Ceiling Fan(s), Vaulted Ceiling(s), Window Treatments, Open Floorplan
Utilities
Water: Public
Sewer: Public Sewer
Other Utilities: Cable Available,Electricity Available,High Speed Internet Available
Cooling: Central Air, Ceiling Fan(s)
Heating: Exhaust Fan
Exterior / Lot Features
Roof: Shingle
Pool: Association, Community
Lot Dimensions: 60x90
Additional Exterior/Lot Features: Other, Patio, Landscaped, Near Golf Course
Community Features
Community Features: Fitness, Golf Carts OK, Racquetball, Community Mailbox, Pool, Tennis Court(s), Golf, Dog Park, Gated
Security Features: Gated Community, Gated with Guard
Association Amenities: Shuffleboard Court, Pickleball, Recreation Facilities, Tennis Court(s), Pool, Golf Course, Trail(s)
HOA Dues Include: Recreation Facilities, Pool(s)
Driving Directions
1. From the main entrance on US-441/US-27, turn east onto W Boone Ct. (This is the initial turn into the community through the Boone Gate.) Proceed about 0.2 miles. 2. Turn right at Water Tower Circle. Continue for a short distance (about 300 feet). 3. Turn right onto Andrews Blvd. Drive about 0.1 miles. 4. Turn left onto Myrtle Beach Dr. Proceed about 0.1 miles; 1616 Myrtle Beach Dr. will be on your left.
Financial Considerations
Terms: Cash,Conventional,FHA,VA Loan
Tax/Property ID: 06-18-24-0391-000-25590
Tax Amount: 2429.54
Tax Year: 2025
A broker reciprocity listing courtesy: REALTY EXECUTIVES IN THE VILLAGES
Based on information provided by Stellar MLS as distributed by the MLS GRID. Information from the Internet Data Exchange is provided exclusively for consumers’ personal, non-commercial use, and such information may not be used for any purpose other than to identify prospective properties consumers may be interested in purchasing. This data is deemed reliable but is not guaranteed to be accurate by Edina Realty, Inc., or by the MLS. Edina Realty, Inc., is not a multiple listing service (MLS), nor does it offer MLS access.
Copyright 2026 Stellar MLS as distributed by the MLS GRID. All Rights Reserved.
Payment Calculator
Interest rate and annual percentage rate (APR) are based on current market conditions, are for informational purposes only, are subject to change without notice and may be subject to pricing add-ons related to property type, loan amount, loan-to-value, credit score and other variables. Estimated closing costs used in the APR calculation are assumed to be paid by the borrower at closing. If the closing costs are financed, the loan, APR and payment amounts will be higher. If the down payment is less than 20%, mortgage insurance may be required and could increase the monthly payment and APR. Contact us for details. Additional loan programs may be available. Accuracy is not guaranteed, and all products may not be available in all borrower's geographical areas and are based on their individual situation. This is not a credit decision or a commitment to lend.
Sales History & Tax Summary for 1616 Myrtle Beach Drive
Sales History
| Date | Price | |
|---|---|---|
| Currently not available. | ||
Tax Summary
| Tax Year | Estimated Market Value | Total Tax |
|---|---|---|
| Currently not available. | ||
Data powered by ATTOM Data Solutions. Copyright© 2026. Information deemed reliable but not guaranteed.
Schools
Schools nearby 1616 Myrtle Beach Drive
| Schools in attendance boundaries | Grades | Distance | Rating |
|---|---|---|---|
| Loading... | |||
| Schools nearby | Grades | Distance | Rating |
|---|---|---|---|
| Loading... | |||
Data powered by ATTOM Data Solutions. Copyright© 2026. Information deemed reliable but not guaranteed.
The schools shown represent both the assigned schools and schools by distance based on local school and district attendance boundaries. Attendance boundaries change based on various factors and proximity does not guarantee enrollment eligibility. Please consult your real estate agent and/or the school district to confirm the schools this property is zoned to attend. Information is deemed reliable but not guaranteed.
SchoolDigger ® Rating
The SchoolDigger rating system is a 1-5 scale with 5 as the highest rating. SchoolDigger ranks schools based on test scores supplied by each state's Department of Education. They calculate an average standard score by normalizing and averaging each school's test scores across all tests and grades.
Coming soon properties will soon be on the market, but are not yet available for showings.