$172,000
16305 Enclave Village Drive #102 Tampa, FL 33647
For Sale MLS# TB8488566
2 beds 2 baths 1,270 sq ft Condo
Details for 16305 Enclave Village Drive #102
MLS# TB8488566
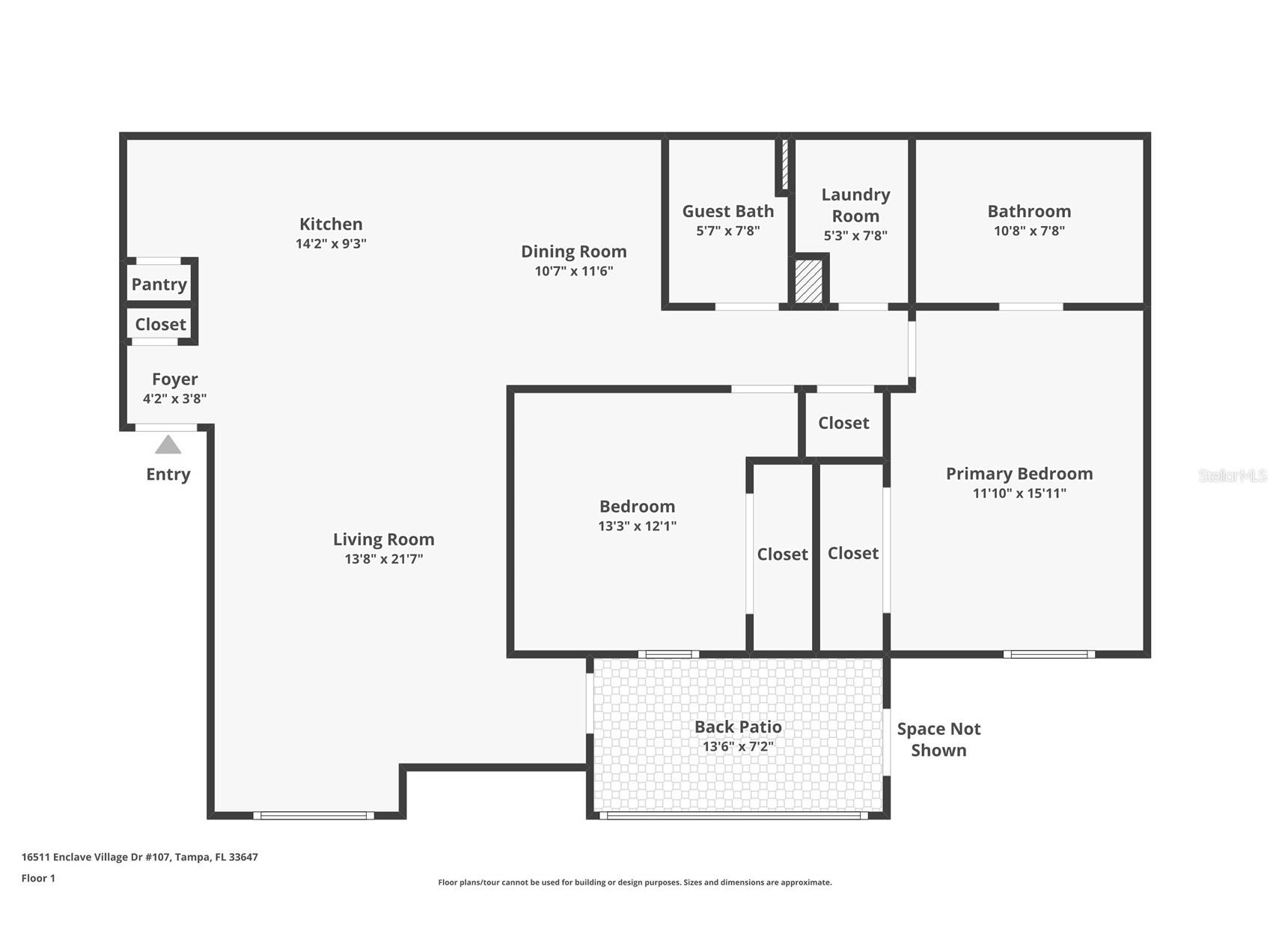
Description for 16305 Enclave Village Drive #102, Tampa, FL, 33647
Positioned within the gated Promenade at Tampa Palms, this first-floor 2-bedroom, 2-bath condominium offers a functional layout, lake views, and low-maintenance living in one of Tampa’s most established master-planned areas. Inside, the open-concept design connects the living, dining, and kitchen areas, creating a seamless flow for everyday living. Tile flooring runs throughout the main spaces, and the kitchen features stone countertops with direct sightlines into the living area. The split-bedroom layout enhances privacy, with the secondary bedroom and full bath located near the front, while the primary suite sits toward the rear. The primary bedroom includes a walk-in closet and en-suite bath for added convenience. A screened lanai overlooks the lake, providing a quiet outdoor space, and a private storage unit adds practical functionality. Additional features include in-unit laundry, central air conditioning, and assigned parking. Located near Tampa Palms Blvd and Bruce B Downs, this community offers quick access to USF, I-75, shopping, dining, and entertainment, along with community pool amenities. Condo fees include exterior maintenance, water, trash, and recreational facilities—supporting easy ownership.
Listing Information
Property Type: Residential, Condominium
Status: Active
Bedrooms: 2
Bathrooms: 2
Lot Size: 0.10 Acres
Square Feet: 1,270 sq ft
Year Built: 2000
Stories: 1 Story
Construction: Stucco,Wood Frame
Subdivision: The Promenade At Tampa Palms A
Foundation: Slab
County: Hillsborough
School Information
Elementary: Tampa Palms-Hb
Middle: Liberty-Hb
High: Freedom-Hb
Room Information
Main Floor
Primary Bedroom: 12x10
Kitchen: 10x10
Living Room: 13x13
Bathrooms
Full Baths: 2
Additonal Room Information
Laundry: Laundry Room
Interior Features
Appliances: Washer, Dishwasher, Dryer, Microwave, Range, Refrigerator
Flooring: Tile
Additional Interior Features: Living/Dining Room, Open Floorplan, Walk-In Closet(s)
Utilities
Water: Public
Sewer: Public Sewer
Other Utilities: Cable Available,Electricity Available,High Speed Internet Available,Sewer Connected
Cooling: Central Air
Heating: Electric
Exterior / Lot Features
Roof: Shingle
Pool: Community
Community Features
Community Features: Sidewalks, Pool, Street Lights
HOA Dues Include: Water, Trash, Insurance, Recreation Facilities, Maintenance Structure, Pool(s)
Driving Directions
From Bruce B Downs Blvd and I-75, go south on BBD to right on Tampa Palms Blvd to right on Compton Drive to left into the community.
Financial Considerations
Terms: Cash,Conventional
Tax/Property ID: A-26-27-19-92D-000003-16305.0
Tax Amount: 2845
Tax Year: 2025
A broker reciprocity listing courtesy: SERHANT
Based on information provided by Stellar MLS as distributed by the MLS GRID. Information from the Internet Data Exchange is provided exclusively for consumers’ personal, non-commercial use, and such information may not be used for any purpose other than to identify prospective properties consumers may be interested in purchasing. This data is deemed reliable but is not guaranteed to be accurate by Edina Realty, Inc., or by the MLS. Edina Realty, Inc., is not a multiple listing service (MLS), nor does it offer MLS access.
Copyright 2026 Stellar MLS as distributed by the MLS GRID. All Rights Reserved.
Payment Calculator
Interest rate and annual percentage rate (APR) are based on current market conditions, are for informational purposes only, are subject to change without notice and may be subject to pricing add-ons related to property type, loan amount, loan-to-value, credit score and other variables. Estimated closing costs used in the APR calculation are assumed to be paid by the borrower at closing. If the closing costs are financed, the loan, APR and payment amounts will be higher. If the down payment is less than 20%, mortgage insurance may be required and could increase the monthly payment and APR. Contact us for details. Additional loan programs may be available. Accuracy is not guaranteed, and all products may not be available in all borrower's geographical areas and are based on their individual situation. This is not a credit decision or a commitment to lend.
Sales History & Tax Summary for 16305 Enclave Village Drive #102
Sales History
| Date | Price | |
|---|---|---|
| Currently not available. | ||
Tax Summary
| Tax Year | Estimated Market Value | Total Tax |
|---|---|---|
| Currently not available. | ||
Data powered by ATTOM Data Solutions. Copyright© 2026. Information deemed reliable but not guaranteed.
Schools
Schools nearby 16305 Enclave Village Drive #102
| Schools in attendance boundaries | Grades | Distance | Rating |
|---|---|---|---|
| Loading... | |||
| Schools nearby | Grades | Distance | Rating |
|---|---|---|---|
| Loading... | |||
Data powered by ATTOM Data Solutions. Copyright© 2026. Information deemed reliable but not guaranteed.
The schools shown represent both the assigned schools and schools by distance based on local school and district attendance boundaries. Attendance boundaries change based on various factors and proximity does not guarantee enrollment eligibility. Please consult your real estate agent and/or the school district to confirm the schools this property is zoned to attend. Information is deemed reliable but not guaranteed.
SchoolDigger ® Rating
The SchoolDigger rating system is a 1-5 scale with 5 as the highest rating. SchoolDigger ranks schools based on test scores supplied by each state's Department of Education. They calculate an average standard score by normalizing and averaging each school's test scores across all tests and grades.
Coming soon properties will soon be on the market, but are not yet available for showings.