1631 W Hwy 329 Citra, FL 32113
Pending MLS# OM702718
4 beds 3 baths 2,348 sq ft Single Family
Details for 1631 W Hwy 329
MLS# OM702718
Description for 1631 W Hwy 329, Citra, FL, 32113
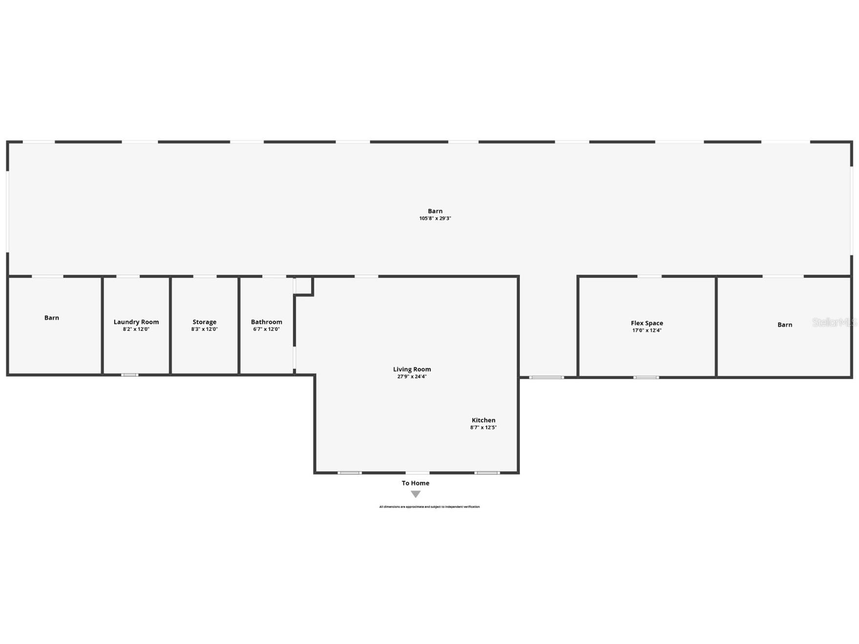
Under contract-accepting backup offers. Exceptional 34-acre equestrian estate. Discover this new, turnkey horse property on 33.53 acres of high and dry land, thoughtfully designed for horse and rider. Offered as two separate parcels, this estate combines luxury living with premium equestrian amenities. The custom four-bedroom, 2.5-bath home features elegant porcelain tile throughout, brushed gold tone fixtures, soaring ceilings, quartz countertops and a spacious front porch with paver flooring, ideal for relaxing and taking in the views. Two lighted electric gated entrances plus a third separate drive offer ideal access for trailer parking or client ship-ins. Equestrians will appreciate the 10-stall block barn featuring a 400-square-foot studio apartment with kitchen, full bath, laundry with abundant cabinetry, feed room, tack room, hot/cold wash stall and a breezy 16-foot-wide center aisle. Each 12-by-12-foot matted stall includes lights and fans for optimal comfort. Water is run to all six paddocks and two large fields, all conveniently near the barn. Enjoy a 4/10-mile grass uphill gallop, well-established pastures and ample room to add a cross-country course, arenas or additional structures. Extensive landscaping surrounds the home, barn and gated entries, all with irrigation. Don't miss this extremely rare opportunity to own a new equestrian estate.
Listing Information
Property Type: Residential, Farm
Status: Pending
Bedrooms: 4
Bathrooms: 3
Lot Size: 33.53 Acres
Square Feet: 2,348 sq ft
Year Built: 2025
Garage: Yes
Stories: 1 Story
Construction: HardiPlank Type,Wood Frame
Construction Display: New Construction
Subdivision: Na
Builder: Nadeau-Stout Custom Homes, LLC
Foundation: Slab
County: Marion
Construction Status: New Construction
Room Information
Main Floor
Kitchen:
Primary Bedroom:
Great Room:
Bathrooms
Full Baths: 2
1/2 Baths: 1
Additonal Room Information
Laundry: Inside, Washer Hookup, Electric Dryer Hookup, Laundry Room
Interior Features
Appliances: Exhaust Fan, Range Hood, Microwave, Range, Refrigerator, Dishwasher, Disposal, Cooktop
Flooring: Porcelain Tile
Doors/Windows: Shutters
Additional Interior Features: Eat-In Kitchen, Walk-In Closet(s), Split Bedrooms, Tray Ceiling(s), Built-in Features, Ceiling Fan(s), Vaulted Ceiling(s), Stone Counters, Wood Cabinets, Kitchen/Family Room Combo, Open Floorplan
Utilities
Water: Well
Sewer: Septic Tank
Other Utilities: Electricity Connected,Water Connected
Cooling: Ceiling Fan(s), Central Air
Heating: Electric
Exterior / Lot Features
Attached Garage: Attached Garage
Garage Spaces: 2
Parking Description: Garage Door Opener, Garage, driveway, Circular Driveway, Garage Faces Side, Oversized
Roof: Shingle
Fencing: Electric, Wood
Additional Exterior/Lot Features: Sprinkler/Irrigation, Lighting, Porch, Covered, Front Porch, Rear Porch, Landscaped, Cleared, Farm
Out Buildings: Barn(s), Shed(s)
Driving Directions
From 301N turn left onto 329 take second drive on Right ( first drive is barn entrance from this direction)
Financial Considerations
Terms: Cash,Conventional,Other,Special Funding
Tax/Property ID: 07264-001-00
Tax Amount: 5343
Tax Year: 2024
A broker reciprocity listing courtesy: PREMIER SOTHEBY'S INTERNATIONAL REALTY
Based on information provided by Stellar MLS as distributed by the MLS GRID. Information from the Internet Data Exchange is provided exclusively for consumers’ personal, non-commercial use, and such information may not be used for any purpose other than to identify prospective properties consumers may be interested in purchasing. This data is deemed reliable but is not guaranteed to be accurate by Edina Realty, Inc., or by the MLS. Edina Realty, Inc., is not a multiple listing service (MLS), nor does it offer MLS access.
Copyright 2025 Stellar MLS as distributed by the MLS GRID. All Rights Reserved.
Sales History & Tax Summary for 1631 W Hwy 329
Sales History
| Date | Price | Change |
|---|---|---|
| Currently not available. | ||
Tax Summary
| Tax Year | Estimated Market Value | Total Tax |
|---|---|---|
| Currently not available. | ||
Data powered by ATTOM Data Solutions. Copyright© 2025. Information deemed reliable but not guaranteed.
Schools
Schools nearby 1631 W Hwy 329
| Schools in attendance boundaries | Grades | Distance | Rating |
|---|---|---|---|
| Loading... | |||
| Schools nearby | Grades | Distance | Rating |
|---|---|---|---|
| Loading... | |||
Data powered by ATTOM Data Solutions. Copyright© 2025. Information deemed reliable but not guaranteed.
The schools shown represent both the assigned schools and schools by distance based on local school and district attendance boundaries. Attendance boundaries change based on various factors and proximity does not guarantee enrollment eligibility. Please consult your real estate agent and/or the school district to confirm the schools this property is zoned to attend. Information is deemed reliable but not guaranteed.
SchoolDigger ® Rating
The SchoolDigger rating system is a 1-5 scale with 5 as the highest rating. SchoolDigger ranks schools based on test scores supplied by each state's Department of Education. They calculate an average standard score by normalizing and averaging each school's test scores across all tests and grades.
Coming soon properties will soon be on the market, but are not yet available for showings.