$279,000
1639 Campos Drive The Villages, FL 32162
For Sale MLS# O6333604
2 beds 2 baths 1,121 sq ft Single Family
Details for 1639 Campos Drive
MLS# O6333604
Description for 1639 Campos Drive, The Villages, FL, 32162
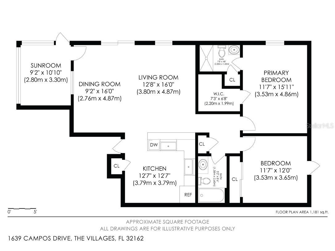
This beautifully updated Colony Patio Villa in the desirable Village of Alhambra is move-in ready and offers a peaceful setting with a view of a tranquil preserve and lush trees. The meticulously landscaped yard, framed by a welcoming picket fence, features a combination of decorative rocks and grass. Step inside and you'll be greeted by an open floor plan bathed in natural light. The main living and dining areas feature hardwood floors, which lead to a kitchen with ceramic tile. The kitchen is a chef's delight, with upgraded cabinets, convenient roll-out drawers, a solar tube for added brightness, and a cozy breakfast nook perfect for your morning coffee. An adjacent breakfast bar provides additional seating for guests. The spacious primary bedroom boasts hardwood flooring, a customized walk-in closet, and a private en-suite bathroom. The guest bedroom also has hardwood floors and is equipped with a Murphy bed for versatile use. From the guest room, you have direct access to the enclosed birdcage with a hot tub, providing a private space for relaxation and entertaining with evening lighting. The home also has an enclosed front lanai with an additional 114 square feet of living space, under heat and air. Recent updates ensure this home is both stylish and functional. You'll find plantation shutters throughout, upgraded ceiling fans, new electrical panel and wiring throughout the house and a 2024 roof. The bathrooms were also updated with vessel sinks and glass shower doors. The garage offers built-in cabinets and interlocking flooring tiles for a clean, organized space. Located near Savannah Center, Glenview Country Club, and Spanish Springs Town Square, this home provides easy access to a variety of recreation, dining, and entertainment options. The neighborhood also features convenient parking nearby. Best of all, there are no bond fees associated with this property. Tour today!
Listing Information
Property Type: Residential, Villa
Status: Active
Bedrooms: 2
Bathrooms: 2
Lot Size: 0.12 Acres
Square Feet: 1,121 sq ft
Year Built: 1998
Garage: Yes
Stories: 1 Story
Construction: Vinyl Siding
Subdivision: The Villages
Foundation: Slab
County: Sumter
Room Information
Main Floor
Porch: 10x11.4
Bedroom 2: 12x12.4
Primary Bedroom: 12x16
Kitchen: 13.1x11.6
Dining Room: 9.1x12.2
Living Room: 13x12.8
Bathrooms
Full Baths: 2
Additonal Room Information
Laundry: In Garage
Interior Features
Appliances: Microwave, Electric Water Heater, Range, Refrigerator, Washer, Dishwasher, Disposal, Dryer
Flooring: Ceramic Tile,Wood
Doors/Windows: Skylight(s)
Additional Interior Features: Ceiling Fan(s), Living/Dining Room, Walk-In Closet(s), Skylights, Open Floorplan
Utilities
Water: Public
Sewer: Public Sewer
Other Utilities: Cable Connected,Electricity Connected,Municipal Utilities,Sewer Connected,Water Connected
Cooling: Ceiling Fan(s), Central Air
Heating: Heat Pump, Electric
Exterior / Lot Features
Attached Garage: Attached Garage
Garage Spaces: 1
Parking Description: Garage Door Opener, Garage, Golf Cart Garage
Roof: Shingle
Pool: Community
Lot Dimensions: 46x115
Additional Exterior/Lot Features: Sprinkler/Irrigation, Private, Near Golf Course
Community Features
Community Features: Golf Carts OK, Pool, Tennis Court(s), Golf, Park, Restaurant
Driving Directions
From Hwy 466 go north on Buena Vista, turn right onto El Camino Real, turn left onto Botello Ave, turn right onto Campos Dr
Financial Considerations
Terms: Cash,Conventional,FHA,VA Loan
Tax/Property ID: D03B018
Tax Amount: 1444.34
Tax Year: 2024
A broker reciprocity listing courtesy: REDFIN CORPORATION
Based on information provided by Stellar MLS as distributed by the MLS GRID. Information from the Internet Data Exchange is provided exclusively for consumers’ personal, non-commercial use, and such information may not be used for any purpose other than to identify prospective properties consumers may be interested in purchasing. This data is deemed reliable but is not guaranteed to be accurate by Edina Realty, Inc., or by the MLS. Edina Realty, Inc., is not a multiple listing service (MLS), nor does it offer MLS access.
Copyright 2025 Stellar MLS as distributed by the MLS GRID. All Rights Reserved.
Payment Calculator
Interest rate and annual percentage rate (APR) are based on current market conditions, are for informational purposes only, are subject to change without notice and may be subject to pricing add-ons related to property type, loan amount, loan-to-value, credit score and other variables. Estimated closing costs used in the APR calculation are assumed to be paid by the borrower at closing. If the closing costs are financed, the loan, APR and payment amounts will be higher. If the down payment is less than 20%, mortgage insurance may be required and could increase the monthly payment and APR. Contact us for details. Additional loan programs may be available. Accuracy is not guaranteed, and all products may not be available in all borrower's geographical areas and are based on their individual situation. This is not a credit decision or a commitment to lend.
Sales History & Tax Summary for 1639 Campos Drive
Sales History
| Date | Price | Change |
|---|---|---|
| Currently not available. | ||
Tax Summary
| Tax Year | Estimated Market Value | Total Tax |
|---|---|---|
| Currently not available. | ||
Data powered by ATTOM Data Solutions. Copyright© 2025. Information deemed reliable but not guaranteed.
Schools
Schools nearby 1639 Campos Drive
| Schools in attendance boundaries | Grades | Distance | Rating |
|---|---|---|---|
| Loading... | |||
| Schools nearby | Grades | Distance | Rating |
|---|---|---|---|
| Loading... | |||
Data powered by ATTOM Data Solutions. Copyright© 2025. Information deemed reliable but not guaranteed.
The schools shown represent both the assigned schools and schools by distance based on local school and district attendance boundaries. Attendance boundaries change based on various factors and proximity does not guarantee enrollment eligibility. Please consult your real estate agent and/or the school district to confirm the schools this property is zoned to attend. Information is deemed reliable but not guaranteed.
SchoolDigger ® Rating
The SchoolDigger rating system is a 1-5 scale with 5 as the highest rating. SchoolDigger ranks schools based on test scores supplied by each state's Department of Education. They calculate an average standard score by normalizing and averaging each school's test scores across all tests and grades.
Coming soon properties will soon be on the market, but are not yet available for showings.