1640 Marks Street Kissimmee, FL 34746
For Sale MLS# S5127913
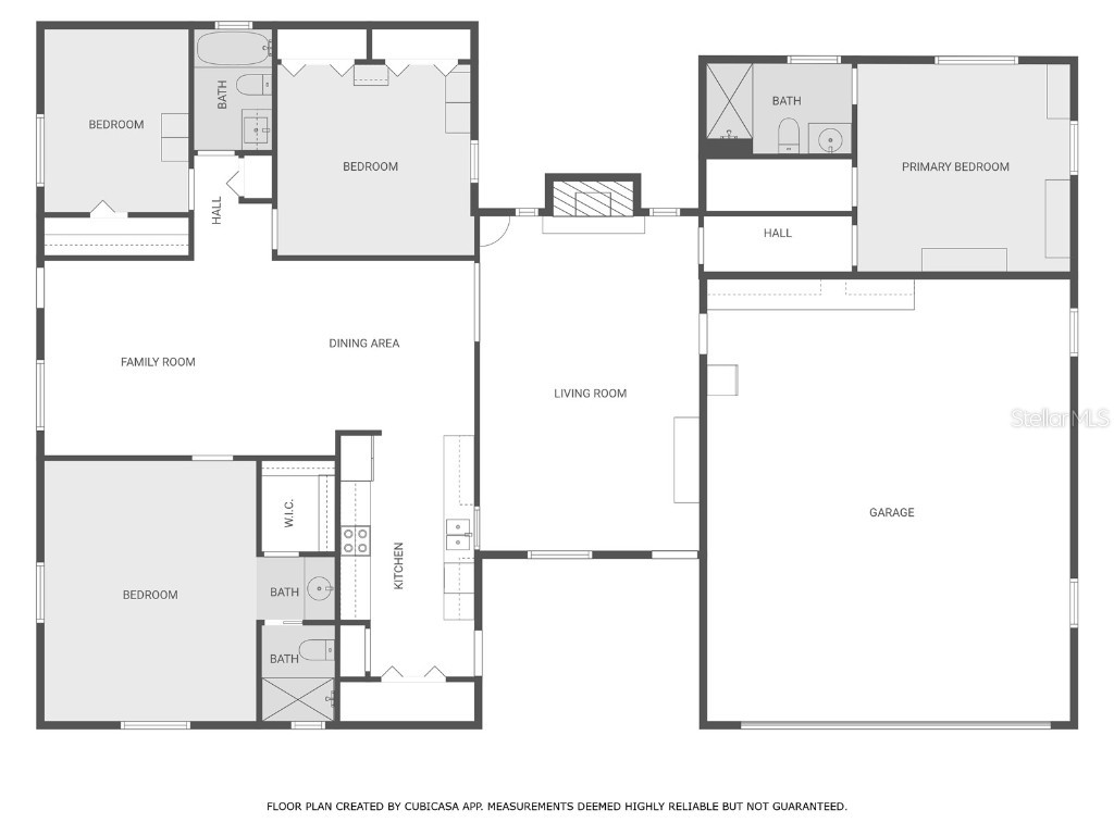
4 beds 3 baths 2,135 sq ft Single Family
Details for 1640 Marks Street
MLS# S5127913
Description for 1640 Marks Street, Kissimmee, FL, 34746
Spacious 4-Bedroom Home with Private Guest Suite on Nearly Half an Acre – No HOA! Tucked away on a quiet cul-de-sac, this beautifully cared-for 4-bedroom, 3-bathroom home serves up space, privacy, and flexibility on nearly half an acre of fully fenced land — and the best part? No HOA telling you what to do. One of the coolest features is the attached, fully handicapped-accessible guest suite with its own private entrance—ideal for multigenerational living or giving guests their own space (and keeping yours). This suite is impressively self-sufficient, complete with its own water heater, electric panel, septic tank, and water shut-off valve. It’s basically a home within a home. Inside, the main house delivers a functional layout with generously sized bedrooms and a living area that’s just waiting for game nights, or the occasional dance party. Outside, you’ve got plenty of room to roam, play, garden, or just enjoy some peace and a quiet get away.
Listing Information
Property Type: Residential, Single Family Residence
Status: Active
Bedrooms: 4
Bathrooms: 3
Lot Size: 0.36 Acres
Square Feet: 2,135 sq ft
Year Built: 1986
Garage: Yes
Stories: 1 Story
Construction: Concrete,Stucco
Subdivision: Campbell Heights
Foundation: Concrete Perimeter
County: Osceola
Room Information
Main Floor
Living Room: 18x12
Kitchen: 18x10
Primary Bedroom: 18x15
Bathrooms
Full Baths: 3
Additonal Room Information
Laundry: In Garage, Washer Hookup, Electric Dryer Hookup
Interior Features
Appliances: Dishwasher, Microwave, Range, Refrigerator
Flooring: Brick,Concrete,Ceramic Tile
Fireplaces: Other
Accessibility: Accessible Approach with Ramp
Additional Interior Features: Ceiling Fan(s), Walk-In Closet(s)
Utilities
Water: Well
Sewer: Septic Tank
Other Utilities: Cable Connected,Electricity Connected,Municipal Utilities,Water Connected
Cooling: Central Air, Ceiling Fan(s)
Heating: Central
Exterior / Lot Features
Attached Garage: Attached Garage
Garage Spaces: 3
Parking Description: Garage Faces Side, Oversized, driveway
Roof: Shingle
Fencing: Chain Link
Additional Exterior/Lot Features: Lighting, Garden, Sprinkler/Irrigation, Landscaped, Cul-de-Sac
Out Buildings: Shed(s)
Community Features
Security Features: Smoke Detector(s)
Driving Directions
Turn left on North John Young Parkway off of West Irlo Bronson Memorial Highway, turn right on Bryant St, turn right on Helen Ave, Home is located on the right.
Financial Considerations
Terms: Cash,Conventional,FHA
Tax/Property ID: 06-26-29-2760-0007-0090
Tax Amount: 1365
Tax Year: 2024
A broker reciprocity listing courtesy: CENTURY 21 WOLF'S CROSSING REALTY
Based on information provided by Stellar MLS as distributed by the MLS GRID. Information from the Internet Data Exchange is provided exclusively for consumers’ personal, non-commercial use, and such information may not be used for any purpose other than to identify prospective properties consumers may be interested in purchasing. This data is deemed reliable but is not guaranteed to be accurate by Edina Realty, Inc., or by the MLS. Edina Realty, Inc., is not a multiple listing service (MLS), nor does it offer MLS access.
Copyright 2025 Stellar MLS as distributed by the MLS GRID. All Rights Reserved.
Payment Calculator
Interest rate and annual percentage rate (APR) are based on current market conditions, are for informational purposes only, are subject to change without notice and may be subject to pricing add-ons related to property type, loan amount, loan-to-value, credit score and other variables. Estimated closing costs used in the APR calculation are assumed to be paid by the borrower at closing. If the closing costs are financed, the loan, APR and payment amounts will be higher. If the down payment is less than 20%, mortgage insurance may be required and could increase the monthly payment and APR. Contact us for details. Additional loan programs may be available. Accuracy is not guaranteed, and all products may not be available in all borrower's geographical areas and are based on their individual situation. This is not a credit decision or a commitment to lend.
Sales History & Tax Summary for 1640 Marks Street
Sales History
| Date | Price | Change |
|---|---|---|
| Currently not available. | ||
Tax Summary
| Tax Year | Estimated Market Value | Total Tax |
|---|---|---|
| Currently not available. | ||
Data powered by ATTOM Data Solutions. Copyright© 2025. Information deemed reliable but not guaranteed.
Schools
Schools nearby 1640 Marks Street
| Schools in attendance boundaries | Grades | Distance | Rating |
|---|---|---|---|
| Loading... | |||
| Schools nearby | Grades | Distance | Rating |
|---|---|---|---|
| Loading... | |||
Data powered by ATTOM Data Solutions. Copyright© 2025. Information deemed reliable but not guaranteed.
The schools shown represent both the assigned schools and schools by distance based on local school and district attendance boundaries. Attendance boundaries change based on various factors and proximity does not guarantee enrollment eligibility. Please consult your real estate agent and/or the school district to confirm the schools this property is zoned to attend. Information is deemed reliable but not guaranteed.
SchoolDigger ® Rating
The SchoolDigger rating system is a 1-5 scale with 5 as the highest rating. SchoolDigger ranks schools based on test scores supplied by each state's Department of Education. They calculate an average standard score by normalizing and averaging each school's test scores across all tests and grades.
Coming soon properties will soon be on the market, but are not yet available for showings.