16409 Fernridge Street Clermont, FL 34714
For Sale MLS# O6316379
4 beds 3 baths 2,109 sq ft Single Family
Details for 16409 Fernridge Street
MLS# O6316379
Description for 16409 Fernridge Street, Clermont, FL, 34714
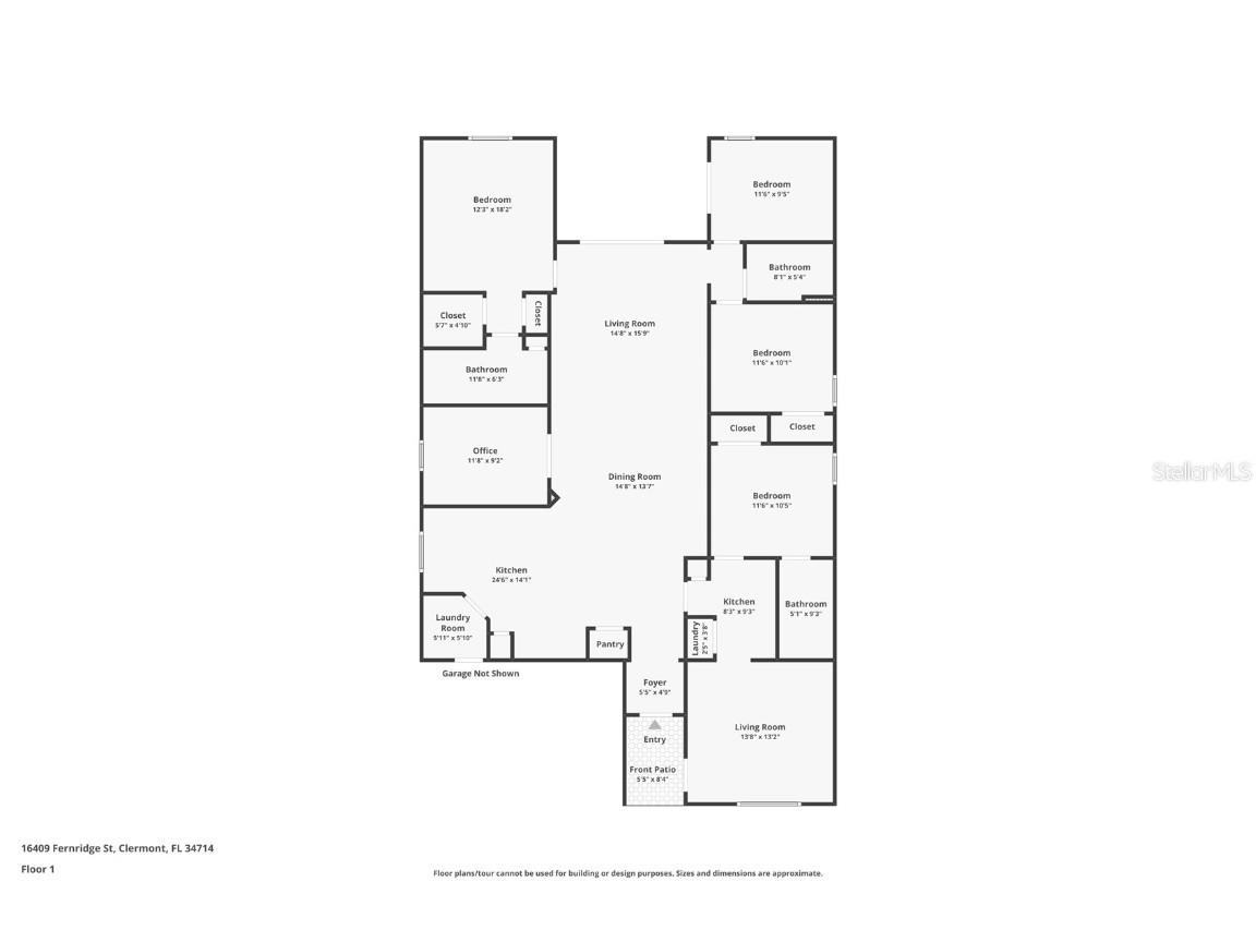
New price—rare 60-ft wide corner lot Next Gen home with added separation and extra natural light in Sawgrass Bay. Built in 2021, this single-story layout offers 4 bedrooms + office, 3 bathrooms, and a 2-car garage, plus true multigenerational design with two separate entrances, two kitchens/kitchenette areas, two living rooms, and two laundry spaces. The main residence features 3 bedrooms, 2 baths, and a versatile office. An open kitchen with stainless steel appliances and quartz countertops flows into the family room and out to a covered patio—great for everyday living or entertaining. The private in-law/Next Gen suite includes its own entrance, bedroom, full bath, living area, and kitchenette—ideal for extended family, guests, or long-term stays. Unlike most homes in the community, this property sits on a 60-ft wide corner lot, offering more space, added separation from the only adjacent neighbor, and extra natural light. Smart, efficient, and move-in ready: solar panels help offset electric bills. Community amenities include a resort-style pool, playgrounds, athletic fields, and scenic walking trails. Enjoy very low HOA fees and the wider 60-ft home sites that provide more space and privacy between neighbors. Available again and ready for a new contract. Prime Clermont location just off U.S. 27 near U.S. 192—under 10 minutes to Lake Louisa State Park, about 30 minutes to Walt Disney World, and approximately 7 minutes to the new Wellness Way area with quick access to Winter Garden. Have it all: convenience, nature, and a beautifully designed forever home at Sawgrass Bay. Schedule your private showing today.
Listing Information
Property Type: Residential, Single Family Residence
Status: Active
Bedrooms: 4
Bathrooms: 3
Lot Size: 0.19 Acres
Square Feet: 2,109 sq ft
Year Built: 2021
Garage: Yes
Stories: 1 Story
Construction: Brick,Block
Construction Display: New Construction
Subdivision: Sawgrass Bay
Foundation: Block
County: Lake
Construction Status: New Construction
School Information
Elementary: Sawgrass Bay Elementary
Middle: Windy Hill Middle
High: East Ridge High
Room Information
Main Floor
Dining Room: 14x15
Living Room: 16x15
Kitchen: 4x25
Office: 9x12
Bathroom 2: 5x8
Bedroom 3: 10x12
Bedroom 2: 10x12
Primary Bathroom: 6x11
Primary Bedroom: 18x12
Bathrooms
Full Baths: 3
Additonal Room Information
Laundry: Laundry Room
Interior Features
Appliances: Washer, Microwave, Range, Refrigerator, Dishwasher, Disposal, Dryer
Flooring: Carpet,Ceramic Tile
Doors/Windows: Blinds
Additional Interior Features: Eat-In Kitchen, Walk-In Closet(s)
Utilities
Water: Public
Sewer: Public Sewer
Other Utilities: Electricity Available,Water Available
Cooling: Central Air
Heating: Central, Electric
Exterior / Lot Features
Attached Garage: Attached Garage
Garage Spaces: 2
Roof: Shingle
Pool: Association, Community
Additional Exterior/Lot Features: Corner Lot
Community Features
Community Features: Sidewalks, Pool, Playground
Association Amenities: Playground, Pool
Homeowners Association: Yes
HOA Dues: $135 / Quarterly
Driving Directions
From I-4, take US-192 West. Turn right onto US-27 North. Turn right on Sawgrass Bay Blvd, then right on Superior Blvd. Next, turn right onto Champlain St. and finally left onto Fernridge St. Home will be on your right.
Financial Considerations
Terms: Cash,Conventional,FHA,VA Loan
Tax/Property ID: 10-24-26-0015-000-56400
Tax Amount: 5049
Tax Year: 2024
A broker reciprocity listing courtesy: DREAM FINDERS REALTY GROUP CORP
Based on information provided by Stellar MLS as distributed by the MLS GRID. Information from the Internet Data Exchange is provided exclusively for consumers’ personal, non-commercial use, and such information may not be used for any purpose other than to identify prospective properties consumers may be interested in purchasing. This data is deemed reliable but is not guaranteed to be accurate by Edina Realty, Inc., or by the MLS. Edina Realty, Inc., is not a multiple listing service (MLS), nor does it offer MLS access.
Copyright 2026 Stellar MLS as distributed by the MLS GRID. All Rights Reserved.
Payment Calculator
Interest rate and annual percentage rate (APR) are based on current market conditions, are for informational purposes only, are subject to change without notice and may be subject to pricing add-ons related to property type, loan amount, loan-to-value, credit score and other variables. Estimated closing costs used in the APR calculation are assumed to be paid by the borrower at closing. If the closing costs are financed, the loan, APR and payment amounts will be higher. If the down payment is less than 20%, mortgage insurance may be required and could increase the monthly payment and APR. Contact us for details. Additional loan programs may be available. Accuracy is not guaranteed, and all products may not be available in all borrower's geographical areas and are based on their individual situation. This is not a credit decision or a commitment to lend.
Sales History & Tax Summary for 16409 Fernridge Street
Sales History
| Date | Price | |
|---|---|---|
| Currently not available. | ||
Tax Summary
| Tax Year | Estimated Market Value | Total Tax |
|---|---|---|
| Currently not available. | ||
Data powered by ATTOM Data Solutions. Copyright© 2026. Information deemed reliable but not guaranteed.
Schools
Schools nearby 16409 Fernridge Street
| Schools in attendance boundaries | Grades | Distance | Rating |
|---|---|---|---|
| Loading... | |||
| Schools nearby | Grades | Distance | Rating |
|---|---|---|---|
| Loading... | |||
Data powered by ATTOM Data Solutions. Copyright© 2026. Information deemed reliable but not guaranteed.
The schools shown represent both the assigned schools and schools by distance based on local school and district attendance boundaries. Attendance boundaries change based on various factors and proximity does not guarantee enrollment eligibility. Please consult your real estate agent and/or the school district to confirm the schools this property is zoned to attend. Information is deemed reliable but not guaranteed.
SchoolDigger ® Rating
The SchoolDigger rating system is a 1-5 scale with 5 as the highest rating. SchoolDigger ranks schools based on test scores supplied by each state's Department of Education. They calculate an average standard score by normalizing and averaging each school's test scores across all tests and grades.
Coming soon properties will soon be on the market, but are not yet available for showings.