$729,900
1651 Sand Key Estates Court #78 Clearwater, FL 33767
For Sale MLS# TB8446506
2 beds 2 baths 1,530 sq ft Condo
Details for 1651 Sand Key Estates Court #78
MLS# TB8446506
Description for 1651 Sand Key Estates Court #78, Clearwater, FL, 33767
Stunning Corner Waterfront Condo with Boat Slip, Lift, and Rare Under-Building Parking! Experience luxury coastal living at its finest in this exceptional corner unit at Harborage I, offering breathtaking panoramic views of the Gulf of Mexico, Intracoastal Waterway, and Sand Key Beach. This spacious 2-bedroom, 2-bath residence was beautifully renovated in 2022, showcasing a modern kitchen, updated bathrooms, and refined finishes throughout. A true boater’s paradise, this home includes a deep-water boat slip with a 12,000 lb lift, providing quick access to open waters. Enjoy the convenience of a rare under-building tandem parking space, ensuring protection for your vehicles and easy access to your unit. The open floor plan is filled with natural light, featuring large windows that frame sparkling water views from nearly every room. The inviting master suite offers a generous walk-in closet and a spa-inspired ensuite bath with a soaking tub and separate glass-enclosed shower. Step onto your large private balcony to watch dolphins, manatees, and sailboats drift by while soaking in the coastal breeze. Harborage I residents enjoy a serene, gated community atmosphere while being minutes from award-winning beaches, fine dining, boutique shopping, and vibrant nightlife. Don’t miss this rare opportunity to own one of the most desirable corner units in Harborage I — where every day feels like a vacation!
Listing Information
Property Type: Residential, Condominium
Status: Active
Bedrooms: 2
Bathrooms: 2
Lot Size: 2.42 Acres
Square Feet: 1,530 sq ft
Year Built: 1982
Stories: 1 Story
Construction: Block,Concrete,Stucco
Construction Display: New Construction
Subdivision: Harborage Condo Belleair Beach
Foundation: Block,Pillar/Post/Pier,Slab
County: Pinellas
Construction Status: New Construction
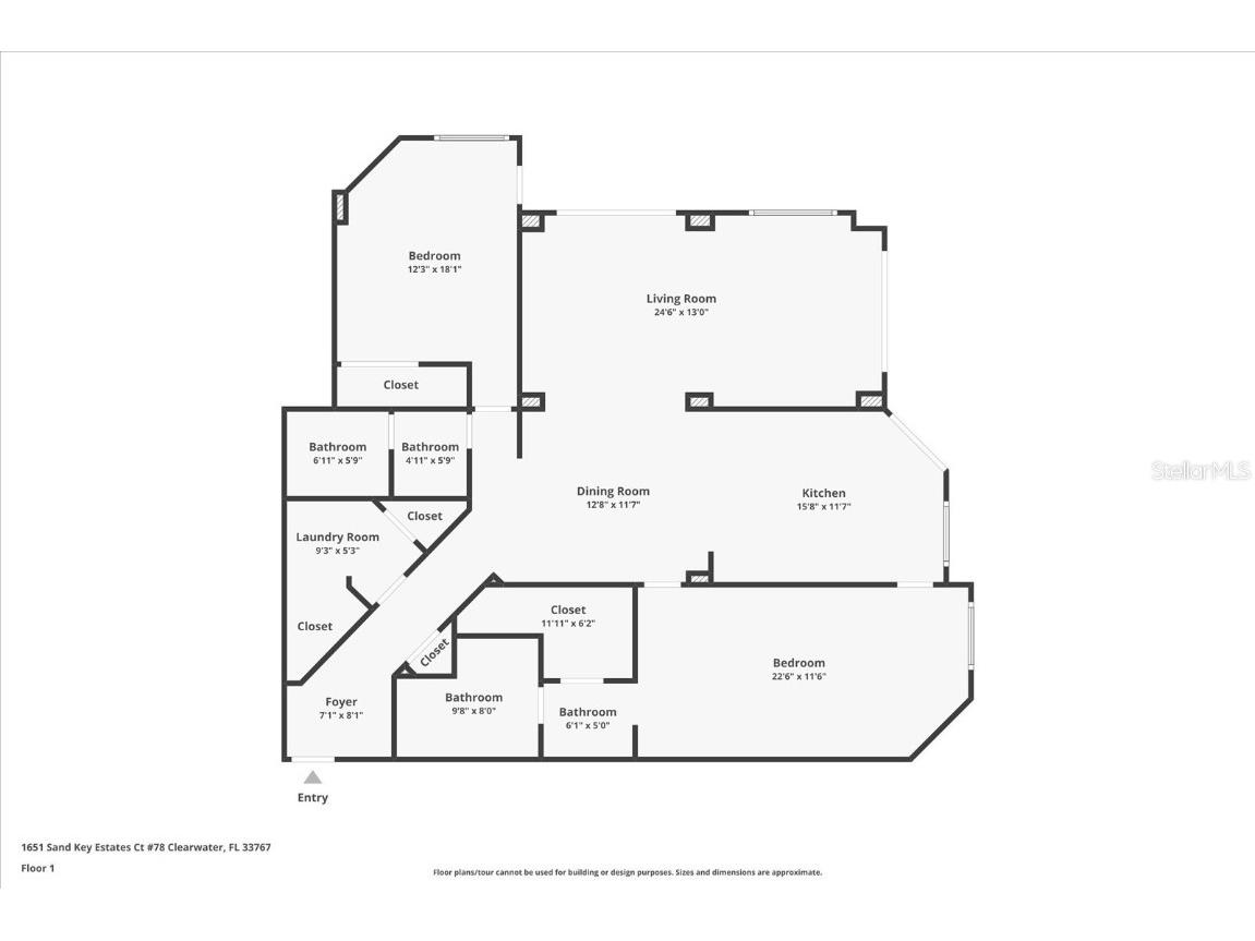
Room Information
Main Floor
Porch: 5x47
Bedroom 2: 18x12
Primary Bedroom: 11x22
Kitchen: 11x15
Dining Room: 111x12
Living Room: 13x24
Bathrooms
Full Baths: 2
Additonal Room Information
Laundry: Laundry Room, Inside
Interior Features
Appliances: Water Softener, Electric Water Heater, Microwave, Range, Refrigerator, Dishwasher, Disposal
Flooring: Carpet,Ceramic Tile,Tile,Vinyl
Doors/Windows: Blinds, Window Treatments
Additional Interior Features: Ceiling Fan(s), Living/Dining Room, Split Bedrooms, Window Treatments, Walk-In Closet(s), Main Level Primary, Solid Surface Counters, Kitchen/Family Room Combo, Open Floorplan
Utilities
Water: Public
Sewer: Public Sewer
Other Utilities: Cable Available,Electricity Connected,Municipal Utilities,Sewer Connected,Underground Utilities,Water Available,Water Connected
Cooling: Ceiling Fan(s), Central Air
Heating: Central, Electric
Exterior / Lot Features
Parking Description: Guest, Tandem, Assigned
Roof: Built-Up, Membrane
Pool: Association, Heated, Community, In Ground, Gunite
Lot View: Bay,Beach,Canal,Garden,Intercoastal,Marina,Ocean,Pool,Tennis Court,Trees/Woods,Water
Additional Exterior/Lot Features: Sprinkler/Irrigation, Lighting, Outdoor Grill, Balcony, Storage, Tennis Court(s), Garden, Balcony, Wrap Around, Level, Flat, Landscaped, Near Public Transit, Private Road, City Lot, Dead End, Buyer Approval Required, Outside City Limits
Waterfront Details
Water Front Features: Bay Access, Canal Access, Intracoastal Access
Community Features
Community Features: Water Access, Community Mailbox, Recreation Area, Gated, Marina, Street Lights, Waterfront, Pool, Sidewalks, Tennis Court(s), Dock
Security Features: Fire Alarm, Gated Community, Gated with Guard, Key Card Entry, Lobby Secured, Smoke Detector(s)
Association Amenities: Cable TV, Elevator(s), Pool, Tennis Court(s), Storage, Maintenance Grounds, Pickleball
HOA Dues Include: Reserve Fund, Road Maintenance, Common Areas, Maintenance Structure, Pool(s), Maintenance Grounds, Pest Control, Insurance, Association Management, Taxes, Security, Sewer, Recreation Facilities, Trash, Water, Cable TV
Homeowners Association: Yes
HOA Dues: $1,209 / Monthly
Driving Directions
Go west on Belleair Causeway and turn north on Gulf Blvd. Drive through Belleair Beach and past the Belleair Beach Marina on the east side of the street. Make a right turn into the upcoming Guard House. The Guard will give you a pass when you present a business card. The unit is located in Harborage 1. Park in guest parking in front of the Tennis/Pickleball court. Proceed to the North/Main entrance.
Financial Considerations
Terms: Cash,Conventional
Tax/Property ID: 30-29-15-35630-000-0780
Tax Amount: 12173
Tax Year: 2024
A broker reciprocity listing courtesy: CHARLES RUTENBERG REALTY INC
Based on information provided by Stellar MLS as distributed by the MLS GRID. Information from the Internet Data Exchange is provided exclusively for consumers’ personal, non-commercial use, and such information may not be used for any purpose other than to identify prospective properties consumers may be interested in purchasing. This data is deemed reliable but is not guaranteed to be accurate by Edina Realty, Inc., or by the MLS. Edina Realty, Inc., is not a multiple listing service (MLS), nor does it offer MLS access.
Copyright 2025 Stellar MLS as distributed by the MLS GRID. All Rights Reserved.
Payment Calculator
Interest rate and annual percentage rate (APR) are based on current market conditions, are for informational purposes only, are subject to change without notice and may be subject to pricing add-ons related to property type, loan amount, loan-to-value, credit score and other variables. Estimated closing costs used in the APR calculation are assumed to be paid by the borrower at closing. If the closing costs are financed, the loan, APR and payment amounts will be higher. If the down payment is less than 20%, mortgage insurance may be required and could increase the monthly payment and APR. Contact us for details. Additional loan programs may be available. Accuracy is not guaranteed, and all products may not be available in all borrower's geographical areas and are based on their individual situation. This is not a credit decision or a commitment to lend.
Sales History & Tax Summary for 1651 Sand Key Estates Court #78
Sales History
| Date | Price | Change |
|---|---|---|
| Currently not available. | ||
Tax Summary
| Tax Year | Estimated Market Value | Total Tax |
|---|---|---|
| Currently not available. | ||
Data powered by ATTOM Data Solutions. Copyright© 2025. Information deemed reliable but not guaranteed.
Schools
Schools nearby 1651 Sand Key Estates Court #78
| Schools in attendance boundaries | Grades | Distance | Rating |
|---|---|---|---|
| Loading... | |||
| Schools nearby | Grades | Distance | Rating |
|---|---|---|---|
| Loading... | |||
Data powered by ATTOM Data Solutions. Copyright© 2025. Information deemed reliable but not guaranteed.
The schools shown represent both the assigned schools and schools by distance based on local school and district attendance boundaries. Attendance boundaries change based on various factors and proximity does not guarantee enrollment eligibility. Please consult your real estate agent and/or the school district to confirm the schools this property is zoned to attend. Information is deemed reliable but not guaranteed.
SchoolDigger ® Rating
The SchoolDigger rating system is a 1-5 scale with 5 as the highest rating. SchoolDigger ranks schools based on test scores supplied by each state's Department of Education. They calculate an average standard score by normalizing and averaging each school's test scores across all tests and grades.
Coming soon properties will soon be on the market, but are not yet available for showings.