1651 Seabury Point Road NW Palm Bay, FL 32907
For Sale MLS# NS1085336
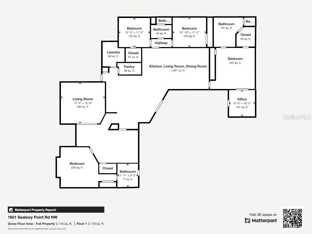
4 beds 4 baths 3,004 sq ft Single Family
Details for 1651 Seabury Point Road NW
MLS# NS1085336
Description for 1651 Seabury Point Road NW, Palm Bay, FL, 32907
Welcome to your dream home! This stunning 4-bed, 3.5-bath, brick, pool home is situated on over an acre of beautifully landscaped grounds in the highly desired area of Seabury Point. With only 13 homes in this exclusive cul-de-sac neighborhood, opportunities to live in this special and unique area of Palm Bay are rare. This sprawling, 3000+ sq ft, single story home, with high ceilings, tons of windows and an open flowing floorplan, is perfect for large families, growing families and multigenerational families. Entering the open and welcoming foyer, you will immediately experience the spacious feel of the home with formal living room to your left, and a perfect view of the beautiful pool outside just beyond your formal dining room. As you wind past the dining room into the central hub of the home, you come upon the beautifully remodeled kitchen, where you will see yourself entertaining family and friends - with brand new quartz countertops, a new gas cooktop in the kitchen island, a GE Trivection oven, and a large microwave/convection oven. The kitchen space opens seamlessly into the large family room featuring a real wood burning fireplace and more views of the pool. Exit the kitchen through the "Dutch" doors to experience your sparkling pool oasis with over 1000 square feet of natural flagstone deck and a soothing natural stone waterfall. The huge covered portion of the deck is the ideal setting for outdoor dining and entertaining. At the end of the evening, your spacious primary suite welcomes you to relax and unwind. The luxurious remodeled ensuite bathroom pampers you with dual vanities, an Italian tiled shower with glass doors, and a jetted garden tub. The primary suite features a large walk-in closet, and an adjoining private sitting room which can serve as an office or nursery space with views of the pool and a private exit to the pool. The second and third bedrooms and a bathroom situated off the family room are perfect for guests and family. The fourth bedroom, separated across the house, can serve as a guest suite or mother in law suite. It features a cozy window seat overlooking the property, and has its own bathroom with a fully tiled shower, an antique claw-foot tub, and has direct access to the pool deck. This home provides plenty of storage with closets everywhere, a spacious laundry room (with utility sink and lots of cabinet storage), and the extra-large walk-in pantry located just off of the kitchen. Car enthusiasts will love the massive, oversized 3-car garage and the additional backyard workshop (with A/C). There is also several hundred square feet of attic floor space above the garage for more storage options. The home is extremely energy efficient with extra thick batt insulation plus radiant barrier roof insulation, all double pane low E windows, and efficient heat pump HVAC that keep electric bills incredibly low. There is an 8-zone automatic irrigation system, on its own well. Recent updates to the home include a brand-new roof (2025), new pool pump (2025), new water softener (2024) and pool screen replacement (2023). The location offers the feel of quiet country living, yet is less than 2 miles from restaurants/shopping, and just minutes away from downtown Melbourne, Brevard County beaches, and the Melbourne International Airport. A power substation less than 1/4 mile away (with underground cabling) provides super reliable power. Call today to schedule a tour of this very special property.
Listing Information
Property Type: Residential, Single Family Residence
Status: Active
Bedrooms: 4
Bathrooms: 4
Lot Size: 1.02 Acres
Square Feet: 3,004 sq ft
Year Built: 1993
Garage: Yes
Stories: 1 Story
Construction: Brick,Wood Frame
Subdivision: Seabury Point Trust
Foundation: Slab
County: Brevard
Room Information
Main Floor
Bedroom 4: 12x11
Living Room: 17x15
Bedroom 3: 12x11
Bedroom 2: 15x14
Office: 10x10
Primary Bedroom: 15x15
Laundry: 9x6
Kitchen: 21x18
Dining Room: 12x12
Family Room: 18x15
Bathrooms
Full Baths: 3
1/2 Baths: 1
Additonal Room Information
Laundry: Laundry Room
Interior Features
Appliances: Convection Oven, Cooktop, Dishwasher, Dryer, Microwave, Range, Refrigerator, Washer
Flooring: Carpet,Tile
Doors/Windows: Window Treatments
Fireplaces: Wood Burning
Additional Interior Features: Eat-In Kitchen, Ceiling Fan(s), High Ceilings, Walk-In Closet(s), Window Treatments, Main Level Primary
Utilities
Water: Well, Private
Sewer: Septic Tank
Other Utilities: Electricity Connected,Other,Water Connected
Cooling: Ceiling Fan(s), Central Air
Heating: Central
Exterior / Lot Features
Attached Garage: Attached Garage
Garage Spaces: 3
Roof: Shingle
Pool: In Ground, Screen Enclosure
Fencing: Wood
Additional Exterior/Lot Features: Storage, Rear Porch, Screened
Out Buildings: Shed(s)
Driving Directions
From Minton Rd go west on Hield Rd to SEABURY POINT RD. Take a right and home is on the right.
Financial Considerations
Terms: Cash,Conventional,FHA,VA Loan
Tax/Property ID: 28 3623-25-*-13
Tax Amount: 9390.79
Tax Year: 2024
A broker reciprocity listing courtesy: THE KEYES COMPANY
Based on information provided by Stellar MLS as distributed by the MLS GRID. Information from the Internet Data Exchange is provided exclusively for consumers’ personal, non-commercial use, and such information may not be used for any purpose other than to identify prospective properties consumers may be interested in purchasing. This data is deemed reliable but is not guaranteed to be accurate by Edina Realty, Inc., or by the MLS. Edina Realty, Inc., is not a multiple listing service (MLS), nor does it offer MLS access.
Copyright 2025 Stellar MLS as distributed by the MLS GRID. All Rights Reserved.
Payment Calculator
Interest rate and annual percentage rate (APR) are based on current market conditions, are for informational purposes only, are subject to change without notice and may be subject to pricing add-ons related to property type, loan amount, loan-to-value, credit score and other variables. Estimated closing costs used in the APR calculation are assumed to be paid by the borrower at closing. If the closing costs are financed, the loan, APR and payment amounts will be higher. If the down payment is less than 20%, mortgage insurance may be required and could increase the monthly payment and APR. Contact us for details. Additional loan programs may be available. Accuracy is not guaranteed, and all products may not be available in all borrower's geographical areas and are based on their individual situation. This is not a credit decision or a commitment to lend.
Sales History & Tax Summary for 1651 Seabury Point Road NW
Sales History
| Date | Price | Change |
|---|---|---|
| Currently not available. | ||
Tax Summary
| Tax Year | Estimated Market Value | Total Tax |
|---|---|---|
| Currently not available. | ||
Data powered by ATTOM Data Solutions. Copyright© 2025. Information deemed reliable but not guaranteed.
Schools
Schools nearby 1651 Seabury Point Road NW
| Schools in attendance boundaries | Grades | Distance | Rating |
|---|---|---|---|
| Loading... | |||
| Schools nearby | Grades | Distance | Rating |
|---|---|---|---|
| Loading... | |||
Data powered by ATTOM Data Solutions. Copyright© 2025. Information deemed reliable but not guaranteed.
The schools shown represent both the assigned schools and schools by distance based on local school and district attendance boundaries. Attendance boundaries change based on various factors and proximity does not guarantee enrollment eligibility. Please consult your real estate agent and/or the school district to confirm the schools this property is zoned to attend. Information is deemed reliable but not guaranteed.
SchoolDigger ® Rating
The SchoolDigger rating system is a 1-5 scale with 5 as the highest rating. SchoolDigger ranks schools based on test scores supplied by each state's Department of Education. They calculate an average standard score by normalizing and averaging each school's test scores across all tests and grades.
Coming soon properties will soon be on the market, but are not yet available for showings.