16511 Enclave Village Drive #107 Tampa, FL 33647
For Sale MLS# TB8394639
2 beds 2 baths 1,270 sq ft Condo
Details for 16511 Enclave Village Drive #107
MLS# TB8394639
Description for 16511 Enclave Village Drive #107, Tampa, FL, 33647
Bright & Spacious 2-Bedroom Condo in Gated Tampa Palms Community. Step into comfort and style in this beautifully maintained 2-bedroom, 2-bath condo located in the desirable gated community of The Promenade at Tampa Palms. From the moment you walk in, you'll notice the open, sun-filled layout that creates a cheerful and relaxing ambiance. The generous living area is highlighted by large windows that flood the space with natural light. The kitchen features a functional peninsula island, a roomy closet pantry, and charming overhead planter shelves—plus, all appliances are included for your convenience. Just off the kitchen, the dining space easily fits a full-size table, perfect for everyday meals or hosting friends and family. The oversized primary suite offers a true retreat, with space for a king-sized bed, a large walk-in closet, and an en-suite bath complete with a soaking garden tub, separate shower, and plenty of elbow room. You'll also love the separate laundry room with washer, dryer, and added cabinetry for storage. Step outside to unwind on the private screened-in patio, which also includes an exterior storage closet for added convenience. Living at The Promenade means enjoying resort-style amenities like a sparkling pool, relaxing spa, fitness center, and clubhouse. With top-rated schools nearby and easy access to shopping, dining, the Tampa Premium Outlets, Shoppes at Wiregrass, and the YMCA—you’ll be close to everything you need while enjoying the privacy and peace of a gated community.
Listing Information
Property Type: Residential, Condominium
Status: Active
Bedrooms: 2
Bathrooms: 2
Square Feet: 1,270 sq ft
Year Built: 2000
Stories: 1 Story
Construction: Wood Frame
Property Attached: Yes
Construction Display: New Construction
Subdivision: The Promenade At Tampa Palms A
Foundation: Slab
County: Hillsborough
Construction Status: New Construction
School Information
Elementary: Tampa Palms-Hb
Middle: Liberty-Hb
High: Freedom-Hb
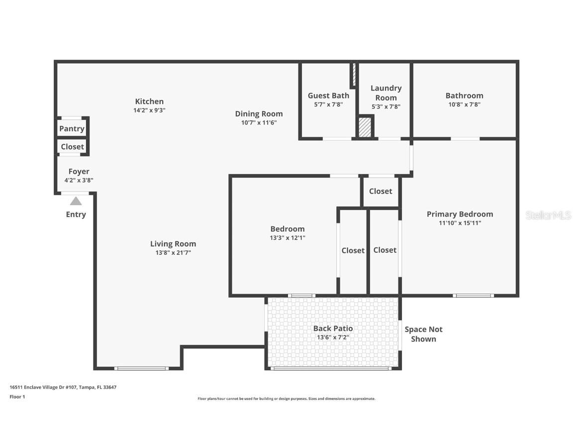
Room Information
Main Floor
Laundry: 7.8x5.3
Porch: 7.2x13.6
Bedroom 2: 12.1x13.3
Primary Bedroom: 15.11x11.1
Kitchen: 9.3x14.2
Dining Room: 11.6x10.7
Living Room: 21.7x13.8
Bathrooms
Full Baths: 2
Additonal Room Information
Laundry: Inside, Laundry Closet
Interior Features
Appliances: Washer, Electric Water Heater, Dishwasher, Disposal, Dryer, Microwave, Refrigerator
Flooring: Carpet,Tile
Doors/Windows: Blinds
Additional Interior Features: Living/Dining Room
Utilities
Water: Public
Sewer: Public Sewer
Other Utilities: Cable Available,Electricity Connected,High Speed Internet Available,Sewer Connected
Cooling: Central Air
Heating: Central
Exterior / Lot Features
Roof: Shingle
Pool: Association, Community
Additional Exterior/Lot Features: Storage, Covered, Rear Porch, Landscaped, City Lot
Community Features
Community Features: Street Lights, Sidewalks
Association Amenities: Spa/Hot Tub, Gated, Clubhouse, Fitness Center, Pool
HOA Dues Include: Trash, Sewer, Maintenance Grounds, Maintenance Structure, Pool(s)
Homeowners Association: Yes
HOA Dues: $645 / Monthly
Driving Directions
From Bruce B Downs Blvd and I-75, go south on BBD to right on Tampa Palms Blvd to right on Compton Drive to left into the community.
Financial Considerations
Terms: Cash,Conventional
Tax/Property ID: A-26-27-19-92D-000008-16511.0
Tax Amount: 2752
Tax Year: 2024
A broker reciprocity listing courtesy: CENTURY 21 ELITE LOCATIONS, INC
Based on information provided by Stellar MLS as distributed by the MLS GRID. Information from the Internet Data Exchange is provided exclusively for consumers’ personal, non-commercial use, and such information may not be used for any purpose other than to identify prospective properties consumers may be interested in purchasing. This data is deemed reliable but is not guaranteed to be accurate by Edina Realty, Inc., or by the MLS. Edina Realty, Inc., is not a multiple listing service (MLS), nor does it offer MLS access.
Copyright 2026 Stellar MLS as distributed by the MLS GRID. All Rights Reserved.
Payment Calculator
Interest rate and annual percentage rate (APR) are based on current market conditions, are for informational purposes only, are subject to change without notice and may be subject to pricing add-ons related to property type, loan amount, loan-to-value, credit score and other variables. Estimated closing costs used in the APR calculation are assumed to be paid by the borrower at closing. If the closing costs are financed, the loan, APR and payment amounts will be higher. If the down payment is less than 20%, mortgage insurance may be required and could increase the monthly payment and APR. Contact us for details. Additional loan programs may be available. Accuracy is not guaranteed, and all products may not be available in all borrower's geographical areas and are based on their individual situation. This is not a credit decision or a commitment to lend.
Sales History & Tax Summary for 16511 Enclave Village Drive #107
Sales History
| Date | Price | |
|---|---|---|
| Currently not available. | ||
Tax Summary
| Tax Year | Estimated Market Value | Total Tax |
|---|---|---|
| Currently not available. | ||
Data powered by ATTOM Data Solutions. Copyright© 2026. Information deemed reliable but not guaranteed.
Schools
Schools nearby 16511 Enclave Village Drive #107
| Schools in attendance boundaries | Grades | Distance | Rating |
|---|---|---|---|
| Loading... | |||
| Schools nearby | Grades | Distance | Rating |
|---|---|---|---|
| Loading... | |||
Data powered by ATTOM Data Solutions. Copyright© 2026. Information deemed reliable but not guaranteed.
The schools shown represent both the assigned schools and schools by distance based on local school and district attendance boundaries. Attendance boundaries change based on various factors and proximity does not guarantee enrollment eligibility. Please consult your real estate agent and/or the school district to confirm the schools this property is zoned to attend. Information is deemed reliable but not guaranteed.
SchoolDigger ® Rating
The SchoolDigger rating system is a 1-5 scale with 5 as the highest rating. SchoolDigger ranks schools based on test scores supplied by each state's Department of Education. They calculate an average standard score by normalizing and averaging each school's test scores across all tests and grades.
Coming soon properties will soon be on the market, but are not yet available for showings.