1655 E Highway 329 Citra, FL 32113
For Sale MLS# OM706406
3 beds 3 baths 945 sq ft Single Family
Details for 1655 E Highway 329
MLS# OM706406
Description for 1655 E Highway 329, Citra, FL, 32113
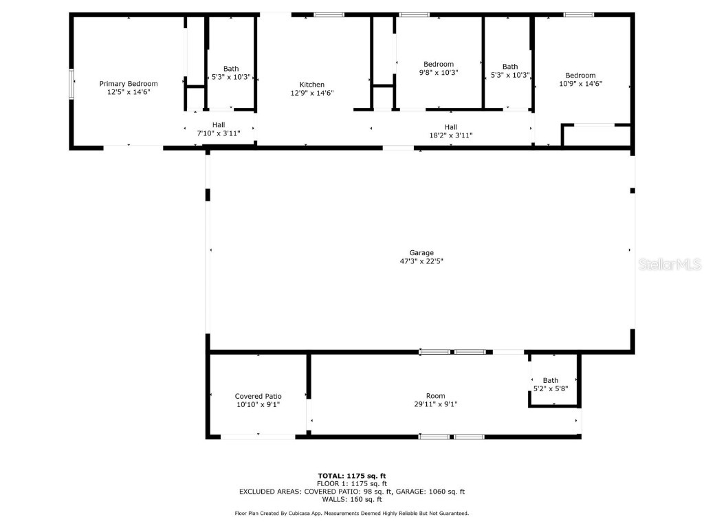
LOCATION! LOCATION! A BEAUTIFUL BARNDOMINIUM SITTING ON 3.05 ACRES CENTRALLY LOCATED BETWEEN OCALA AND GAINESVILLE! THIS IS DEFINITELY A ONE OF A KIND PROPERTY! THE HOME CONSISTS OF 3 BEDROOMS AND 2.5 BATHS, VINYL FLOORING THROUGHOUT, GRANITE COUNTERTOPS, AND ALL STAINLESS STEEL APPLIANCES! THE GARAGE CONSISTS OF 1,138 SQUARE FEET AND IS FULLY INSULATED AND RUNS OFF OF ITS ON SEPERATE AC IF YOU SO DESIRE! ON ONE SIDE OF THE GARAGE YOU HAVE YOUR 945 SQ FT 3 BED 2 BATH HOUSE AND ON THE OTHER SIDE OF THE INSULATED AIR CONDITIONED GARAGE YOU HAVE 470 SQ FT WHICH CONSISTS OF A STORAGE AREA, A 1/2 BATH, AND A LARGE ROOM THAT COULD BE USED FOR STORAGE OR TURNED INTO A 4TH BEDROOM. OFF THE BACK OF THE HOUSE YOU HAVE A COVERED PATIO PERFECT FOR GRILLING OUT AND A BIG SCREEN TV ON THE WALL! THE ENTIRE HOUSE IS SPRAY FOAMED INCLUDING THE WALLS MAKING IT SUPER ENERGY EFFICIENT. THE PROPERTY CONSISTS OF 3.05 ACRES BUT THE FULLY FENCED IN AREA CONSIST OF 2 ACRES. THE HOUSE IS PERFECTLY LOCATED ON HWY 329 IN SPARR WHICH MEANS YOU'RE ONLY 2 MINUTES FROM 441, 10 MINUTES FROM I75, 20 MINUTES FROM OCALA, 30 MINUTES FROM THE WORLD EQUESTRIAN CENTER AND 45 MINUTES FROM GAINESVILLE! THE PROPERTY IS ZONED AGRICULTURE SO BRING THE ANIMALS WITH YOU!
Listing Information
Property Type: Residential, Single Family Residence
Status: Active
Bedrooms: 3
Bathrooms: 3
Lot Size: 3.05 Acres
Square Feet: 945 sq ft
Year Built: 2024
Garage: Yes
Stories: 1 Story
Construction: Metal Siding
Subdivision: None
Foundation: Slab
County: Marion
Room Information
Main Floor
Living Room: 10x13
Bedroom 1:
Kitchen: 13x13
Primary Bedroom: 14x12
Bathrooms
Full Baths: 2
1/2 Baths: 1
Additonal Room Information
Laundry: In Garage
Interior Features
Appliances: Microwave, Range, Refrigerator, Dishwasher
Flooring: Laminate
Additional Interior Features: Split Bedrooms, Main Level Primary, Eat-In Kitchen
Utilities
Water: Well
Sewer: Septic Tank
Other Utilities: Cable Connected,Electricity Connected,Fiber Optic Available
Cooling: Central Air
Heating: Central
Exterior / Lot Features
Attached Garage: Attached Garage
Garage Spaces: 3
Roof: Metal
Lot Dimensions: 244x545
Additional Exterior/Lot Features: Storage
Driving Directions
Take 441 North to highway 329, Turn right on 329 and the house is down on the left.
Financial Considerations
Terms: Cash,Conventional,FHA,VA Loan
Tax/Property ID: 07812-000-01
Tax Amount: 799.07
Tax Year: 2024
A broker reciprocity listing courtesy: KELLER WILLIAMS CORNERSTONE RE
Based on information provided by Stellar MLS as distributed by the MLS GRID. Information from the Internet Data Exchange is provided exclusively for consumers’ personal, non-commercial use, and such information may not be used for any purpose other than to identify prospective properties consumers may be interested in purchasing. This data is deemed reliable but is not guaranteed to be accurate by Edina Realty, Inc., or by the MLS. Edina Realty, Inc., is not a multiple listing service (MLS), nor does it offer MLS access.
Copyright 2025 Stellar MLS as distributed by the MLS GRID. All Rights Reserved.
Payment Calculator
Interest rate and annual percentage rate (APR) are based on current market conditions, are for informational purposes only, are subject to change without notice and may be subject to pricing add-ons related to property type, loan amount, loan-to-value, credit score and other variables. Estimated closing costs used in the APR calculation are assumed to be paid by the borrower at closing. If the closing costs are financed, the loan, APR and payment amounts will be higher. If the down payment is less than 20%, mortgage insurance may be required and could increase the monthly payment and APR. Contact us for details. Additional loan programs may be available. Accuracy is not guaranteed, and all products may not be available in all borrower's geographical areas and are based on their individual situation. This is not a credit decision or a commitment to lend.
Sales History & Tax Summary for 1655 E Highway 329
Sales History
| Date | Price | Change |
|---|---|---|
| Currently not available. | ||
Tax Summary
| Tax Year | Estimated Market Value | Total Tax |
|---|---|---|
| Currently not available. | ||
Data powered by ATTOM Data Solutions. Copyright© 2025. Information deemed reliable but not guaranteed.
Schools
Schools nearby 1655 E Highway 329
| Schools in attendance boundaries | Grades | Distance | Rating |
|---|---|---|---|
| Loading... | |||
| Schools nearby | Grades | Distance | Rating |
|---|---|---|---|
| Loading... | |||
Data powered by ATTOM Data Solutions. Copyright© 2025. Information deemed reliable but not guaranteed.
The schools shown represent both the assigned schools and schools by distance based on local school and district attendance boundaries. Attendance boundaries change based on various factors and proximity does not guarantee enrollment eligibility. Please consult your real estate agent and/or the school district to confirm the schools this property is zoned to attend. Information is deemed reliable but not guaranteed.
SchoolDigger ® Rating
The SchoolDigger rating system is a 1-5 scale with 5 as the highest rating. SchoolDigger ranks schools based on test scores supplied by each state's Department of Education. They calculate an average standard score by normalizing and averaging each school's test scores across all tests and grades.
Coming soon properties will soon be on the market, but are not yet available for showings.