16615 SE 85th Langham Court The Villages, FL 32162
Pending MLS# G5100439
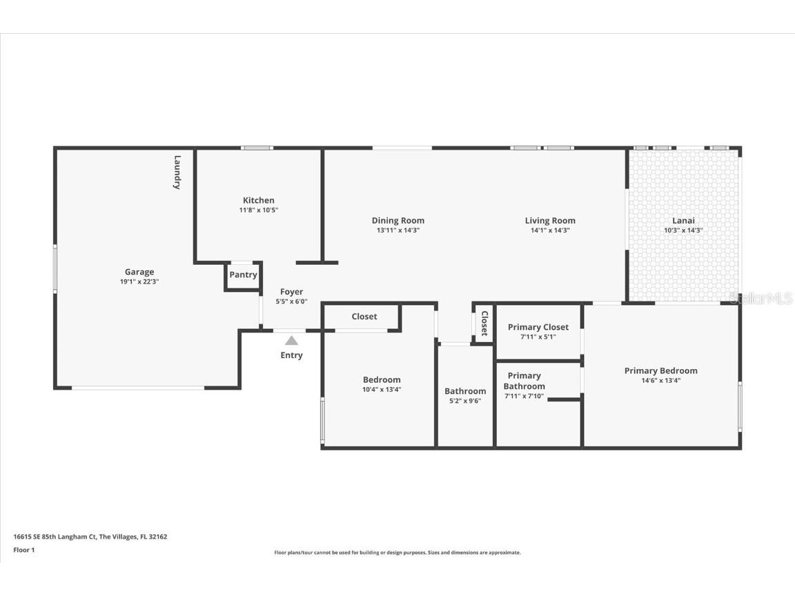
2 beds 2 baths 1,204 sq ft Single Family
Details for 16615 SE 85th Langham Court
MLS# G5100439
Description for 16615 SE 85th Langham Court, The Villages, FL, 32162
TURNKEY 2/2 Private Waterview Courtyard Villa Forsyth Villas in the Village of Briar Meadow. Low Bond Balance 3557.00 New Roof 2021, HVAC 2018, Gas Water Heater 2021. Step into this beautiful home featuring wood-look laminate flooring, tile in all wet areas, plantation shutters and ceiling fans throughout. The open-concept kitchen is equipped with stainless steel appliances, pull-out cabinet shelves, a pantry closet, and abundant counter and cabinet space. A breakfast bar connects the kitchen to the dining area, perfect for casual meals or entertaining. The dining room opens up to an outdoor patio, ideal for al fresco dining and grilling, allowing you to enjoy the peaceful courtyard. The spacious master bedroom boasts lanai access, a large walk-in closet, and an ensuite bath with a walk-in shower with built-in bench. Guests will feel right at home in the well-appointed guest bedroom, which features a pocket door for added privacy, and a guest bath that includes a shower-tub combo for versatility. Enjoy your morning coffee or evening wine from the enclosed lanai overlooking the peaceful water and courtyard—a perfect space to relax and unwind. Additional enhancement include: New washer and dryer, new garage door opener, Electric roll down garage door screen, new king size mattress in the master bedroom, solar tubes in both bathrooms, ductwork cleaned 2021, added receptacles in garage, and glass storm entry door. Fire Hydrant on the property is an insurance benefit. This is a great location with a shopping center, restaurants, banking and medical offices just a golf car ride away. You can walk to The Mulberry Grove Regional Recreation Center and pool. The Lopez Legacy 27-hole championship golf and two challenging executive courses - Walnut Grove and Briarwood are within a mile. The Nancy Lopez Legacy Country Club (also within a mile) offers fine dining and casual fair at the pool bar. This location can't be beat! Watch our video and make your appointment to see this house today so you can start living The Villages Dream! Golf Cart being Sold Separately!
Listing Information
Property Type: Residential, Villa
Status: Pending
Bedrooms: 2
Bathrooms: 2
Lot Size: 0.09 Acres
Square Feet: 1,204 sq ft
Year Built: 2003
Garage: Yes
Stories: 1 Story
Construction: Block,Stucco
Subdivision: The Villages
Foundation: Slab
County: Marion
Room Information
Main Floor
Porch: 15x11
Bedroom 2: 10x10.1
Primary Bedroom: 12x13.4
Living Room: 17x14
Dining Room: 10x10
Kitchen: 11.5x10
Bathrooms
Full Baths: 2
Additonal Room Information
Laundry: In Garage
Interior Features
Appliances: Gas Water Heater, Washer, Microwave, Range, Refrigerator, Dishwasher, Disposal, Dryer
Flooring: Ceramic Tile,Laminate
Doors/Windows: Window Treatments, Shutters
Additional Interior Features: Window Treatments, Walk-In Closet(s), Ceiling Fan(s), Vaulted Ceiling(s), Open Floorplan, High Ceilings, Split Bedrooms, Built-in Features, Solid Surface Counters, Wood Cabinets
Utilities
Water: Public
Sewer: Public Sewer
Other Utilities: Cable Available,Electricity Available,Electricity Connected,Natural Gas Available,Natural Gas Connected,High Speed Internet Available,Phone Available,Sewer Connected,Water Connected
Cooling: Ceiling Fan(s), Central Air
Heating: Central
Exterior / Lot Features
Attached Garage: Attached Garage
Garage Spaces: 2
Parking Description: Garage Door Opener, driveway, Garage, Golf Cart Garage, Garage Faces Side
Roof: Shingle
Pool: Community, Association
Lot View: Pond,Water
Lot Dimensions: 42x94
Fencing: Vinyl, fenced
Additional Exterior/Lot Features: Rain Gutters, Courtyard, Covered, Enclosed, Landscaped
Community Features
Community Features: Pool, Sidewalks, Golf, Dog Park, Fitness, Golf Carts OK, Community Mailbox
Association Amenities: Park, Racquetball, Shuffleboard Court, Pickleball, Golf Course, Trail(s), Recreation Facilities, Fitness Center, Basketball Court, Pool, Tennis Court(s)
HOA Dues Include: Recreation Facilities, Pool(s)
Driving Directions
From US 42 take Buena Vista Blvd to 1st circle and exit on to SE 165 Mulberry Lane to the east. Turn Right on to SE 167 Forsyth St to enter Forsyth Villas. Turn Left on to SE 85th Langham Ct. House will be on the right.
Financial Considerations
Terms: Cash,Conventional,VA Loan
Tax/Property ID: 6717-005-000
Tax Amount: 6170.51
Tax Year: 2024
A broker reciprocity listing courtesy: KELLER WILLIAMS CORNERSTONE RE
Based on information provided by Stellar MLS as distributed by the MLS GRID. Information from the Internet Data Exchange is provided exclusively for consumers’ personal, non-commercial use, and such information may not be used for any purpose other than to identify prospective properties consumers may be interested in purchasing. This data is deemed reliable but is not guaranteed to be accurate by Edina Realty, Inc., or by the MLS. Edina Realty, Inc., is not a multiple listing service (MLS), nor does it offer MLS access.
Copyright 2026 Stellar MLS as distributed by the MLS GRID. All Rights Reserved.
Sales History & Tax Summary for 16615 SE 85th Langham Court
Sales History
| Date | Price | |
|---|---|---|
| Currently not available. | ||
Tax Summary
| Tax Year | Estimated Market Value | Total Tax |
|---|---|---|
| Currently not available. | ||
Data powered by ATTOM Data Solutions. Copyright© 2026. Information deemed reliable but not guaranteed.
Schools
Schools nearby 16615 SE 85th Langham Court
| Schools in attendance boundaries | Grades | Distance | Rating |
|---|---|---|---|
| Loading... | |||
| Schools nearby | Grades | Distance | Rating |
|---|---|---|---|
| Loading... | |||
Data powered by ATTOM Data Solutions. Copyright© 2026. Information deemed reliable but not guaranteed.
The schools shown represent both the assigned schools and schools by distance based on local school and district attendance boundaries. Attendance boundaries change based on various factors and proximity does not guarantee enrollment eligibility. Please consult your real estate agent and/or the school district to confirm the schools this property is zoned to attend. Information is deemed reliable but not guaranteed.
SchoolDigger ® Rating
The SchoolDigger rating system is a 1-5 scale with 5 as the highest rating. SchoolDigger ranks schools based on test scores supplied by each state's Department of Education. They calculate an average standard score by normalizing and averaging each school's test scores across all tests and grades.
Coming soon properties will soon be on the market, but are not yet available for showings.