$899,000
167 Egret Lane Marine On Saint Croix, MN 55047
For Sale MLS# 6699290
3 beds 3 baths 1,600 sq ft Single Family
Details for 167 Egret Lane
MLS# 6699290
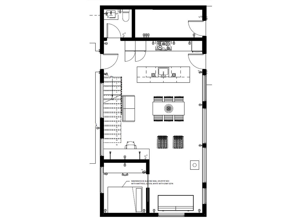
Description for 167 Egret Lane, Marine On Saint Croix, MN, 55047
To-Be-Built – 2-story right in the heart of Jackson Meadow with 3 bedrooms up, main floor flex room, no-step entry and Salmela designed Un-Chimney outdoor fireplace. All homes are custom designed for you. Other homes under construction now. Visit Marine on St. Croix and Jackson Meadow today!
Listing Information
Property Type: Residential, Single Family
Status: Active
Bedrooms: 3
Bathrooms: 3
Lot Size: 0.31 Acres
Square Feet: 1,600 sq ft
Year Built: 2026
Foundation: 800 sq ft
Garage: Yes
Stories: 2 Stories
Construction Display: New Construction
Subdivision: Jackson Meadow
Builder: CATES FINE HOMES LLC
County: Washington
Days On Market: 342
Construction Status: To Be Built/Floor Plan
School Information
District: 834 - Stillwater
Room Information
Main Floor
Dining Room:
Kitchen:
Living Room:
Upper Floor
Bedroom 1:
Bedroom 2:
Bedroom 3:
Bedroom 4:
Bathrooms
Full Baths: 2
1/2 Baths: 1
Additonal Room Information
Family: Main Level
Dining: Eat In Kitchen,Informal Dining Room
Bath Description: Full Primary,Main Floor 1/2 Bath,Private Primary,Upper Level Full Bath
Interior Features
Square Footage above: 1,600 sq ft
Appliances: Washer, Range, Refrigerator, Air-To-Air Exchanger, Dishwasher, Dryer, Water Softener - Owned, Water Filtration System, Iron Filter, Tankless Water Heater
Fireplaces: 1, Wood Burning
Accessibility: No Stairs External
Additional Interior Features: Kitchen Window, Washer/Dryer Hookup, 3 BR on One Level, Cable, Tile Floors, 2nd Floor Laundry
Utilities
Water: Shared System, City Water/Connected
Sewer: Shared System, Private
Cooling: Central
Heating: In-Floor Heating, Electric, Natural Gas
Exterior / Lot Features
Garage Spaces: 2
Parking Description: Garage Door Opener, Driveway - Asphalt, Detached Garage, Garage Door Height - 7, Garage Door Width - 9, Garage Sq Ft - 576.0
Exterior: Engineered Wood
Roof: Metal
Lot Dimensions: 90 x 150
Zoning: Residential-Single Family
Topography: Solar Oriented
Additional Exterior/Lot Features: Underground Utilities, Road Frontage - City, Sidewalks
Soil Type: Clay,Sand
Community Features
HOA Dues Include: Hazard Insurance, Shared Amenities, Other
Homeowners Association: Yes
Association Name: JMNA
HOA Dues: $210 / Monthly
Driving Directions
Highway 95 North to Marine on St. Croix, west on County Road 4, at top of hill road curves to the south to Jackson Meadow
Financial Considerations
Covenants/Deed Restrictions: Rental Restrictions May Apply, Other Covenants, Architecture Committee, Builder Restriction, Mandatory Owners Assoc, Easements
Tax/Property ID: 1203120210017
Tax Amount: 1606
Tax Year: 2025
HomeStead Description: Non-Homesteaded
A broker reciprocity listing courtesy: Coldwell Banker Realty
The data relating to real estate for sale on this web site comes in part from the Broker Reciprocity℠ Program of the Regional Multiple Listing Service of Minnesota, Inc. Real estate listings held by brokerage firms other than Edina Realty, Inc. are marked with the Broker Reciprocity℠ logo or the Broker Reciprocity℠ thumbnail and detailed information about them includes the name of the listing brokers. Edina Realty, Inc. is not a Multiple Listing Service (MLS), nor does it offer MLS access. This website is a service of Edina Realty, Inc., a broker Participant of the Regional Multiple Listing Service of Minnesota, Inc. IDX information is provided exclusively for consumers personal, non-commercial use and may not be used for any purpose other than to identify prospective properties consumers may be interested in purchasing. Open House information is subject to change without notice. Information deemed reliable but not guaranteed.
Copyright 2026 Regional Multiple Listing Service of Minnesota, Inc. All Rights Reserved.
Payment Calculator
Interest rate and annual percentage rate (APR) are based on current market conditions, are for informational purposes only, are subject to change without notice and may be subject to pricing add-ons related to property type, loan amount, loan-to-value, credit score and other variables. Estimated closing costs used in the APR calculation are assumed to be paid by the borrower at closing. If the closing costs are financed, the loan, APR and payment amounts will be higher. If the down payment is less than 20%, mortgage insurance may be required and could increase the monthly payment and APR. Contact us for details. Additional loan programs may be available. Accuracy is not guaranteed, and all products may not be available in all borrower's geographical areas and are based on their individual situation. This is not a credit decision or a commitment to lend.
Sales History & Tax Summary for 167 Egret Lane
Sales History
| Date | Price | |
|---|---|---|
| Currently not available. | ||
Tax Summary
| Tax Year | Estimated Market Value | Total Tax |
|---|---|---|
| Currently not available. | ||
Data powered by ATTOM Data Solutions. Copyright© 2026. Information deemed reliable but not guaranteed.
Schools
Schools nearby 167 Egret Lane
| Schools in attendance boundaries | Grades | Distance | Rating |
|---|---|---|---|
| Loading... | |||
| Schools nearby | Grades | Distance | Rating |
|---|---|---|---|
| Loading... | |||
Data powered by ATTOM Data Solutions. Copyright© 2026. Information deemed reliable but not guaranteed.
The schools shown represent both the assigned schools and schools by distance based on local school and district attendance boundaries. Attendance boundaries change based on various factors and proximity does not guarantee enrollment eligibility. Please consult your real estate agent and/or the school district to confirm the schools this property is zoned to attend. Information is deemed reliable but not guaranteed.
SchoolDigger ® Rating
The SchoolDigger rating system is a 1-5 scale with 5 as the highest rating. SchoolDigger ranks schools based on test scores supplied by each state's Department of Education. They calculate an average standard score by normalizing and averaging each school's test scores across all tests and grades.
Coming soon properties will soon be on the market, but are not yet available for showings.