167 Oak Circle Ocala, FL 34472
For Sale MLS# OM708390
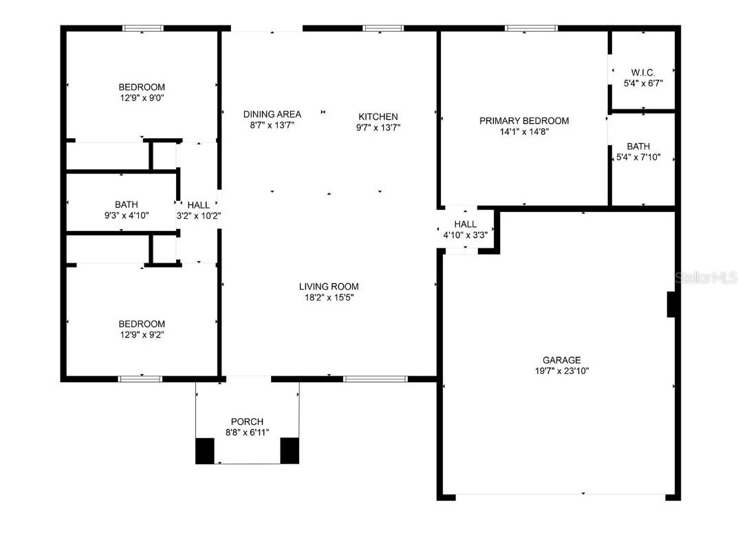
3 beds 2 baths 1,332 sq ft Single Family
Details for 167 Oak Circle
MLS# OM708390
Description for 167 Oak Circle, Ocala, FL, 34472
Built in 2022, this 3-bedroom, 2-bath home in Silver Springs Shores offers a functional split-bedroom layout, modern finishes, and energy-efficient features. The open floor plan includes luxury vinyl plank flooring in the main living areas, carpeted bedrooms, and neutral finishes throughout. The kitchen features stainless steel appliances, ample cabinetry, and generous counter space, opening to a dedicated dining area and spacious living room—ideal for everyday living and entertaining. The primary suite includes a walk-in closet and private en-suite bath, while two guest bedrooms are positioned near a full bath with tub/shower. Additional features include a solar system, owned water softener, and washer and dryer located in the garage. The backyard offers garden space, a fig tree, and open farmland views, providing a peaceful setting. Conveniently located near shopping, dining, schools, and recreation, with easy access to Downtown Ocala and The Villages, this move-in-ready home offers modern comfort in a quiet setting.
Listing Information
Property Type: Residential, Single Family Residence
Status: Active
Bedrooms: 3
Bathrooms: 2
Lot Size: 0.23 Acres
Square Feet: 1,332 sq ft
Year Built: 2022
Garage: Yes
Stories: 1 Story
Construction: Concrete
Subdivision: Silver Spgs Shores Un 12
Foundation: Slab
County: Marion
School Information
Elementary: Emerald Shores Elem. School
Middle: Lake Weir Middle School
High: Lake Weir High School
Room Information
Main Floor
Primary Bedroom: 14.8x14.1
Living Room: 15.5x18.2
Kitchen: 13.7x9.7
Bathrooms
Full Baths: 2
Additonal Room Information
Laundry: In Garage
Interior Features
Appliances: Dishwasher, Microwave, Range, Refrigerator
Flooring: Carpet,Luxury Vinyl
Additional Interior Features: Ceiling Fan(s)
Utilities
Water: Well
Sewer: Septic Tank
Other Utilities: Electricity Connected
Cooling: Ceiling Fan(s), Central Air
Heating: Central
Exterior / Lot Features
Attached Garage: Attached Garage
Garage Spaces: 2
Roof: Shingle
Lot Dimensions: 80x125
Additional Exterior/Lot Features: Garden
Driving Directions
From 35 take SE 92nd Loop to SE 110th St. Make a Left onto Oak Rd, a left on Olive Rd and a left on Oak Circle. Home will be on the left.
Financial Considerations
Terms: Cash,Conventional,FHA,VA Loan
Tax/Property ID: 9012-0179-30
Tax Amount: 3724.28
Tax Year: 2024
A broker reciprocity listing courtesy: EXP REALTY LLC
Based on information provided by Stellar MLS as distributed by the MLS GRID. Information from the Internet Data Exchange is provided exclusively for consumers’ personal, non-commercial use, and such information may not be used for any purpose other than to identify prospective properties consumers may be interested in purchasing. This data is deemed reliable but is not guaranteed to be accurate by Edina Realty, Inc., or by the MLS. Edina Realty, Inc., is not a multiple listing service (MLS), nor does it offer MLS access.
Copyright 2026 Stellar MLS as distributed by the MLS GRID. All Rights Reserved.
Payment Calculator
Interest rate and annual percentage rate (APR) are based on current market conditions, are for informational purposes only, are subject to change without notice and may be subject to pricing add-ons related to property type, loan amount, loan-to-value, credit score and other variables. Estimated closing costs used in the APR calculation are assumed to be paid by the borrower at closing. If the closing costs are financed, the loan, APR and payment amounts will be higher. If the down payment is less than 20%, mortgage insurance may be required and could increase the monthly payment and APR. Contact us for details. Additional loan programs may be available. Accuracy is not guaranteed, and all products may not be available in all borrower's geographical areas and are based on their individual situation. This is not a credit decision or a commitment to lend.
Sales History & Tax Summary for 167 Oak Circle
Sales History
| Date | Price | |
|---|---|---|
| Currently not available. | ||
Tax Summary
| Tax Year | Estimated Market Value | Total Tax |
|---|---|---|
| Currently not available. | ||
Data powered by ATTOM Data Solutions. Copyright© 2026. Information deemed reliable but not guaranteed.
Schools
Schools nearby 167 Oak Circle
| Schools in attendance boundaries | Grades | Distance | Rating |
|---|---|---|---|
| Loading... | |||
| Schools nearby | Grades | Distance | Rating |
|---|---|---|---|
| Loading... | |||
Data powered by ATTOM Data Solutions. Copyright© 2026. Information deemed reliable but not guaranteed.
The schools shown represent both the assigned schools and schools by distance based on local school and district attendance boundaries. Attendance boundaries change based on various factors and proximity does not guarantee enrollment eligibility. Please consult your real estate agent and/or the school district to confirm the schools this property is zoned to attend. Information is deemed reliable but not guaranteed.
SchoolDigger ® Rating
The SchoolDigger rating system is a 1-5 scale with 5 as the highest rating. SchoolDigger ranks schools based on test scores supplied by each state's Department of Education. They calculate an average standard score by normalizing and averaging each school's test scores across all tests and grades.
Coming soon properties will soon be on the market, but are not yet available for showings.