1670 Castle Drive North Mankato, MN 56003
For Sale MLS# 7038134
4 beds 2 baths 1,944 sq ft Single Family
Details for 1670 Castle Drive
MLS# 7038134
Description for 1670 Castle Drive, North Mankato, MN, 56003
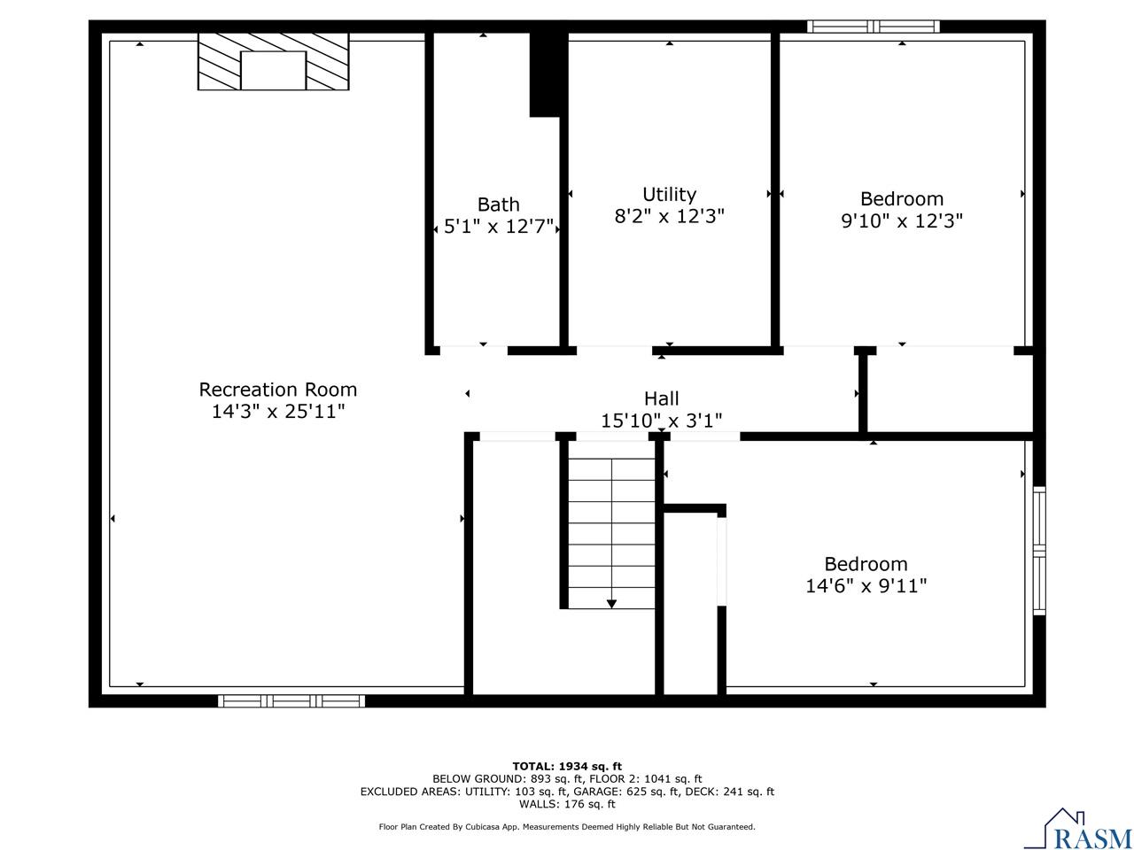
Move in ready four bedroom, 2 bathroom home with a triple garage tucked into a quiet Upper North Mankato Neighborhood. You will notice the natural light and fresh flooring throughout most of the upper level, natural oak trim and cabinetry. The dinette grants access to a nice deck with stairs leading to the wrap around patio. The living room is especially cozy with the handsome fireplace. There are two generous sized bedrooms and a full bath on the upper level. In the finished lower level you will appreciate a large family room with another fireplace and two more beds, and bathroom. Clean, turn key, move in ready. Enjoy making this lovey house your home.
Listing Information
Property Type: Residential, Single Family, SF Single Family
Status: Active
Bedrooms: 4
Bathrooms: 2
Lot Size: 0.25 Acres
Square Feet: 1,944 sq ft
Year Built: 1995
Foundation: 1,080 sq ft
Garage: Yes
Stories: Bi-Level Split
Construction: Frame/Wood
County: Nicollet
Days On Market: 148
Construction Status: Previously Owned
School Information
District: Mankato #77
Room Information
Upper Floor
Living Room: 14'11x15'10
Dining Room: 9'3x13
Kitchen: 9'2x12'8
Primary Bedroom: 13'4x11'6
Bedroom: 15'4x10'11
Lower Floor
Family Room: 14'3x25'11
Bedroom: 9'10x12'3
Bedroom: 14'6x9'11
Bathrooms
Full Baths: 1
3/4 Baths: 1
Additonal Room Information
Dining: Breakfast Bar,Informal Dining Room
Bath Description: 3/4 Basement,Main Floor Full Bath
Interior Features
Square Footage above: 1,080 sq ft
Square Footage below: 864 sq ft
Appliances: Washer, Dishwasher, Dryer, Microwave, Range/Stove, Refrigerator
Basement: Concrete Block, Full
Fireplaces: Two Fireplaces
Additional Interior Features: Natural Woodwork, Walk-In Closet, Washer/Dryer Hookups, CO Detectors (L), Smoke Alarms (L), Mechanicals - Water Softener-Owned
Utilities
Water: City
Sewer: City
Cooling: Central
Heating: Natural Gas, Forced Air
Exterior / Lot Features
Attached Garage: Attached Garage
Garage Spaces: 3
Parking Description: Attached, Garage Dimensions - 30x21, Garage Sq Ft - 630
Exterior: Metal
Roof: Asphalt Shingles
Lot Dimensions: 11054
Additional Exterior/Lot Features: Deck, Driveway - Concrete, Tree Coverage - Medium, Road Frontage - City, Paved
Driving Directions
Lor Ray Drive to Howard to Haughton to Castle Dr
Financial Considerations
Terms: Cash,Conventional,DVA,FHA
Tax/Property ID: 18.890.0080
Tax Amount: 3688
Tax Year: 2025
A broker reciprocity listing courtesy: Re/Max Advantage Plus Mankato
The data relating to real estate for sale on this web site comes in part from the Broker Reciprocity℠ Program of the REALTOR® Association of So MN Multiple Listing Service. Real estate listings held by brokerage firms other than Edina Realty, Inc. are marked with the Broker Reciprocity℠ logo or the Broker Reciprocity℠ thumbnail and detailed information about them includes the name of the listing brokers. Edina Realty, Inc. is not a Multiple Listing Service (MLS), nor does it offer MLS access. This website is a service of Edina Realty, Inc., a broker Participant of the REALTOR® Association of So MN Multiple Listing Service. IDX information is provided exclusively for consumers personal, non-commercial use and may not be used for any purpose other than to identify prospective properties consumers may be interested in purchasing. Open House information is subject to change without notice. Information deemed reliable but not guaranteed.
Copyright 2025 REALTOR® Association of So MN Multiple Listing Service. All Rights Reserved.
Payment Calculator
Interest rate and annual percentage rate (APR) are based on current market conditions, are for informational purposes only, are subject to change without notice and may be subject to pricing add-ons related to property type, loan amount, loan-to-value, credit score and other variables. Estimated closing costs used in the APR calculation are assumed to be paid by the borrower at closing. If the closing costs are financed, the loan, APR and payment amounts will be higher. If the down payment is less than 20%, mortgage insurance may be required and could increase the monthly payment and APR. Contact us for details. Additional loan programs may be available. Accuracy is not guaranteed, and all products may not be available in all borrower's geographical areas and are based on their individual situation. This is not a credit decision or a commitment to lend.
Sales History & Tax Summary for 1670 Castle Drive
Sales History
| Date | Price | Change |
|---|---|---|
| Currently not available. | ||
Tax Summary
| Tax Year | Estimated Market Value | Total Tax |
|---|---|---|
| Currently not available. | ||
Data powered by ATTOM Data Solutions. Copyright© 2025. Information deemed reliable but not guaranteed.
Schools
Schools nearby 1670 Castle Drive
| Schools in attendance boundaries | Grades | Distance | Rating |
|---|---|---|---|
| Loading... | |||
| Schools nearby | Grades | Distance | Rating |
|---|---|---|---|
| Loading... | |||
Data powered by ATTOM Data Solutions. Copyright© 2025. Information deemed reliable but not guaranteed.
The schools shown represent both the assigned schools and schools by distance based on local school and district attendance boundaries. Attendance boundaries change based on various factors and proximity does not guarantee enrollment eligibility. Please consult your real estate agent and/or the school district to confirm the schools this property is zoned to attend. Information is deemed reliable but not guaranteed.
SchoolDigger ® Rating
The SchoolDigger rating system is a 1-5 scale with 5 as the highest rating. SchoolDigger ranks schools based on test scores supplied by each state's Department of Education. They calculate an average standard score by normalizing and averaging each school's test scores across all tests and grades.
Coming soon properties will soon be on the market, but are not yet available for showings.