1677 Victoria Gardens Drive Deland, FL 32724
For Sale MLS# O6331891
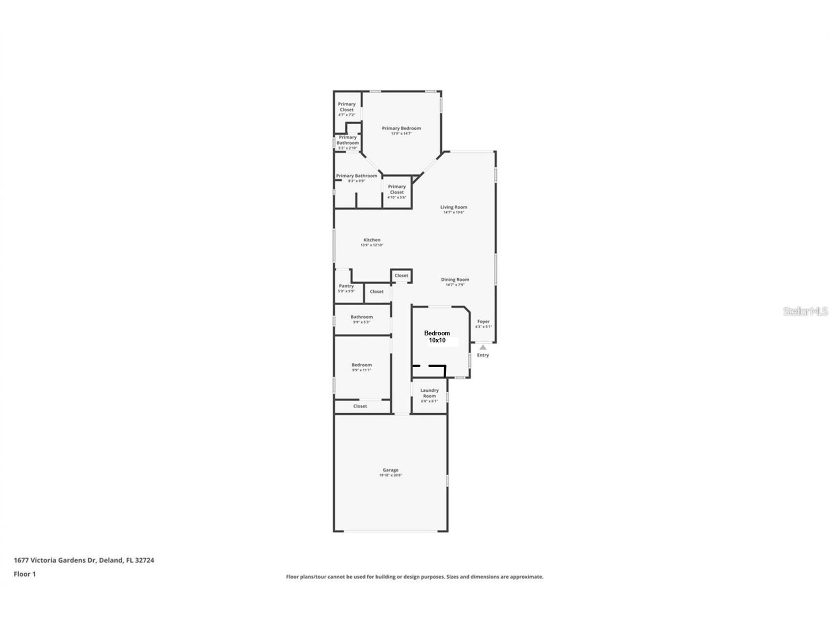
3 beds 2 baths 1,512 sq ft Single Family
Details for 1677 Victoria Gardens Drive
MLS# O6331891
Description for 1677 Victoria Gardens Drive, Deland, FL, 32724
One or more photo(s) has been virtually staged. Seller will contribute to buyers closing cost. Welcome to your dream retirement haven in the highly sought-after Victoria Gardens DeLand 55+ gated community! From the moment you walk up to this home, you will love the covered front porch, beautiful landscape and spacious corner lot. The kitchen is a chef’s dream, featuring 36” maple cabinets, granite counters, large walk-in pantry, and stainless-steel appliances. The home was recently painted and has new LVP flooring in the bedrooms, new window blinds and light fixtures. The primary suite has a tray ceiling and 2 walk-in closets, walk-in shower, separate vanities and a separate toilet room. 20x20 tile throughout the rest of the home, No Carpet! 10ft ceilings throughout the home and a large tray ceiling in the living room area. The exterior has double-pane windows and a covered lanai with pavers. The community is within 1 mile of I-4, which offers great access to the east coast beaches and Orlando. The association fee includes lawn care, cable TV, high speed internet, reclaimed water for yard irrigation and access to all community amenities. Community Amenities: At Victoria Gardens, active, carefree living is at your fingertips. The resort-style clubhouse serves as the heart of the community, offering fitness classes, social gatherings, and a variety of clubs to match any interest. Whether you love to play pickleball, tennis, or just enjoy a relaxing swim in the resort-style pool, there’s something for everyone. Scenic walking trails give a perfect setting for morning walks or evening strolls. Looking to explore new hobbies? The clubhouse provides a wide variety of activities, from arts and crafts to card games and everything in between. With so many options to stay active and engaged, you’ll always find something that fits your lifestyle. Convenient Location: This incredible community is ideally located in the heart of DeLand, offering easy access to shopping, dining, and medical facilities, as well as nearby cultural attractions and recreational opportunities. Whether you want to enjoy the quiet charm of your home or take part in local adventures, everything you need is just a short drive away. The close-knit, welcoming atmosphere makes it easy to feel at home.
Listing Information
Property Type: Residential, Single Family Residence
Status: Active
Bedrooms: 3
Bathrooms: 2
Lot Size: 0.13 Acres
Square Feet: 1,512 sq ft
Year Built: 2015
Garage: Yes
Stories: 1 Story
Construction: Block
Subdivision: Victoria Park Increment 5 Northe
Foundation: Slab
County: Volusia
Room Information
Main Floor
Bedroom 3: 12x10
Bedroom 2: 11x10
Primary Bedroom: 15x14
Kitchen: 13x12
Great Room: 25x15
Bathrooms
Full Baths: 2
Additonal Room Information
Laundry: Inside, Laundry Room
Interior Features
Appliances: Washer, Microwave, Range, Refrigerator, Dishwasher, Disposal, Dryer
Flooring: Ceramic Tile,Laminate
Additional Interior Features: Ceiling Fan(s), Attic, Built-in Features, Split Bedrooms, High Ceilings, Walk-In Closet(s), Solid Surface Counters, Wood Cabinets, Open Floorplan, Kitchen/Family Room Combo
Utilities
Sewer: Public Sewer
Other Utilities: Electricity Connected,Water Not Available
Cooling: Ceiling Fan(s), Central Air
Heating: Central
Exterior / Lot Features
Attached Garage: Attached Garage
Garage Spaces: 2
Roof: Shingle
Pool: Community
Additional Exterior/Lot Features: Lighting, Covered, Front Porch, Rear Porch, Landscaped
Community Features
Community Features: Pool, Tennis Court(s), Sidewalks, Clubhouse, Golf, Gated, Restaurant, Fitness, Golf Carts OK
Security Features: Fire Hydrant(s), Gated Community
HOA Dues Include: Maintenance Grounds, Association Management, Internet, Cable TV, Pool(s), Reserve Fund
Homeowners Association: Yes
HOA Dues: $1,566 / Quarterly
Driving Directions
GPS directions
Financial Considerations
Terms: Cash,Conventional,FHA,VA Loan
Tax/Property ID: 7025-17-00-0550
Tax Amount: 3146
Tax Year: 2024
A broker reciprocity listing courtesy: SAND DOLLAR REALTY GROUP INC
Based on information provided by Stellar MLS as distributed by the MLS GRID. Information from the Internet Data Exchange is provided exclusively for consumers’ personal, non-commercial use, and such information may not be used for any purpose other than to identify prospective properties consumers may be interested in purchasing. This data is deemed reliable but is not guaranteed to be accurate by Edina Realty, Inc., or by the MLS. Edina Realty, Inc., is not a multiple listing service (MLS), nor does it offer MLS access.
Copyright 2026 Stellar MLS as distributed by the MLS GRID. All Rights Reserved.
Payment Calculator
Interest rate and annual percentage rate (APR) are based on current market conditions, are for informational purposes only, are subject to change without notice and may be subject to pricing add-ons related to property type, loan amount, loan-to-value, credit score and other variables. Estimated closing costs used in the APR calculation are assumed to be paid by the borrower at closing. If the closing costs are financed, the loan, APR and payment amounts will be higher. If the down payment is less than 20%, mortgage insurance may be required and could increase the monthly payment and APR. Contact us for details. Additional loan programs may be available. Accuracy is not guaranteed, and all products may not be available in all borrower's geographical areas and are based on their individual situation. This is not a credit decision or a commitment to lend.
Sales History & Tax Summary for 1677 Victoria Gardens Drive
Sales History
| Date | Price | |
|---|---|---|
| Currently not available. | ||
Tax Summary
| Tax Year | Estimated Market Value | Total Tax |
|---|---|---|
| Currently not available. | ||
Data powered by ATTOM Data Solutions. Copyright© 2026. Information deemed reliable but not guaranteed.
Schools
Schools nearby 1677 Victoria Gardens Drive
| Schools in attendance boundaries | Grades | Distance | Rating |
|---|---|---|---|
| Loading... | |||
| Schools nearby | Grades | Distance | Rating |
|---|---|---|---|
| Loading... | |||
Data powered by ATTOM Data Solutions. Copyright© 2026. Information deemed reliable but not guaranteed.
The schools shown represent both the assigned schools and schools by distance based on local school and district attendance boundaries. Attendance boundaries change based on various factors and proximity does not guarantee enrollment eligibility. Please consult your real estate agent and/or the school district to confirm the schools this property is zoned to attend. Information is deemed reliable but not guaranteed.
SchoolDigger ® Rating
The SchoolDigger rating system is a 1-5 scale with 5 as the highest rating. SchoolDigger ranks schools based on test scores supplied by each state's Department of Education. They calculate an average standard score by normalizing and averaging each school's test scores across all tests and grades.
Coming soon properties will soon be on the market, but are not yet available for showings.