$1,090,000
1695 Mcmurtrie Loop The Villages, FL 34762
For Sale MLS# A4690747
3 beds 2 baths 2,459 sq ft Single Family
Details for 1695 Mcmurtrie Loop
MLS# A4690747
Description for 1695 Mcmurtrie Loop, The Villages, FL, 34762
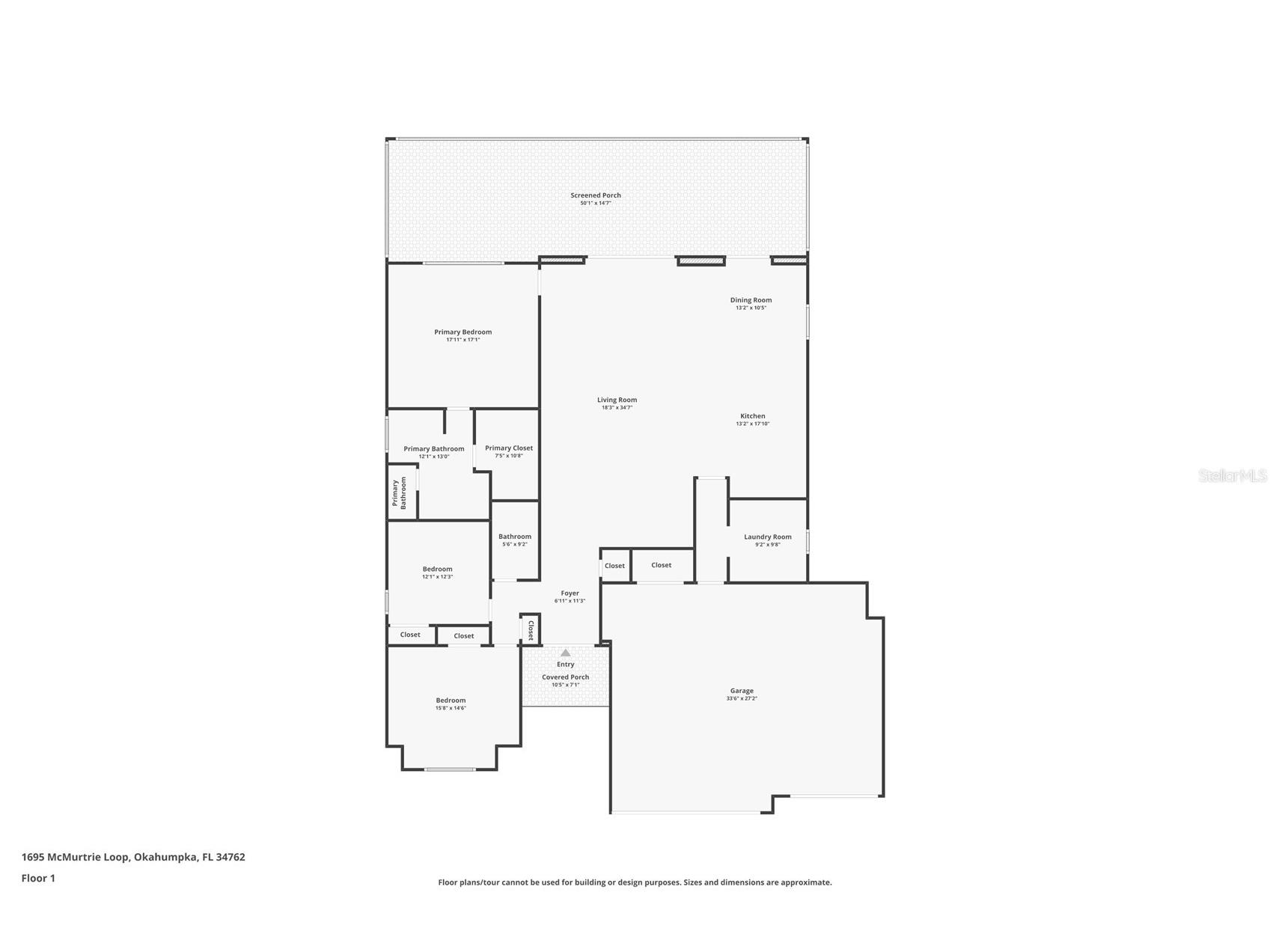
Expanded Premier Egret with stunning water views, ideally located between Eastport and Middleton. This 2,459 sq ft home sits on a premium lot overlooking a long pond, offering privacy and a peaceful setting away from road and recreation noise. Open floor plan with 10 foot ceilings and ceramic tile throughout (no carpet). Enjoy the oversized 52’ x 15’ east-facing lanai—perfect for relaxing or entertaining. Stretched 3-car garage (~900 sq ft) with epoxy floors provides space for cars, golf carts and storage. Paver driveway, professional landscaping, custom finished closets, attic stairs. Optional hot tub and safe. Available furnished or unfurnished. Closing after July 18. This water front home checks all the boxes!
Listing Information
Property Type: Residential, Single Family Residence
Status: Active
Bedrooms: 3
Bathrooms: 2
Lot Size: 0.18 Acres
Square Feet: 2,459 sq ft
Year Built: 2024
Garage: Yes
Stories: 1 Story
Construction: Block,Concrete,Stucco
Subdivision: Villages/Southern Oaks Un 215
Foundation: Slab
County: Sumter
Room Information
Main Floor
Porch: 15x52
Primary Bedroom: 17x18
Kitchen: 15x14
Living Room: 22x18
Bathrooms
Full Baths: 2
Additonal Room Information
Laundry: Inside, Laundry Room, Gas Dryer Hookup
Interior Features
Appliances: Ice Maker, Tankless Water Heater, Range, Refrigerator, Washer, Dishwasher, Disposal, Dryer, Microwave
Flooring: Ceramic Tile
Additional Interior Features: Ceiling Fan(s), High Ceilings, Attic, Living/Dining Room, Open Floorplan, Main Level Primary, Solid Surface Counters
Utilities
Water: Public
Sewer: Public Sewer
Other Utilities: Cable Connected,Electricity Available,Electricity Connected,Fiber Optic Available,Natural Gas Available,Natural Gas Connected,Sewer Available,Sewer Connected,Underground Utilities,Water Available,Water Connected
Cooling: Ceiling Fan(s), Central Air
Heating: Gas
Exterior / Lot Features
Attached Garage: Attached Garage
Garage Spaces: 3
Roof: Shingle
Pool: Community
Lot View: Pond,Water
Additional Exterior/Lot Features: Rain Gutters, Sprinkler/Irrigation, Lighting
Waterfront Details
Water Front Features: Pond
Community Features
Community Features: Pool, Tennis Court(s), Clubhouse, Golf, Street Lights, Dog Park, Gated, Fitness, Golf Carts OK, Restaurant, Community Mailbox
Security Features: Gated Community
HOA Dues Include: Recreation Facilities, Pool(s)
Driving Directions
Turn north off of Barr onto McMurtrie Loop. 19th house on the right.
Financial Considerations
Terms: Cash,Conventional,FHA,VA Loan
Tax/Property ID: K15U032
Tax Amount: 4928
Tax Year: 2025
A broker reciprocity listing courtesy: SAVVY AVENUE, LLC
Based on information provided by Stellar MLS as distributed by the MLS GRID. Information from the Internet Data Exchange is provided exclusively for consumers’ personal, non-commercial use, and such information may not be used for any purpose other than to identify prospective properties consumers may be interested in purchasing. This data is deemed reliable but is not guaranteed to be accurate by Edina Realty, Inc., or by the MLS. Edina Realty, Inc., is not a multiple listing service (MLS), nor does it offer MLS access.
Copyright 2026 Stellar MLS as distributed by the MLS GRID. All Rights Reserved.
Payment Calculator
Interest rate and annual percentage rate (APR) are based on current market conditions, are for informational purposes only, are subject to change without notice and may be subject to pricing add-ons related to property type, loan amount, loan-to-value, credit score and other variables. Estimated closing costs used in the APR calculation are assumed to be paid by the borrower at closing. If the closing costs are financed, the loan, APR and payment amounts will be higher. If the down payment is less than 20%, mortgage insurance may be required and could increase the monthly payment and APR. Contact us for details. Additional loan programs may be available. Accuracy is not guaranteed, and all products may not be available in all borrower's geographical areas and are based on their individual situation. This is not a credit decision or a commitment to lend.
Sales History & Tax Summary for 1695 Mcmurtrie Loop
Sales History
| Date | Price | |
|---|---|---|
| Currently not available. | ||
Tax Summary
| Tax Year | Estimated Market Value | Total Tax |
|---|---|---|
| Currently not available. | ||
Data powered by ATTOM Data Solutions. Copyright© 2026. Information deemed reliable but not guaranteed.
Schools
Schools nearby 1695 Mcmurtrie Loop
| Schools in attendance boundaries | Grades | Distance | Rating |
|---|---|---|---|
| Loading... | |||
| Schools nearby | Grades | Distance | Rating |
|---|---|---|---|
| Loading... | |||
Data powered by ATTOM Data Solutions. Copyright© 2026. Information deemed reliable but not guaranteed.
The schools shown represent both the assigned schools and schools by distance based on local school and district attendance boundaries. Attendance boundaries change based on various factors and proximity does not guarantee enrollment eligibility. Please consult your real estate agent and/or the school district to confirm the schools this property is zoned to attend. Information is deemed reliable but not guaranteed.
SchoolDigger ® Rating
The SchoolDigger rating system is a 1-5 scale with 5 as the highest rating. SchoolDigger ranks schools based on test scores supplied by each state's Department of Education. They calculate an average standard score by normalizing and averaging each school's test scores across all tests and grades.
Coming soon properties will soon be on the market, but are not yet available for showings.