1698 Taylor Ridge Loop Kissimmee, FL 34744
For Sale MLS# O6366703
5 beds 5 baths 4,964 sq ft Single Family
Details for 1698 Taylor Ridge Loop
MLS# O6366703
Description for 1698 Taylor Ridge Loop, Kissimmee, FL, 34744
Welcome! Enjoy no rear neighbors forever, and a low-key HOA, with this well-appointed home, which offers five spacious bedrooms, four and a half bathrooms, and exceptional flexibility for family living, hosting guests, or creating dedicated work and relaxation spaces. The open floor plan boasts 4,964 square feet, with high ceilings, a gourmet kitchen with premium finishes, and multiple living areas designed for comfort and entertaining. A dedicated theater room can easily serve as a sixth bedroom, while the oversized 3-car garage provides ample storage. Each bedroom offers versatile options for family, home offices, or guest quarters, and generous square footage creates a natural balance between shared spaces and private retreats. Nestled on a 0.54-acre lot in a small, private gated community, this property combines privacy and convenience—located near shopping, lakefront parks, quality schools, SunRail, and minutes from charming downtown Kissimmee. Schedule your private tour today!
Listing Information
Property Type: Residential, Single Family Residence
Status: Active
Bedrooms: 5
Bathrooms: 5
Lot Size: 0.54 Acres
Square Feet: 4,964 sq ft
Year Built: 2005
Garage: Yes
Stories: 2 Story
Construction: HardiPlank Type,Wood Frame
Subdivision: Taylor Ridge
Foundation: Slab
County: Osceola
School Information
Elementary: Partin Settlement Elem
Middle: Neptune Middle (6-8)
High: Osceola High School
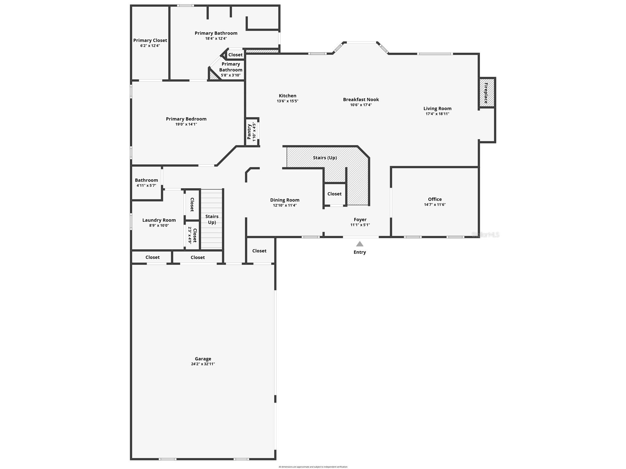
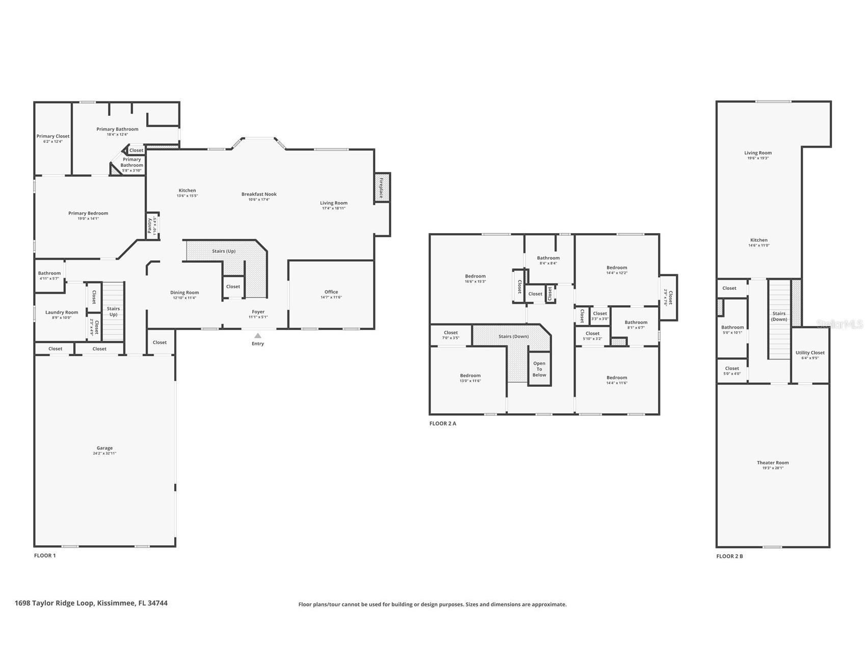
Room Information
Main Floor
Living Room: 20x15
Dining Room: 12x14
Kitchen: 14x14
Dinette: 13x11
Den: 12x15
Primary Bedroom: 14x19
Upper Floor
Bonus Room: 20x27
Bedroom 4: 13x15
Bedroom 5: 14x16
Media Room: 15x31
Bedroom 2: 12x14
Bedroom 3: 12x15
Bathrooms
Full Baths: 4
1/2 Baths: 1
Additonal Room Information
Laundry: Washer Hookup, Inside, Laundry Room, Electric Dryer Hookup
Interior Features
Flooring: Carpet,Tile,Wood
Fireplaces: Family Room, Living Room, Wood Burning
Additional Interior Features: Ceiling Fan(s), Walk-In Closet(s), Main Level Primary, Crown Molding, Stone Counters
Utilities
Water: Public
Sewer: Public Sewer
Other Utilities: Cable Available,Electricity Connected,High Speed Internet Available,Sewer Available,Water Connected
Cooling: Central Air, Ceiling Fan(s)
Heating: Electric, Central
Exterior / Lot Features
Attached Garage: Attached Garage
Garage Spaces: 3
Parking Description: Open, driveway, Garage, Garage Door Opener, Garage Faces Side
Roof: Shingle
Lot View: Canal,Trees/Woods,Water
Fencing: fenced, Other
Additional Exterior/Lot Features: French Patio Doors, Rain Gutters, Rear Porch, Front Porch, Covered, Corner Lot, Landscaped
Waterfront Details
Water Front Features: Canal Front
Community Features
Community Features: Sidewalks, Gated
Security Features: Gated Community
Association Amenities: Gated
Homeowners Association: Yes
HOA Dues: $150 / Monthly
Driving Directions
From Irlo Bronson Memorial Highway (US-192), turn onto Florida State Road 535 (Vineland Road) heading north. Turn left (west) onto Taylor Ridge Loop. The house will be on this loop in the Taylor Ridge subdivision.
Financial Considerations
Terms: Cash,Conventional
Tax/Property ID: 26-25-29-5211-0001-0010
Tax Amount: 5491.96
Tax Year: 2025
A broker reciprocity listing courtesy: BERKSHIRE HATHAWAY HOMESERVICES RESULTS REALTY
Based on information provided by Stellar MLS as distributed by the MLS GRID. Information from the Internet Data Exchange is provided exclusively for consumers’ personal, non-commercial use, and such information may not be used for any purpose other than to identify prospective properties consumers may be interested in purchasing. This data is deemed reliable but is not guaranteed to be accurate by Edina Realty, Inc., or by the MLS. Edina Realty, Inc., is not a multiple listing service (MLS), nor does it offer MLS access.
Copyright 2026 Stellar MLS as distributed by the MLS GRID. All Rights Reserved.
Payment Calculator
Interest rate and annual percentage rate (APR) are based on current market conditions, are for informational purposes only, are subject to change without notice and may be subject to pricing add-ons related to property type, loan amount, loan-to-value, credit score and other variables. Estimated closing costs used in the APR calculation are assumed to be paid by the borrower at closing. If the closing costs are financed, the loan, APR and payment amounts will be higher. If the down payment is less than 20%, mortgage insurance may be required and could increase the monthly payment and APR. Contact us for details. Additional loan programs may be available. Accuracy is not guaranteed, and all products may not be available in all borrower's geographical areas and are based on their individual situation. This is not a credit decision or a commitment to lend.
Sales History & Tax Summary for 1698 Taylor Ridge Loop
Sales History
| Date | Price | |
|---|---|---|
| Currently not available. | ||
Tax Summary
| Tax Year | Estimated Market Value | Total Tax |
|---|---|---|
| Currently not available. | ||
Data powered by ATTOM Data Solutions. Copyright© 2026. Information deemed reliable but not guaranteed.
Schools
Schools nearby 1698 Taylor Ridge Loop
| Schools in attendance boundaries | Grades | Distance | Rating |
|---|---|---|---|
| Loading... | |||
| Schools nearby | Grades | Distance | Rating |
|---|---|---|---|
| Loading... | |||
Data powered by ATTOM Data Solutions. Copyright© 2026. Information deemed reliable but not guaranteed.
The schools shown represent both the assigned schools and schools by distance based on local school and district attendance boundaries. Attendance boundaries change based on various factors and proximity does not guarantee enrollment eligibility. Please consult your real estate agent and/or the school district to confirm the schools this property is zoned to attend. Information is deemed reliable but not guaranteed.
SchoolDigger ® Rating
The SchoolDigger rating system is a 1-5 scale with 5 as the highest rating. SchoolDigger ranks schools based on test scores supplied by each state's Department of Education. They calculate an average standard score by normalizing and averaging each school's test scores across all tests and grades.
Coming soon properties will soon be on the market, but are not yet available for showings.