1699 NW 128th Terrace Newberry, FL 32669
Pending MLS# OM716555
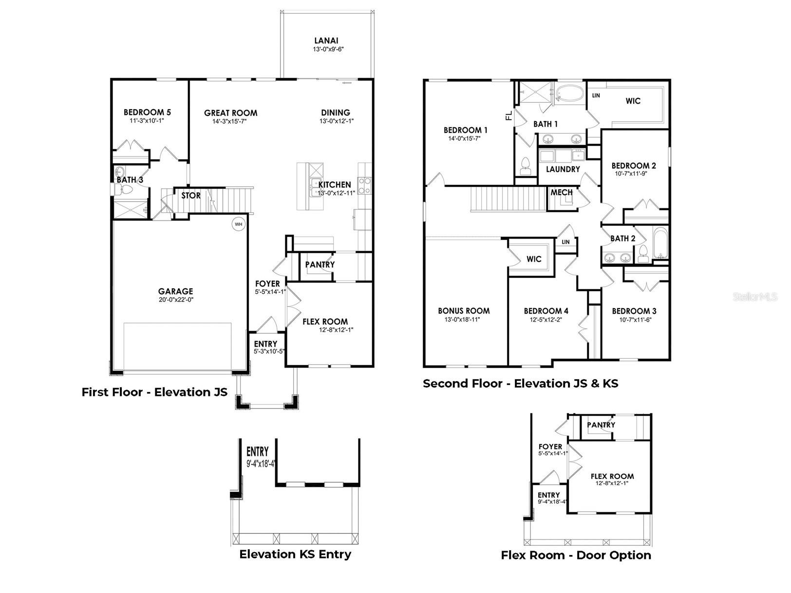
5 beds 3 baths 2,836 sq ft Single Family
Details for 1699 NW 128th Terrace
MLS# OM716555
Description for 1699 NW 128th Terrace, Newberry, FL, 32669
One or more photo(s) has been virtually staged. Under Construction. This spacious two-story floorplan includes a large open concept kitchen overlooking the great room and dining area that leads to a covered lanai. The first floor also provides a flex room upon entering the home, as well as a spacious guest bedroom and full bathroom. Upstairs there is a large bonus room, great for work or for play, as well as the Bedroom 1 with Bathroom 1, three additional bedrooms, a third full bathroom, and a well-appointed laundry room. This home comes with installed stainless-steel dishwasher, electric range, and microwave. Pictures, photographs, colors, features, and sizes are for illustration purposes only and will vary from the homes as built. Home and community information including pricing, included features, terms, availability, and amenities are subject to change and prior sale at any time without notice or obligation. CRC057592.
Listing Information
Property Type: Residential, Single Family Residence
Status: Pending
Bedrooms: 5
Bathrooms: 3
Lot Size: 0.13 Acres
Square Feet: 2,836 sq ft
Year Built: 2026
Garage: Yes
Stories: 2 Story
Construction: Wood Frame
Construction Display: New Construction
Subdivision: Buchanan Trails
Builder: DR Horton INC
Foundation: Slab
County: Alachua
Construction Status: Under Construction
School Information
Elementary: Meadowbrook Elementary School-Al
Middle: Fort Clarke Middle School-Al
High: F. W. Buchholz High School-Al
Room Information
Main Floor
Great Room: 15x14
Kitchen: 12x13
Porch: 9x13
Upper Floor
Primary Bedroom: 15x14
Bonus Room: 18x13
Bathrooms
Full Baths: 3
Additonal Room Information
Laundry: Laundry Room
Interior Features
Appliances: Microwave, Range, Dishwasher
Flooring: Carpet,Engineered Hardwood
Additional Interior Features: Open Floorplan
Utilities
Water: Public
Sewer: Public Sewer
Other Utilities: Other
Cooling: Central Air
Heating: Electric, Central
Exterior / Lot Features
Attached Garage: Attached Garage
Garage Spaces: 2
Roof: Shingle
Additional Exterior/Lot Features: Sprinkler/Irrigation
Community Features
Homeowners Association: Yes
HOA Dues: $137 / Monthly
Driving Directions
From I-75, take exit 387 for FL-26 W toward Newberry. Continue on FL-26 W/W Newberry Rd. for approx. 4.3 miles until you reach NW 136th St. Turn right on NW 136th St. and continue north through both traffic circles. After the second traffic circle, travel approx. 1 mile and Buchanan Trails Sales Information Center will be on your right.
Financial Considerations
Tax/Property ID: 04308-010-067
Tax Year: 2025
A broker reciprocity listing courtesy: DR HORTON REALTY OF WEST CENTRAL FLORIDA
Based on information provided by Stellar MLS as distributed by the MLS GRID. Information from the Internet Data Exchange is provided exclusively for consumers’ personal, non-commercial use, and such information may not be used for any purpose other than to identify prospective properties consumers may be interested in purchasing. This data is deemed reliable but is not guaranteed to be accurate by Edina Realty, Inc., or by the MLS. Edina Realty, Inc., is not a multiple listing service (MLS), nor does it offer MLS access.
Copyright 2026 Stellar MLS as distributed by the MLS GRID. All Rights Reserved.
Sales History & Tax Summary for 1699 NW 128th Terrace
Sales History
| Date | Price | |
|---|---|---|
| Currently not available. | ||
Tax Summary
| Tax Year | Estimated Market Value | Total Tax |
|---|---|---|
| Currently not available. | ||
Data powered by ATTOM Data Solutions. Copyright© 2026. Information deemed reliable but not guaranteed.
Schools
Schools nearby 1699 NW 128th Terrace
| Schools in attendance boundaries | Grades | Distance | Rating |
|---|---|---|---|
| Loading... | |||
| Schools nearby | Grades | Distance | Rating |
|---|---|---|---|
| Loading... | |||
Data powered by ATTOM Data Solutions. Copyright© 2026. Information deemed reliable but not guaranteed.
The schools shown represent both the assigned schools and schools by distance based on local school and district attendance boundaries. Attendance boundaries change based on various factors and proximity does not guarantee enrollment eligibility. Please consult your real estate agent and/or the school district to confirm the schools this property is zoned to attend. Information is deemed reliable but not guaranteed.
SchoolDigger ® Rating
The SchoolDigger rating system is a 1-5 scale with 5 as the highest rating. SchoolDigger ranks schools based on test scores supplied by each state's Department of Education. They calculate an average standard score by normalizing and averaging each school's test scores across all tests and grades.
Coming soon properties will soon be on the market, but are not yet available for showings.