1703 Roberts Landing Road Windermere, FL 34786
For Sale MLS# O6346120
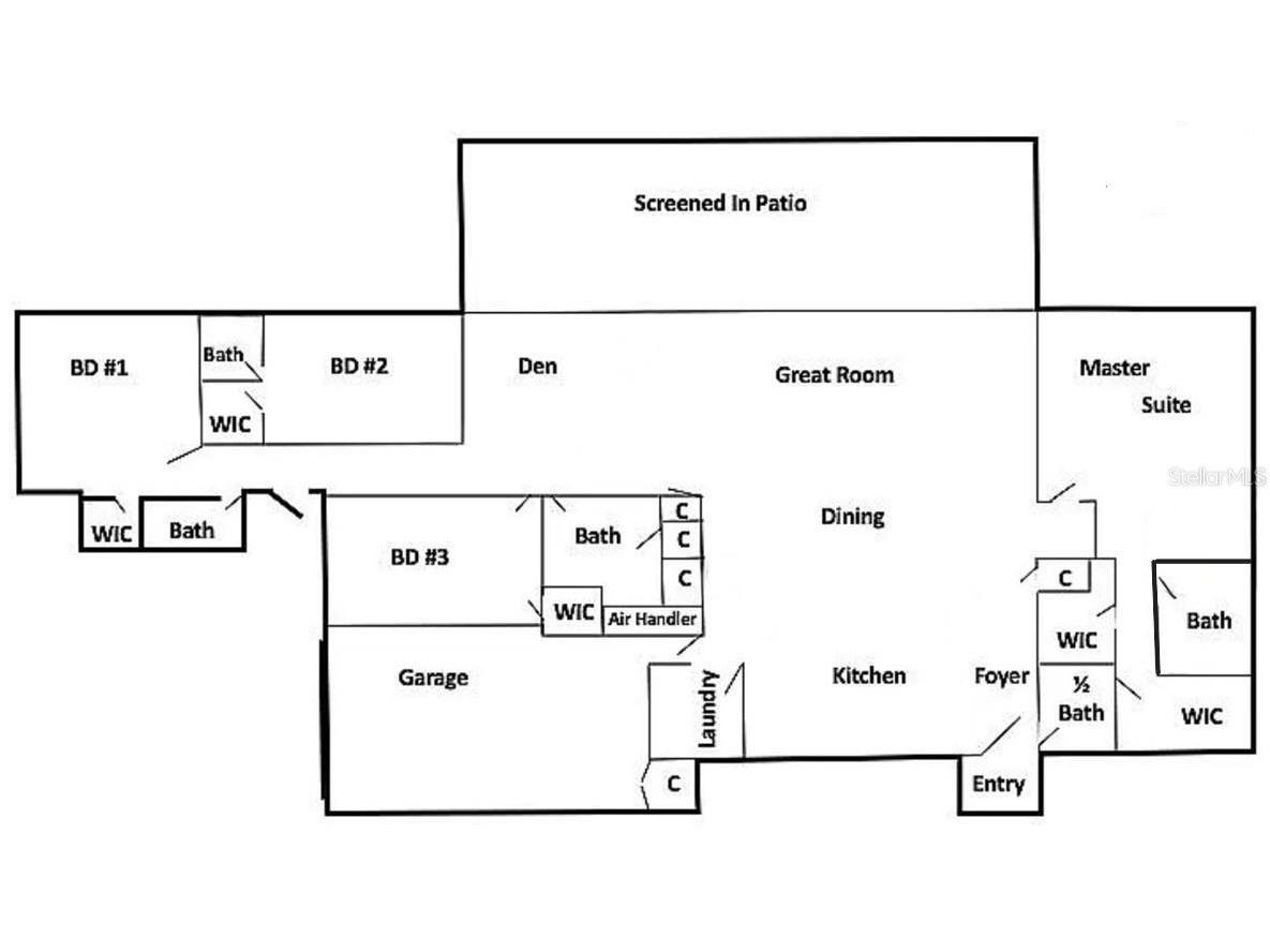
4 beds 5 baths 3,288 sq ft Single Family
Details for 1703 Roberts Landing Road
MLS# O6346120
Description for 1703 Roberts Landing Road, Windermere, FL, 34786
This elegant and fully renovated lakefront home on Lake Olivia in Windermere offers the ultimate blend of luxury, comfort, and Florida lifestyle. Featuring three master suites plus a guest bedroom and bathroom, the spacious layout is designed for both entertaining and everyday living. Large windows fill the home with natural light and frame breathtaking views of the water, while recent upgrades—including a new roof, new insulation, new tile floors, new kitchen cabinets and countertops, new stainless steel appliances, fresh interior and exterior paint, and updated lighting fixtures-add modern elegance throughout. The east-facing design bathes every room in golden sunsets, creating a warm and inviting atmosphere. Set on 1.4 acres with no mandatory HOA, the property boasts a huge driveway with space for RV or boat parking, along with a twin boat slip dock and covered boat house. Perfectly located near top-rated schools, shops, restaurants, attractions, and major roads, this home is ideal for those seeking the Floridian way of life—where swimming, fishing, jet skiing, and year-round relaxation are just steps from your back door.
Listing Information
Property Type: Residential, Single Family Residence
Status: Active
Bedrooms: 4
Bathrooms: 5
Lot Size: 1.36 Acres
Square Feet: 3,288 sq ft
Year Built: 1996
Garage: Yes
Stories: 1 Story
Construction: Other,Stucco
Subdivision: Roberts Landing
Foundation: Other,Slab
County: Orange
School Information
Elementary: Thornebrooke Elem
Middle: Gotha Middle
High: Olympia High
Room Information
Main Floor
Kitchen:
Primary Bedroom:
Primary Bathroom:
Living Room:
Bathrooms
Full Baths: 4
1/2 Baths: 1
Additonal Room Information
Laundry: Laundry Room
Interior Features
Appliances: Electric Water Heater, Ice Maker, Convection Oven, Washer, Refrigerator, Cooktop, Dishwasher, Disposal, Dryer, Microwave
Flooring: Porcelain Tile
Additional Interior Features: Split Bedrooms, Other, Built-in Features, Walk-In Closet(s), Open Floorplan, Wood Cabinets
Utilities
Water: Well, Private
Sewer: Septic Tank
Other Utilities: Electricity Connected
Cooling: Central Air
Heating: Central
Exterior / Lot Features
Attached Garage: Attached Garage
Garage Spaces: 2
Roof: Shingle
Lot View: Lake,Water
Additional Exterior/Lot Features: Sprinkler/Irrigation, Other, Lighting, Rear Porch, Screened
Waterfront Details
Water Front Features: Lake Privileges
Community Features
Community Features: Sidewalks
Driving Directions
From the intersection of Conroy/Windermere and Apopka-Vineland, drive North on Apopka-Vineland Rd. Turn left on Westover Robert, turn right into Roberts Landing Subdivision, go straightforward and property is on the left.
Financial Considerations
Terms: Cash,Conventional,FHA
Tax/Property ID: 04-23-28-7490-00-280
Tax Amount: 17269
Tax Year: 2024
A broker reciprocity listing courtesy: INTERNATIONAL NETWORK REALTY
Based on information provided by Stellar MLS as distributed by the MLS GRID. Information from the Internet Data Exchange is provided exclusively for consumers’ personal, non-commercial use, and such information may not be used for any purpose other than to identify prospective properties consumers may be interested in purchasing. This data is deemed reliable but is not guaranteed to be accurate by Edina Realty, Inc., or by the MLS. Edina Realty, Inc., is not a multiple listing service (MLS), nor does it offer MLS access.
Copyright 2026 Stellar MLS as distributed by the MLS GRID. All Rights Reserved.
Payment Calculator
Interest rate and annual percentage rate (APR) are based on current market conditions, are for informational purposes only, are subject to change without notice and may be subject to pricing add-ons related to property type, loan amount, loan-to-value, credit score and other variables. Estimated closing costs used in the APR calculation are assumed to be paid by the borrower at closing. If the closing costs are financed, the loan, APR and payment amounts will be higher. If the down payment is less than 20%, mortgage insurance may be required and could increase the monthly payment and APR. Contact us for details. Additional loan programs may be available. Accuracy is not guaranteed, and all products may not be available in all borrower's geographical areas and are based on their individual situation. This is not a credit decision or a commitment to lend.
Sales History & Tax Summary for 1703 Roberts Landing Road
Sales History
| Date | Price | |
|---|---|---|
| Currently not available. | ||
Tax Summary
| Tax Year | Estimated Market Value | Total Tax |
|---|---|---|
| Currently not available. | ||
Data powered by ATTOM Data Solutions. Copyright© 2026. Information deemed reliable but not guaranteed.
Schools
Schools nearby 1703 Roberts Landing Road
| Schools in attendance boundaries | Grades | Distance | Rating |
|---|---|---|---|
| Loading... | |||
| Schools nearby | Grades | Distance | Rating |
|---|---|---|---|
| Loading... | |||
Data powered by ATTOM Data Solutions. Copyright© 2026. Information deemed reliable but not guaranteed.
The schools shown represent both the assigned schools and schools by distance based on local school and district attendance boundaries. Attendance boundaries change based on various factors and proximity does not guarantee enrollment eligibility. Please consult your real estate agent and/or the school district to confirm the schools this property is zoned to attend. Information is deemed reliable but not guaranteed.
SchoolDigger ® Rating
The SchoolDigger rating system is a 1-5 scale with 5 as the highest rating. SchoolDigger ranks schools based on test scores supplied by each state's Department of Education. They calculate an average standard score by normalizing and averaging each school's test scores across all tests and grades.
Coming soon properties will soon be on the market, but are not yet available for showings.