17085 SW 40th Terrace Ocala, FL 34473
Pending MLS# C7505094
3 beds 2 baths 1,060 sq ft Single Family
Details for 17085 SW 40th Terrace
MLS# C7505094
Description for 17085 SW 40th Terrace, Ocala, FL, 34473
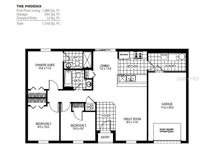
Under Construction. The Phoenix floor plan. step into a cozy and inviting space that instantly feels like home. This thoughtfully designed three-bedroom, two-bathroom residence is crafted for comfort and style. As you enter, you’ll discover the heart of the home—the kitchen seamlessly blending with the combined dining and great room area. Say goodbye to formal living and dining rooms and embrace a contemporary layout that effortlessly accommodates entertaining friends and family. This new home includes one full year of builder's transferable warranty coverage and a 10-year limited structural warranty.
Listing Information
Property Type: Residential, Single Family Residence
Status: Pending
Bedrooms: 3
Bathrooms: 2
Lot Size: 0.23 Acres
Square Feet: 1,060 sq ft
Year Built: 2025
Garage: Yes
Stories: 1 Story
Construction: Block,Stucco
Construction Display: New Construction
Subdivision: Marion Oaks Unit 6
Builder: Holiday Builders
Foundation: Slab
County: Marion
Construction Status: Under Construction
Room Information
Main Floor
Bedroom 3: 8.07x10.03
Bedroom 2: 9.03x10.02
Great Room: 17.04x9.07
Kitchen: 9.01x8.07
Primary Bedroom: 11.02x10.4
Bathrooms
Full Baths: 2
Additonal Room Information
Laundry: Inside
Interior Features
Appliances: Dishwasher, Range, Electric Water Heater
Flooring: Carpet,Vinyl
Additional Interior Features: Walk-In Closet(s), Main Level Primary, Open Floorplan
Utilities
Water: Public
Sewer: Septic Tank
Other Utilities: Electricity Available,Electricity Connected,Municipal Utilities,Underground Utilities,Water Available,Water Connected
Cooling: Central Air
Heating: Central, Electric
Exterior / Lot Features
Attached Garage: Attached Garage
Garage Spaces: 1
Roof: Shingle
Driving Directions
From 75N take exit 341 for Marion County 484, go West on Hwy 484. Turn left on Marion Oaks Blvd, Left on 39th Circle, Right on SW 169th Lane Rd, left on 40th Terrace. Home is 2nd in on the left.
Financial Considerations
Terms: Cash,Conventional,FHA,VA Loan
Tax/Property ID: 8006-0688-26
Tax Amount: 453
Tax Year: 2024
A broker reciprocity listing courtesy: HOLIDAY BUILDERS GULF COAST
Based on information provided by Stellar MLS as distributed by the MLS GRID. Information from the Internet Data Exchange is provided exclusively for consumers’ personal, non-commercial use, and such information may not be used for any purpose other than to identify prospective properties consumers may be interested in purchasing. This data is deemed reliable but is not guaranteed to be accurate by Edina Realty, Inc., or by the MLS. Edina Realty, Inc., is not a multiple listing service (MLS), nor does it offer MLS access.
Copyright 2026 Stellar MLS as distributed by the MLS GRID. All Rights Reserved.
Sales History & Tax Summary for 17085 SW 40th Terrace
Sales History
| Date | Price | |
|---|---|---|
| Currently not available. | ||
Tax Summary
| Tax Year | Estimated Market Value | Total Tax |
|---|---|---|
| Currently not available. | ||
Data powered by ATTOM Data Solutions. Copyright© 2026. Information deemed reliable but not guaranteed.
Schools
Schools nearby 17085 SW 40th Terrace
| Schools in attendance boundaries | Grades | Distance | Rating |
|---|---|---|---|
| Loading... | |||
| Schools nearby | Grades | Distance | Rating |
|---|---|---|---|
| Loading... | |||
Data powered by ATTOM Data Solutions. Copyright© 2026. Information deemed reliable but not guaranteed.
The schools shown represent both the assigned schools and schools by distance based on local school and district attendance boundaries. Attendance boundaries change based on various factors and proximity does not guarantee enrollment eligibility. Please consult your real estate agent and/or the school district to confirm the schools this property is zoned to attend. Information is deemed reliable but not guaranteed.
SchoolDigger ® Rating
The SchoolDigger rating system is a 1-5 scale with 5 as the highest rating. SchoolDigger ranks schools based on test scores supplied by each state's Department of Education. They calculate an average standard score by normalizing and averaging each school's test scores across all tests and grades.
Coming soon properties will soon be on the market, but are not yet available for showings.