171 Valencia Circle Saint Petersburg, FL 33716
For Sale MLS# TB8467434
3 beds 3 baths 2,085 sq ft Townhouse/Twinhome
OPEN HOUSE: Sunday, 3/15 11:00 AM - 01:00 PM
Details for 171 Valencia Circle
MLS# TB8467434
Description for 171 Valencia Circle, Saint Petersburg, FL, 33716
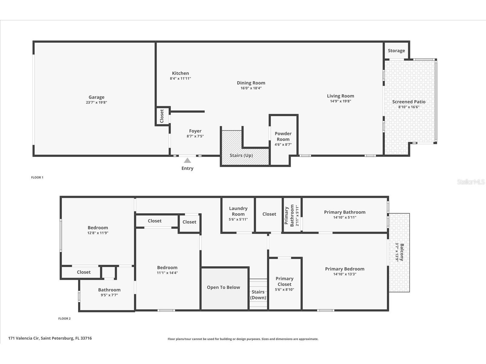
Designed for California and New York buyers relocating to Florida, this beautifully updated end-unit residence sets the standard for refined, lock-and-leave living. Located within the private, gated Villas of Carillon, this designer-curated two-story home offers a sophisticated blend of modern style, comfort, and privacy in one of St. Petersburg’s most desirable communities. Thoughtfully redesigned throughout, the home balances sleek contemporary finishes with warm, inviting spaces, showcasing a level of attention to detail that is immediately felt. The main level features a bright, spacious kitchen appointed with quartz countertops and streamlined European-style cabinetry, opening effortlessly to expansive living and dining areas ideal for both everyday living and entertaining. Sliding doors lead to a screened-in back porch, creating a serene retreat to unwind while enjoying peaceful pond and wooded surroundings. The seamless indoor-outdoor flow enhances the home’s relaxed yet refined lifestyle. Upstairs, three well-appointed bedrooms include a tranquil primary suite featuring dual walk-in closets, a beautifully updated en-suite bath, and a private balcony overlooking the water and natural landscape. Two additional bedrooms share a fully renovated second bath, while a conveniently located second-floor laundry room adds ease to daily living. Additional highlights include a two-car attached garage with built-in shelving and ample storage throughout. Residents of Villas of Carillon enjoy access to a resort-style pool, clubhouse, and scenic walking and biking paths, all just minutes from downtown St. Petersburg, Tampa, major airports, world-renowned beaches, shopping, and dining. A turnkey opportunity offering elevated design, low-maintenance living, and an exceptional location — without compromise.
Listing Information
Property Type: Residential, Townhouse
Status: Active
Bedrooms: 3
Bathrooms: 3
Lot Size: 0.05 Acres
Square Feet: 2,085 sq ft
Year Built: 2006
Garage: Yes
Stories: 2 Story
Construction: Block,Stucco,Wood Frame
Subdivision: Villas Of Carillon
Foundation: Slab
County: Pinellas
School Information
Elementary: Pinellas Central Elem-Pn
Middle: Fitzgerald Middle-Pn
High: Pinellas Park High-Pn
Room Information
Main Floor
Kitchen: 14x11
Living Room: 14x20
Upper Floor
Primary Bedroom: 21x13
Bathrooms
Full Baths: 2
1/2 Baths: 1
Additonal Room Information
Laundry: Laundry Room, Inside
Interior Features
Appliances: Electric Water Heater, Convection Oven, Range, Refrigerator, Dishwasher, Disposal, Dryer, Microwave, Washer
Flooring: Luxury Vinyl,Tile
Additional Interior Features: Walk-In Closet(s), Ceiling Fan(s), Solid Surface Counters, Stone Counters, Open Floorplan, Crown Molding, Living/Dining Room
Utilities
Water: Public
Sewer: Public Sewer
Other Utilities: Cable Connected,Electricity Connected,High Speed Internet Available,Municipal Utilities,Sewer Connected,Water Connected
Cooling: Ceiling Fan(s), Central Air
Heating: Electric, Central
Exterior / Lot Features
Attached Garage: Attached Garage
Garage Spaces: 2
Parking Description: driveway, Off Street
Roof: Tile
Pool: Other, In Ground, Community, Outside Bath Access, Gunite
Lot View: Pond,Trees/Woods,Water
Additional Exterior/Lot Features: French Patio Doors, Balcony, Lighting, Storage, Screened, Balcony, Covered, Rear Porch, Landscaped, City Lot, Flood Zone, Historic District
Waterfront Details
Water Front Features: Pond
Community Features
Community Features: Clubhouse, Community Mailbox, Gated, Pool, Sidewalks
Security Features: Gated Community
HOA Dues Include: Association Management, Insurance, Pest Control, Maintenance Grounds, Maintenance Structure, Pool(s), Water, Trash, Recreation Facilities, Sewer
Homeowners Association: Yes
HOA Dues: $874 / Monthly
Driving Directions
Take Roosevelt Blvd to Lake Carillon Dr. Take a right onto Carillon Pkwy and then another right onto Trinity Lane N and take that road to the main gate "The Villas of Carillon." Take a right into the neighborhood and then a left onto Valencia Circle. The townhome will be on your left.
Financial Considerations
Terms: Cash,Conventional
Tax/Property ID: 12-30-16-94177-039-0030
Tax Amount: 7509.95
Tax Year: 2025
A broker reciprocity listing courtesy: THE AGENCY FL
Based on information provided by Stellar MLS as distributed by the MLS GRID. Information from the Internet Data Exchange is provided exclusively for consumers’ personal, non-commercial use, and such information may not be used for any purpose other than to identify prospective properties consumers may be interested in purchasing. This data is deemed reliable but is not guaranteed to be accurate by Edina Realty, Inc., or by the MLS. Edina Realty, Inc., is not a multiple listing service (MLS), nor does it offer MLS access.
Copyright 2026 Stellar MLS as distributed by the MLS GRID. All Rights Reserved.
Payment Calculator
Interest rate and annual percentage rate (APR) are based on current market conditions, are for informational purposes only, are subject to change without notice and may be subject to pricing add-ons related to property type, loan amount, loan-to-value, credit score and other variables. Estimated closing costs used in the APR calculation are assumed to be paid by the borrower at closing. If the closing costs are financed, the loan, APR and payment amounts will be higher. If the down payment is less than 20%, mortgage insurance may be required and could increase the monthly payment and APR. Contact us for details. Additional loan programs may be available. Accuracy is not guaranteed, and all products may not be available in all borrower's geographical areas and are based on their individual situation. This is not a credit decision or a commitment to lend.
Sales History & Tax Summary for 171 Valencia Circle
Sales History
| Date | Price | |
|---|---|---|
| Currently not available. | ||
Tax Summary
| Tax Year | Estimated Market Value | Total Tax |
|---|---|---|
| Currently not available. | ||
Data powered by ATTOM Data Solutions. Copyright© 2026. Information deemed reliable but not guaranteed.
Schools
Schools nearby 171 Valencia Circle
| Schools in attendance boundaries | Grades | Distance | Rating |
|---|---|---|---|
| Loading... | |||
| Schools nearby | Grades | Distance | Rating |
|---|---|---|---|
| Loading... | |||
Data powered by ATTOM Data Solutions. Copyright© 2026. Information deemed reliable but not guaranteed.
The schools shown represent both the assigned schools and schools by distance based on local school and district attendance boundaries. Attendance boundaries change based on various factors and proximity does not guarantee enrollment eligibility. Please consult your real estate agent and/or the school district to confirm the schools this property is zoned to attend. Information is deemed reliable but not guaranteed.
SchoolDigger ® Rating
The SchoolDigger rating system is a 1-5 scale with 5 as the highest rating. SchoolDigger ranks schools based on test scores supplied by each state's Department of Education. They calculate an average standard score by normalizing and averaging each school's test scores across all tests and grades.
Coming soon properties will soon be on the market, but are not yet available for showings.