17109 Star Banks Street Wimauma, FL 33598
For Sale MLS# TB8449309
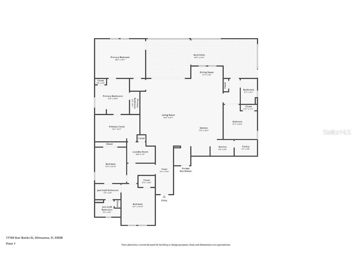
4 beds 3 baths 2,805 sq ft Single Family
Details for 17109 Star Banks Street
MLS# TB8449309
Description for 17109 Star Banks Street, Wimauma, FL, 33598
Step into resort-style living at Medley at Southshore Bay, the premier 55+ active adult community where luxury and lifestyle come together. This stunning 4-bedroom, 3-bath home with a 3-car garage delivers an impressive blend of sophistication, comfort, and functionality—all wrapped in a bright, open floor plan with upscale plank tile flooring throughout. At the center of the home, the gourmet kitchen commands attention with gleaming quartz countertops, sleek modern cabinetry, stainless steel appliances, and an oversized island designed for gathering. A walk-in pantry plus a dedicated butler’s pantry provide exceptional storage and prep space, keeping your kitchen organized and ready for any occasion. The kitchen flows seamlessly into the dining and living areas, setting the stage for effortless entertaining and easy everyday living. The split-bedroom layout is thoughtfully designed for privacy and versatility. The expansive primary suite offers a serene escape with its spa-inspired bathroom featuring dual vanities, an oversized walk-in shower, and a generous walk-in closet that conveniently connects directly to the laundry room. Bedrooms 2 and 3 share a well-appointed Jack-and-Jill bath, while Bedroom 4 sits separately with access to a nearby full bath—ideal for guests, in-laws, or a private home office. Step outside and you’ll find your own personal oasis. A sparkling pond and with wildlife watching that makes the afternoons melt away. The oversized screened-in patio will is an incredible space for relaxing afternoons, evening cocktails, or year-round gatherings. Community life is all about elevated living and vibrant community energy. You’ll enjoy secure, convenient access through both manned and unmanned gates and golf-cart friendly paths that make it easy to explore. The private clubhouse serves as the community’s heartbeat, offering a café and bars, billiards, card, games and activity rooms plus and an elegant ballroom hosting events of every kind. A packed activities calendar keeps the excitement going with karaoke nights, comedy shows, live music, and a wide selection of clubs—everything from hobby groups to cigar socials. Outdoor recreation is abundant with pickleball and bocce courts, walking trails, a dog park with its own bathing station, and a heated resort-style pool. And just steps away lies the breathtaking 5-acre Metro Lagoon by Crystal Lagoons—an unmatched amenity offering endless fun in the Florida sunshine. With HOA fees covering internet, basic cable, and lawn care, you can focus less on maintenance and more on enjoying the lifestyle you’ve earned. This move-in ready home delivers luxury, convenience, and community at every turn—where coming home truly feels like arriving at your own private resort.
Listing Information
Property Type: Residential, Single Family Residence
Status: Active
Bedrooms: 4
Bathrooms: 3
Lot Size: 0.19 Acres
Square Feet: 2,805 sq ft
Year Built: 2023
Garage: Yes
Stories: 1 Story
Construction: Stucco
Construction Display: New Construction
Subdivision: Forest Brooke Active Adult Phs
Builder: Lennar
Foundation: Slab
County: Hillsborough
Construction Status: New Construction
School Information
Elementary: Thompson Elementary
Middle: Shields-Hb
High: Lennard-Hb
Room Information
Main Floor
Porch: 14.5x40.3
Laundry: 7.5x10
Kitchen: 18.7x11.5
Dining Room: 4.6x11.4
Living Room: 24.1x18.2
Bedroom 4: 12.5x12.1
Bedroom 3: 14.1x12.1
Bedroom 2: 12.1x13.2
Primary Bedroom: 14.1x18.2
Bathrooms
Full Baths: 3
Additonal Room Information
Laundry: Electric Dryer Hookup, Laundry Room, Washer Hookup
Interior Features
Appliances: Electric Water Heater, Washer, Water Softener, Range Hood, Range, Refrigerator, Microwave, Dishwasher, Disposal, Dryer
Flooring: Carpet,Ceramic Tile
Doors/Windows: Window Treatments
Additional Interior Features: Walk-In Closet(s), Eat-In Kitchen, Ceiling Fan(s), High Ceilings, Separate/Formal Dining Room, Window Treatments, Main Level Primary, Open Floorplan, Kitchen/Family Room Combo, Stone Counters
Utilities
Water: Public
Sewer: Public Sewer
Other Utilities: Cable Connected,Electricity Connected,Municipal Utilities,Sewer Connected,Water Connected
Cooling: Ceiling Fan(s), Central Air
Heating: Central, Electric
Exterior / Lot Features
Attached Garage: Attached Garage
Garage Spaces: 3
Parking Description: Garage Door Opener, Garage, driveway
Roof: Tile
Pool: Association, Community
Lot View: Pond,Water
Lot Dimensions: 70x120
Fencing: Vinyl
Additional Exterior/Lot Features: Storm/Security Shutters, Sprinkler/Irrigation, Rear Porch, Screened, Landscaped, Buyer Approval Required
Waterfront Details
Water Front Features: Pond
Community Features
Community Features: Fitness, Golf Carts OK, Community Mailbox, Clubhouse, Dog Park, Gated, Restaurant, Pool, Tennis Court(s), Sidewalks
Security Features: Gated Community, Gated with Guard, Key Card Entry, Lobby Secured
Association Amenities: Tennis Court(s), Pool, Recreation Facilities, Cable TV, Pickleball, Clubhouse, Gated, Fitness Center, Maintenance Grounds
HOA Dues Include: Maintenance Grounds, Association Management, Common Areas, Pool(s), Cable TV, Recreation Facilities, Internet, Taxes
Homeowners Association: Yes
HOA Dues: $470 / Monthly
Driving Directions
75 Hwy to east on Sun City Center Blvd, turn right onto 301, right onto Hidden Creek Blvd, right onto Lagoon Shore Blvd, and left onto Scuba Crest St. Stop at gate and enter code. As soon as you get through the gate, turn left onto Star Banks St. Please park in the driveway.
Financial Considerations
Terms: Cash,Conventional,FHA,VA Loan
Tax/Property ID: U-17-32-20-C90-000038-00019.0
Tax Amount: 8561.52
Tax Year: 2025
A broker reciprocity listing courtesy: EXP REALTY LLC
Based on information provided by Stellar MLS as distributed by the MLS GRID. Information from the Internet Data Exchange is provided exclusively for consumers’ personal, non-commercial use, and such information may not be used for any purpose other than to identify prospective properties consumers may be interested in purchasing. This data is deemed reliable but is not guaranteed to be accurate by Edina Realty, Inc., or by the MLS. Edina Realty, Inc., is not a multiple listing service (MLS), nor does it offer MLS access.
Copyright 2026 Stellar MLS as distributed by the MLS GRID. All Rights Reserved.
Payment Calculator
Interest rate and annual percentage rate (APR) are based on current market conditions, are for informational purposes only, are subject to change without notice and may be subject to pricing add-ons related to property type, loan amount, loan-to-value, credit score and other variables. Estimated closing costs used in the APR calculation are assumed to be paid by the borrower at closing. If the closing costs are financed, the loan, APR and payment amounts will be higher. If the down payment is less than 20%, mortgage insurance may be required and could increase the monthly payment and APR. Contact us for details. Additional loan programs may be available. Accuracy is not guaranteed, and all products may not be available in all borrower's geographical areas and are based on their individual situation. This is not a credit decision or a commitment to lend.
Sales History & Tax Summary for 17109 Star Banks Street
Sales History
| Date | Price | |
|---|---|---|
| Currently not available. | ||
Tax Summary
| Tax Year | Estimated Market Value | Total Tax |
|---|---|---|
| Currently not available. | ||
Data powered by ATTOM Data Solutions. Copyright© 2026. Information deemed reliable but not guaranteed.
Schools
Schools nearby 17109 Star Banks Street
| Schools in attendance boundaries | Grades | Distance | Rating |
|---|---|---|---|
| Loading... | |||
| Schools nearby | Grades | Distance | Rating |
|---|---|---|---|
| Loading... | |||
Data powered by ATTOM Data Solutions. Copyright© 2026. Information deemed reliable but not guaranteed.
The schools shown represent both the assigned schools and schools by distance based on local school and district attendance boundaries. Attendance boundaries change based on various factors and proximity does not guarantee enrollment eligibility. Please consult your real estate agent and/or the school district to confirm the schools this property is zoned to attend. Information is deemed reliable but not guaranteed.
SchoolDigger ® Rating
The SchoolDigger rating system is a 1-5 scale with 5 as the highest rating. SchoolDigger ranks schools based on test scores supplied by each state's Department of Education. They calculate an average standard score by normalizing and averaging each school's test scores across all tests and grades.
Coming soon properties will soon be on the market, but are not yet available for showings.