$265,000
Off-Market Date: 12/03/2025
Listed by: Edina Realty, Inc.
17198 93rd Place N Maple Grove, MN 55311
Pending MLS# 6768517
2 beds 2 baths 1,274 sq ft Townhouse/Twinhome
Listed by: Edina Realty, Inc.
Details for 17198 93rd Place N
MLS# 6768517
Description for 17198 93rd Place N, Maple Grove, MN, 55311
AWESOME OPPORTUNITY! Welcome home to this move-in ready end-unit townhome perfectly situated in a peaceful community overlooking a serene pond and nature. Featuring 2 bedrooms, 2 bathrooms, and a versatile loft ideal for an office, yoga, or crafts, this home offers space and flexibility. Enjoy soaring vaulted ceilings in the living room, a cozy gas fireplace, and a large eat-in kitchen that flows to a private patio—perfect for relaxing or dining outdoors. Recently updated HVAC, garage door opener, and water heater. Upstairs, the spacious primary suite boasts a custom walk-in closet, while the second bedroom and convenient upper-level laundry make daily living a breeze. Abundant natural light create a crisp, clean, bright feel throughout. Attached 2-car garage for added convenience. Walk to shops, restaurants, and parks with quick access to highways 94, 694, and 494.
Listing Information
Property Type: Residential, Side by Side
Status: Pending
Bedrooms: 2
Bathrooms: 2
Lot Size: 0.22 Acres
Square Feet: 1,274 sq ft
Year Built: 1999
Foundation: 637 sq ft
Garage: Yes
Stories: 2 Stories
Property Attached: Yes
Subdivision: Cic 0867 Cranberry Meadows Courtho
County: Hennepin
Days On Market: 118
Construction Status: Previously Owned
School Information
District: 279 - Osseo
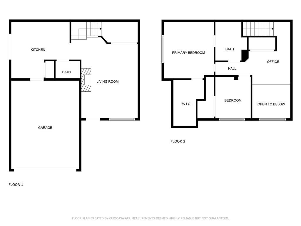
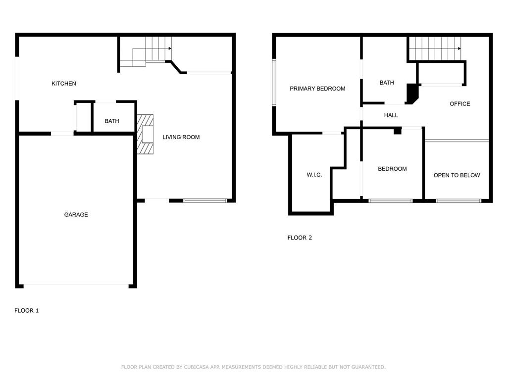
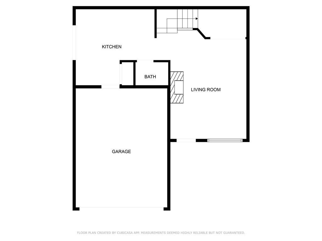
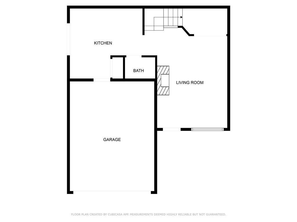
Room Information
Main Floor
Dining Room:
Family Room:
Kitchen: 13x13
Living Room: 20x14
Patio: 10x8
Upper Floor
Bedroom 1: 14x10
Bedroom 2: 10x10
Bedroom 3:
Bedroom 4:
Loft: 11x8
Bathrooms
Full Baths: 1
1/2 Baths: 1
Additonal Room Information
Dining: Eat In Kitchen
Laundry: Washer Hookup, Upper Level, Electric Dryer Hookup, Laundry Closet
Bath Description: Main Floor 1/2 Bath,Upper Level Full Bath,Walk Thru
Interior Features
Square Footage above: 1,274 sq ft
Appliances: Gas Water Heater, Microwave, Range, Furnace Humidifier, Disposal, Water Softener - Rented, Refrigerator, Dryer, Dishwasher, Washer
Fireplaces: Living Room, Gas Burning
Additional Interior Features: Vaulted Ceiling(s), Ceiling Fan(s), Washer/Dryer Hookup, Walk-In Closet, 2nd Floor Laundry
Utilities
Water: City Water/Connected
Sewer: City Sewer/Connected
Cooling: Central
Heating: Natural Gas, Forced Air
Exterior / Lot Features
Attached Garage: Attached Garage
Garage Spaces: 2
Parking Description: Driveway - Asphalt, Insulated Garage, Attached Garage, Garage Sq Ft - 400.0
Exterior: Vinyl
Roof: Asphalt Shingles
Lot Dimensions: common
Zoning: Residential-Single Family
Additional Exterior/Lot Features: Patio, End Unit
Waterfront Details
Water Front Features: Pond
Community Features
Association Amenities: Patio
HOA Dues Include: Professional Mgmt, Hazard Insurance, Sanitation, Building Exterior, Lawn Care, Sewer
Pets Allowed: Yes
Homeowners Association: Yes
Association Name: Westport Property Management
HOA Dues: $355 / Monthly
Driving Directions
94W to Exit 213. Take a left onto Maple Grove parkway. Right on 95th Ave N. Left onto Garland Ave? Garland LN N. Right onto 93rd PL N.
Financial Considerations
Covenants/Deed Restrictions: Rental Restrictions May Apply, Mandatory Owners Assoc, Pets - Number Limit, Pets - Weight/Height Limit, Pets - Dogs Allowed, Pets - Cats Allowed
Tax/Property ID: 0811922330108
Tax Amount: 2993.3
Tax Year: 2025
HomeStead Description: Homesteaded
The data relating to real estate for sale on this web site comes in part from the Broker Reciprocity℠ Program of the Regional Multiple Listing Service of Minnesota, Inc. Real estate listings held by brokerage firms other than Edina Realty, Inc. are marked with the Broker Reciprocity℠ logo or the Broker Reciprocity℠ thumbnail and detailed information about them includes the name of the listing brokers. Edina Realty, Inc. is not a Multiple Listing Service (MLS), nor does it offer MLS access. This website is a service of Edina Realty, Inc., a broker Participant of the Regional Multiple Listing Service of Minnesota, Inc. IDX information is provided exclusively for consumers personal, non-commercial use and may not be used for any purpose other than to identify prospective properties consumers may be interested in purchasing. Open House information is subject to change without notice. Information deemed reliable but not guaranteed.
Copyright 2025 Regional Multiple Listing Service of Minnesota, Inc. All Rights Reserved.
Sales History & Tax Summary for 17198 93rd Place N
Sales History
| Date | Price | Change |
|---|---|---|
| Currently not available. | ||
Tax Summary
| Tax Year | Estimated Market Value | Total Tax |
|---|---|---|
| Currently not available. | ||
Data powered by ATTOM Data Solutions. Copyright© 2025. Information deemed reliable but not guaranteed.
Schools
Schools nearby 17198 93rd Place N
| Schools in attendance boundaries | Grades | Distance | Rating |
|---|---|---|---|
| Loading... | |||
| Schools nearby | Grades | Distance | Rating |
|---|---|---|---|
| Loading... | |||
Data powered by ATTOM Data Solutions. Copyright© 2025. Information deemed reliable but not guaranteed.
The schools shown represent both the assigned schools and schools by distance based on local school and district attendance boundaries. Attendance boundaries change based on various factors and proximity does not guarantee enrollment eligibility. Please consult your real estate agent and/or the school district to confirm the schools this property is zoned to attend. Information is deemed reliable but not guaranteed.
SchoolDigger ® Rating
The SchoolDigger rating system is a 1-5 scale with 5 as the highest rating. SchoolDigger ranks schools based on test scores supplied by each state's Department of Education. They calculate an average standard score by normalizing and averaging each school's test scores across all tests and grades.
Coming soon properties will soon be on the market, but are not yet available for showings.