$425,000
1722 Bugle Terrace The Villages, FL 32162
For Sale MLS# G5098901
3 beds 2 baths 1,667 sq ft Single Family
Details for 1722 Bugle Terrace
MLS# G5098901
Description for 1722 Bugle Terrace, The Villages, FL, 32162
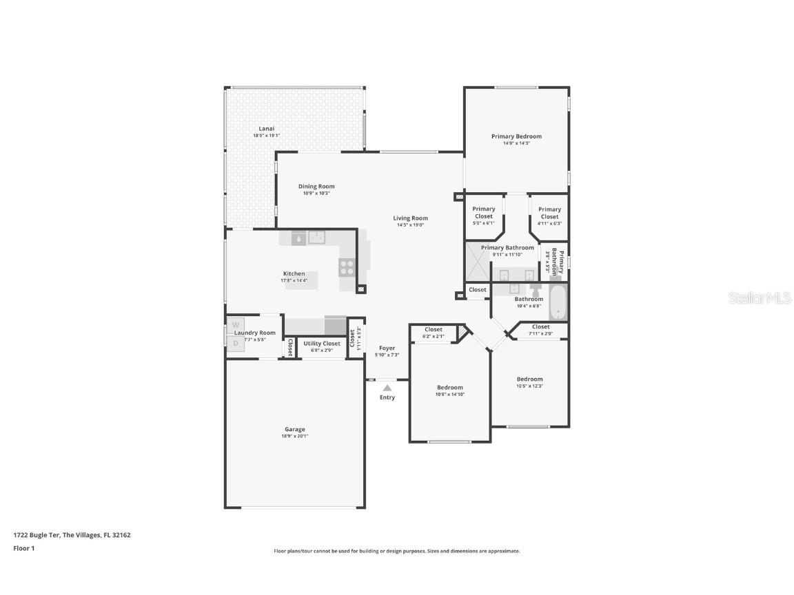
BOND PAID and Location, Location, Location. This 3-bedroom 2-bath Oleander Designer in the Village of SABAL CHASE sits on a Corner Lot (Room for a Pool), has Mature Landscaping, Ceramic Tile Flooring in Foyer, Hallway, both Bathrooms, Kitchen, and Laundry Room, Carpet in two bedrooms, and Laminate in 3rd Bedroom. Home Features: New Roof August 2023, HVAC Nov 2020, Water Heater January 2013, Island in Kitchen with Cherry finish cabinets and pull-out drawers, Corian Countertops, Eat-n-Kitchen, Formal Dining Room with Wood Laminate floor and French doors that open to the lanai, L-Shaped Lanai with Tile Floor, Private Patio, Water Filtration, and Radiant Roof Barrier in attic. The Garage has pull-down attic steps, a work bench, cabinets for plenty of storage, shelving, and a Garage Door with a Screen Garage Door. The Driveway and Walkway is Painted, and there is a 2012 Yamaha Gas Golf Cart. Just 1.1 mile from Sumter Landing off Canal Street. Many of you who are looking for a home priced right and needs some updating...Well this is it. Get it before someone else does. I have a complete Expense Report to upgrade everything or nothing. The Primary Bedroom has two walk-in closets, dual vanity, water closet with door, and a walk-in tile shower. Schedule your private showing today—or request a FaceTime tour if you’re out of the area—and experience all this beautiful property provides.
Listing Information
Property Type: Residential, Single Family Residence
Status: Active
Bedrooms: 3
Bathrooms: 2
Lot Size: 0.16 Acres
Square Feet: 1,667 sq ft
Year Built: 2006
Garage: Yes
Stories: 1 Story
Construction: Vinyl Siding
Subdivision: Villages Of Sumter
Foundation: Slab
County: Sumter
Room Information
Main Floor
Porch: 19.1x18.9
Bedroom 3: 10.5x12.3
Bedroom 2: 10.8x14.1
Primary Bedroom: 14x14.3
Dining Room: 10.3x10.9
Kitchen: 14.4x17.8
Living Room: 14.5x19
Bathrooms
Full Baths: 2
Additonal Room Information
Laundry: Laundry Room
Interior Features
Appliances: Water Purifier, Electric Water Heater, Dishwasher, Dryer, Microwave, Range, Refrigerator, Washer
Flooring: Carpet,Laminate,Tile
Doors/Windows: Window Treatments, Blinds
Additional Interior Features: Eat-In Kitchen, Main Level Primary, Window Treatments, Walk-In Closet(s), High Ceilings
Utilities
Water: Public
Sewer: Public Sewer
Other Utilities: Electricity Connected,High Speed Internet Available,Sewer Connected,Underground Utilities,Water Connected
Cooling: Central Air
Heating: Central
Exterior / Lot Features
Attached Garage: Attached Garage
Garage Spaces: 2
Roof: Shingle
Pool: Community
Additional Exterior/Lot Features: Sprinkler/Irrigation, Corner Lot
Community Features
Community Features: Pool, Tennis Court(s), Playground, Golf, Street Lights, Dog Park, Park, Fitness, Community Mailbox
HOA Dues Include: Recreation Facilities, Security, Pool(s)
Driving Directions
Take Morse Blvd or Buena to Odell Circle and go West. Take Odell Circle to Canal Street and go South Take Canal Street to Lucky Lane and turn Left. Take Lucky Lane to dead end and turn Left onto Bugle Terrace. Home is immediately on Left on the Corner.
Financial Considerations
Terms: Cash,Conventional
Tax/Property ID: D26F206
Tax Amount: 1622.06
Tax Year: 2024
A broker reciprocity listing courtesy: COLDWELL BANKER VANGUARD LIFESTYLE REALTY
Based on information provided by Stellar MLS as distributed by the MLS GRID. Information from the Internet Data Exchange is provided exclusively for consumers’ personal, non-commercial use, and such information may not be used for any purpose other than to identify prospective properties consumers may be interested in purchasing. This data is deemed reliable but is not guaranteed to be accurate by Edina Realty, Inc., or by the MLS. Edina Realty, Inc., is not a multiple listing service (MLS), nor does it offer MLS access.
Copyright 2026 Stellar MLS as distributed by the MLS GRID. All Rights Reserved.
Payment Calculator
Interest rate and annual percentage rate (APR) are based on current market conditions, are for informational purposes only, are subject to change without notice and may be subject to pricing add-ons related to property type, loan amount, loan-to-value, credit score and other variables. Estimated closing costs used in the APR calculation are assumed to be paid by the borrower at closing. If the closing costs are financed, the loan, APR and payment amounts will be higher. If the down payment is less than 20%, mortgage insurance may be required and could increase the monthly payment and APR. Contact us for details. Additional loan programs may be available. Accuracy is not guaranteed, and all products may not be available in all borrower's geographical areas and are based on their individual situation. This is not a credit decision or a commitment to lend.
Sales History & Tax Summary for 1722 Bugle Terrace
Sales History
| Date | Price | |
|---|---|---|
| Currently not available. | ||
Tax Summary
| Tax Year | Estimated Market Value | Total Tax |
|---|---|---|
| Currently not available. | ||
Data powered by ATTOM Data Solutions. Copyright© 2026. Information deemed reliable but not guaranteed.
Schools
Schools nearby 1722 Bugle Terrace
| Schools in attendance boundaries | Grades | Distance | Rating |
|---|---|---|---|
| Loading... | |||
| Schools nearby | Grades | Distance | Rating |
|---|---|---|---|
| Loading... | |||
Data powered by ATTOM Data Solutions. Copyright© 2026. Information deemed reliable but not guaranteed.
The schools shown represent both the assigned schools and schools by distance based on local school and district attendance boundaries. Attendance boundaries change based on various factors and proximity does not guarantee enrollment eligibility. Please consult your real estate agent and/or the school district to confirm the schools this property is zoned to attend. Information is deemed reliable but not guaranteed.
SchoolDigger ® Rating
The SchoolDigger rating system is a 1-5 scale with 5 as the highest rating. SchoolDigger ranks schools based on test scores supplied by each state's Department of Education. They calculate an average standard score by normalizing and averaging each school's test scores across all tests and grades.
Coming soon properties will soon be on the market, but are not yet available for showings.