$665,935
17305 Beachgrass Alley Winter Garden, FL 34787
For Sale MLS# O6365499
4 beds 3 baths 2,543 sq ft Single Family
Details for 17305 Beachgrass Alley
MLS# O6365499
Description for 17305 Beachgrass Alley, Winter Garden, FL, 34787
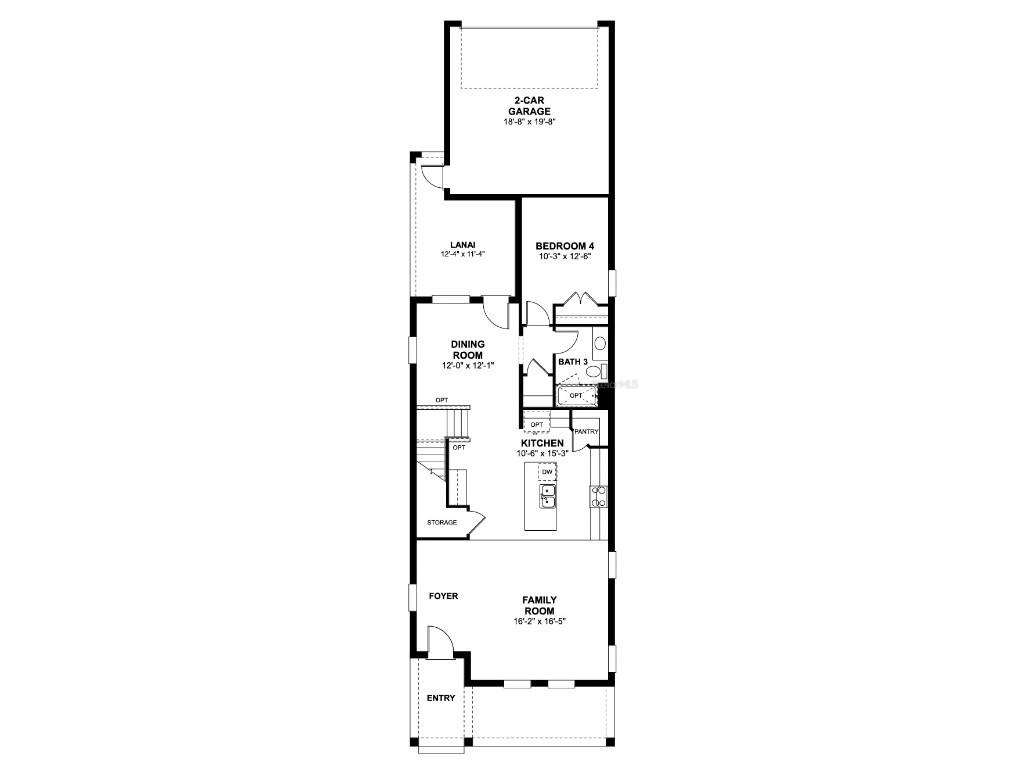
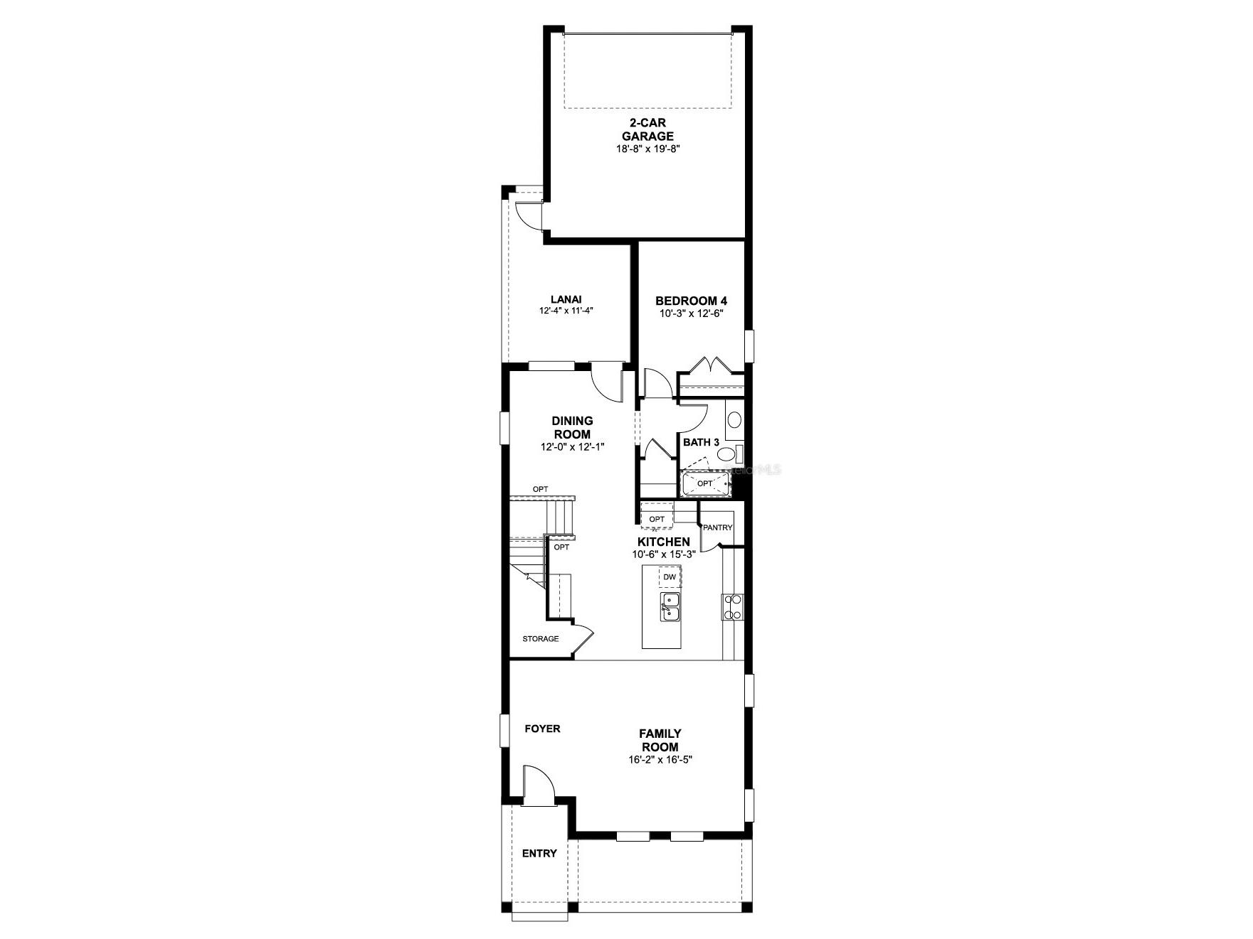
Under Construction. Discover this stunning new construction home at 17305 Beachgrass Alley in Winter Garden. This thoughtfully designed 4-bedroom, 3-bathroom home spans 2,543 square feet and features an open-concept living space perfect for everyday life and entertaining. Step into the foyer and enter the family room, which flows effortlessly into the gorgeous kitchen with an eat-in island and tons of cabinets and countertop space. A small corridor off the dining room lead to the first-floor bedroom and a full bathroom. Your dining room also grants you access to the spacious lanai, where you can then access the 2-car garage. Head upstairs to find the loft, which separates your owner's suite from additional bedrooms. Your private owner's suite features an en-suite owner's bathroom with a dual-sink vanity, a private water closet, and a massive walk-in closet. On the opposite side of the loft you'll find 2 more bedrooms, a full bathroom with a dual-sink vanity, and a conveniently located laundry room.
Listing Information
Property Type: Residential, Single Family Residence
Status: Active
Bedrooms: 4
Bathrooms: 3
Lot Size: 0.12 Acres
Square Feet: 2,543 sq ft
Year Built: 2026
Garage: Yes
Stories: 2 Story
Construction: Cement Siding
Construction Display: New Construction
Subdivision: Lake Star At Ovation
Builder: M/I Homes
Foundation: Block,Slab
County: Orange
Construction Status: Under Construction
School Information
Elementary: Water Spring Elementary
Middle: Water Spring Middle
High: Horizon High School
Room Information
Main Floor
Bedroom 4: 12x10
Dining Room: 12x12
Kitchen: 15x10
Living Room: 17x16
Upper Floor
Bedroom 3: 11x11
Bedroom 2: 11x11
Primary Bedroom: 16x13
Loft: 12x16
Bathrooms
Full Baths: 3
Additonal Room Information
Laundry: Inside, Upper Level
Interior Features
Appliances: Built-In Oven, Range Hood, Microwave, Dishwasher, Cooktop
Flooring: Carpet,Ceramic Tile,Vinyl
Additional Interior Features: Eat-In Kitchen, Loft, Walk-In Closet(s), Tray Ceiling(s), Living/Dining Room, Open Floorplan, Solid Surface Counters
Utilities
Water: Public
Sewer: Private Sewer
Other Utilities: Cable Connected,Electricity Connected,Natural Gas Connected,Water Connected
Cooling: Central Air
Heating: Central
Exterior / Lot Features
Attached Garage: Attached Garage
Garage Spaces: 2
Parking Description: Garage, Garage Door Opener, Covered, driveway, Garage Faces Rear
Roof: Shingle
Pool: Community, Association
Lot View: Park/Greenbelt
Additional Exterior/Lot Features: Corner Lot
Community Features
Community Features: Sidewalks, Pool, Playground, Clubhouse, Dog Park, Gated, Park, Fitness
Security Features: Gated Community
Association Amenities: Park, Fitness Center, Pool, Playground, Clubhouse
HOA Dues Include: Pool(s)
Homeowners Association: Yes
HOA Dues: $172 / Monthly
Driving Directions
From I-4: Take Exit 65 W to Osceola Pkwy and turn right onto W Buena Vista Dr (follow signs for Blizzard Beach/Mini Golf/Coronado Springs/Florida's Turnpike). Turn left onto Western Way. Cross over Avalon Rd and the community will be on your right. From 429: Take FL-429 S/FL-429 Toll S to Western Way. Take Exit 8 and continue on Western Way. Cross over Avalon Rd and the community will be on the right.
Financial Considerations
Terms: Cash,Conventional,FHA,VA Loan
Tax/Property ID: 19-24-27-5312-01-030
Tax Amount: 8328
Tax Year: 2025
A broker reciprocity listing courtesy: KELLER WILLIAMS ADVANTAGE REALTY
Based on information provided by Stellar MLS as distributed by the MLS GRID. Information from the Internet Data Exchange is provided exclusively for consumers’ personal, non-commercial use, and such information may not be used for any purpose other than to identify prospective properties consumers may be interested in purchasing. This data is deemed reliable but is not guaranteed to be accurate by Edina Realty, Inc., or by the MLS. Edina Realty, Inc., is not a multiple listing service (MLS), nor does it offer MLS access.
Copyright 2025 Stellar MLS as distributed by the MLS GRID. All Rights Reserved.
Payment Calculator
Interest rate and annual percentage rate (APR) are based on current market conditions, are for informational purposes only, are subject to change without notice and may be subject to pricing add-ons related to property type, loan amount, loan-to-value, credit score and other variables. Estimated closing costs used in the APR calculation are assumed to be paid by the borrower at closing. If the closing costs are financed, the loan, APR and payment amounts will be higher. If the down payment is less than 20%, mortgage insurance may be required and could increase the monthly payment and APR. Contact us for details. Additional loan programs may be available. Accuracy is not guaranteed, and all products may not be available in all borrower's geographical areas and are based on their individual situation. This is not a credit decision or a commitment to lend.
Sales History & Tax Summary for 17305 Beachgrass Alley
Sales History
| Date | Price | Change |
|---|---|---|
| Currently not available. | ||
Tax Summary
| Tax Year | Estimated Market Value | Total Tax |
|---|---|---|
| Currently not available. | ||
Data powered by ATTOM Data Solutions. Copyright© 2025. Information deemed reliable but not guaranteed.
Schools
Schools nearby 17305 Beachgrass Alley
| Schools in attendance boundaries | Grades | Distance | Rating |
|---|---|---|---|
| Loading... | |||
| Schools nearby | Grades | Distance | Rating |
|---|---|---|---|
| Loading... | |||
Data powered by ATTOM Data Solutions. Copyright© 2025. Information deemed reliable but not guaranteed.
The schools shown represent both the assigned schools and schools by distance based on local school and district attendance boundaries. Attendance boundaries change based on various factors and proximity does not guarantee enrollment eligibility. Please consult your real estate agent and/or the school district to confirm the schools this property is zoned to attend. Information is deemed reliable but not guaranteed.
SchoolDigger ® Rating
The SchoolDigger rating system is a 1-5 scale with 5 as the highest rating. SchoolDigger ranks schools based on test scores supplied by each state's Department of Education. They calculate an average standard score by normalizing and averaging each school's test scores across all tests and grades.
Coming soon properties will soon be on the market, but are not yet available for showings.