$359,995
17434 Boca Vista Road #1006 Punta Gorda, FL 33955
For Sale MLS# C7516064
3 beds 2 baths 1,979 sq ft Townhouse/Twinhome
Details for 17434 Boca Vista Road #1006
MLS# C7516064
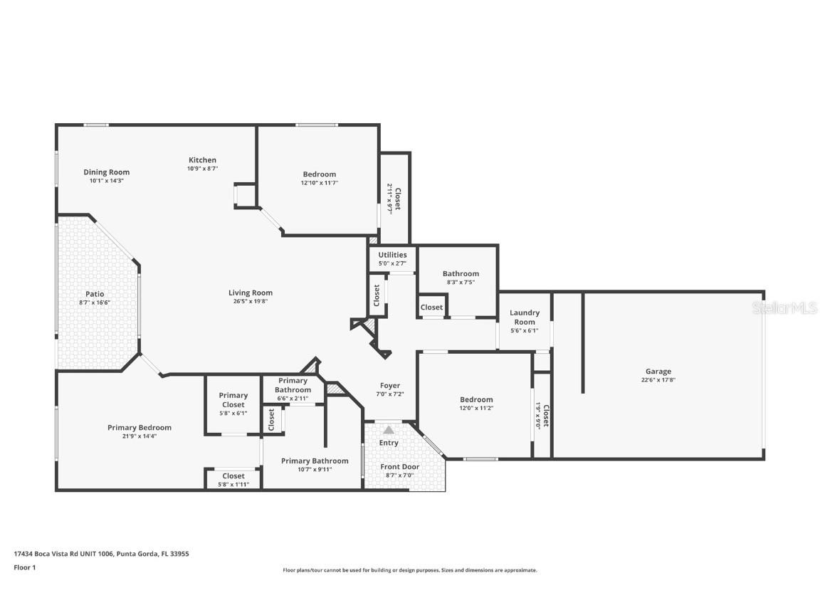
Description for 17434 Boca Vista Road #1006, Punta Gorda, FL, 33955
Experience the Best of Coastal Living in Burnt Store Lakes! Enjoy the ease of maintenance-free living in the desirable Burnt Store Lakes community with this beautifully updated 3-bedroom, 2-bath townhouse. Offering nearly 2,000 square feet of living space, this spacious residence combines the comfort of a single-family home with the convenience of condo life. Flooded with natural light, the open-concept floorplan is perfect for both relaxing and entertaining. Recent upgrades include stylish flooring, a renovated primary bathroom, modernized kitchen, and a refreshed laundry room. Step outside to your nearly private screened-in, heated pool—shared with just seven other units—complete with a newly painted deck and brand-new pool furniture. The community association has also made major improvements, including a new roof, gutters, downspouts, and a new pool screen enclosure. The unit has a 2 car garage with an additional AC unit that keeps that extra space cool and functional. The garage itself has been freshly painted and features a sleek epoxy resin floor. This home, with generous storage, and thoughtful upgrades throughout, delivers low-maintenance living without compromising on space or style. Located just moments from golf courses, a community park, tranquil lakes, and a fantastic marina with restaurant options, this is your opportunity to enjoy the laid-back Punta Gorda lifestyle at its finest. Don’t miss your chance—schedule a private showing today!
Listing Information
Property Type: Residential, Townhouse
Status: Active
Bedrooms: 3
Bathrooms: 2
Lot Size: 1 Acres
Square Feet: 1,979 sq ft
Year Built: 2006
Garage: Yes
Stories: 1 Story
Construction: Block
Subdivision: Boca Vista Burnt Store Lakes
Foundation: Slab
County: Charlotte
Room Information
Main Floor
Bedroom 2: 12x13
Bedroom 1: 12x13
Primary Bathroom:
Primary Bedroom: 13x16
Dining Room: 8x9
Dinette: 9x9
Kitchen: 10x12
Great Room: 16x18
Bathrooms
Full Baths: 2
Additonal Room Information
Laundry: Inside
Interior Features
Appliances: Electric Water Heater, Microwave, Range, Refrigerator, Washer, Dishwasher, Disposal, Dryer
Flooring: Bamboo,Ceramic Tile
Doors/Windows: Window Treatments
Additional Interior Features: Walk-In Closet(s), Window Treatments, High Ceilings, Living/Dining Room, Ceiling Fan(s), Open Floorplan, Kitchen/Family Room Combo, Main Level Primary, Crown Molding
Utilities
Sewer: Public Sewer
Other Utilities: Cable Available,Electricity Connected,High Speed Internet Available,Municipal Utilities,Phone Available,Sewer Connected,Water Connected,Water Not Available
Cooling: Ceiling Fan(s), Central Air
Heating: Electric, Heat Pump
Exterior / Lot Features
Attached Garage: Attached Garage
Garage Spaces: 2
Roof: Tile
Pool: Screen Enclosure, Community, Association, Heated
Additional Exterior/Lot Features: Rain Gutters, Storm/Security Shutters, Balcony, Lighting, Balcony
Community Features
Community Features: Sidewalks, Pool, Playground, Park, Golf Carts OK
Association Amenities: Pool
HOA Dues Include: Water, Sewer, Recreation Facilities, Maintenance Grounds, Reserve Fund, Maintenance Structure, Pool(s)
Homeowners Association: Yes
HOA Dues: $1,840 / Quarterly
Driving Directions
US 41...Turn onto Burnt Store Rd. Turn Right onto Vincent Road (8.7 Miles). Continue on Vincent 1.3 miles and turn right onto Acapulco Rd. Boca Vista is .2 miles on Right. Unit is in left hand building - center walkway. #1006 (434C) is on Right.
Financial Considerations
Tax/Property ID: 422236876003
Tax Amount: 5349.54
Tax Year: 2024
A broker reciprocity listing courtesy: EXP REALTY LLC
Based on information provided by Stellar MLS as distributed by the MLS GRID. Information from the Internet Data Exchange is provided exclusively for consumers’ personal, non-commercial use, and such information may not be used for any purpose other than to identify prospective properties consumers may be interested in purchasing. This data is deemed reliable but is not guaranteed to be accurate by Edina Realty, Inc., or by the MLS. Edina Realty, Inc., is not a multiple listing service (MLS), nor does it offer MLS access.
Copyright 2025 Stellar MLS as distributed by the MLS GRID. All Rights Reserved.
Payment Calculator
Interest rate and annual percentage rate (APR) are based on current market conditions, are for informational purposes only, are subject to change without notice and may be subject to pricing add-ons related to property type, loan amount, loan-to-value, credit score and other variables. Estimated closing costs used in the APR calculation are assumed to be paid by the borrower at closing. If the closing costs are financed, the loan, APR and payment amounts will be higher. If the down payment is less than 20%, mortgage insurance may be required and could increase the monthly payment and APR. Contact us for details. Additional loan programs may be available. Accuracy is not guaranteed, and all products may not be available in all borrower's geographical areas and are based on their individual situation. This is not a credit decision or a commitment to lend.
Sales History & Tax Summary for 17434 Boca Vista Road #1006
Sales History
| Date | Price | Change |
|---|---|---|
| Currently not available. | ||
Tax Summary
| Tax Year | Estimated Market Value | Total Tax |
|---|---|---|
| Currently not available. | ||
Data powered by ATTOM Data Solutions. Copyright© 2025. Information deemed reliable but not guaranteed.
Schools
Schools nearby 17434 Boca Vista Road #1006
| Schools in attendance boundaries | Grades | Distance | Rating |
|---|---|---|---|
| Loading... | |||
| Schools nearby | Grades | Distance | Rating |
|---|---|---|---|
| Loading... | |||
Data powered by ATTOM Data Solutions. Copyright© 2025. Information deemed reliable but not guaranteed.
The schools shown represent both the assigned schools and schools by distance based on local school and district attendance boundaries. Attendance boundaries change based on various factors and proximity does not guarantee enrollment eligibility. Please consult your real estate agent and/or the school district to confirm the schools this property is zoned to attend. Information is deemed reliable but not guaranteed.
SchoolDigger ® Rating
The SchoolDigger rating system is a 1-5 scale with 5 as the highest rating. SchoolDigger ranks schools based on test scores supplied by each state's Department of Education. They calculate an average standard score by normalizing and averaging each school's test scores across all tests and grades.
Coming soon properties will soon be on the market, but are not yet available for showings.