$264,995
17475 Tavern Road Brooksville, FL 34604
For Sale MLS# O6372172
3 beds 2 baths 1,398 sq ft Single Family
Details for 17475 Tavern Road
MLS# O6372172
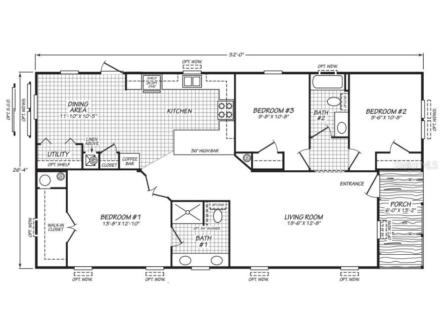
Description for 17475 Tavern Road, Brooksville, FL, 34604
One or more photo(s) has been virtually staged. Pre-Construction. To be built. Brand-new construction on private land under $280,000 — something almost impossible to find in today’s market. PROVIDING $5,000 BUYER CONCESSIONS. Currently under construction this brand-new 3-bedroom, 2-bath Cavco Economy home delivers what most buyers are searching for and rarely find: new construction, no renovations, and no compromises. Set on a 0.24-acre lot and featuring a welcoming covered front porch, the home blends modern efficiency with timeless curb appeal. Built by Cavco Industries, the parent company of Fleetwood Homes, this residence is constructed in a controlled factory environment for consistent quality, durability, and compliance with federal HUD standards. The property will include a new well, new septic, and brand-new systems throughout, all backed by a manufacturer’s limited warranty. No deferred maintenance. No surprises. Just a fresh start built from the ground up. Photos may include renderings or similar completed homes. Construction is in progress; completion forthcoming.
Listing Information
Property Type: Residential, Manufactured Home
Status: Active
Bedrooms: 3
Bathrooms: 2
Lot Size: 0.22 Acres
Square Feet: 1,398 sq ft
Year Built: 2026
Stories: 1 Story
Construction: Wood Frame
Construction Display: New Construction
Subdivision: Garden Grove
Builder: Cavco
Foundation: Other
County: Hernando
Room Information
Main Floor
Porch: 13x6
Dining Room: 13x12
Kitchen: 13x14.5
Bedroom 3: 13x12
Bedroom 2: 13x12
Bathroom 1: 10x9
Primary Bedroom:
Living Room: 13x22
Bathrooms
Full Baths: 2
Additonal Room Information
Laundry: Laundry Closet
Interior Features
Appliances: Convection Oven, Range Hood, Electric Water Heater, Microwave, Refrigerator, Dishwasher, Disposal
Flooring: Laminate
Additional Interior Features: Ceiling Fan(s), Built-in Features, Crown Molding, Wood Cabinets
Utilities
Water: Well
Sewer: Septic Tank
Other Utilities: Cable Available,Electricity Connected,Water Connected
Cooling: Ceiling Fan(s), Central Air
Heating: Electric, Central
Exterior / Lot Features
Roof: Shingle
Additional Exterior/Lot Features: Awning(s), Cleared
Driving Directions
From getting off the 589: Head toward Spring Hill Dr Make a U-turn Turn right onto US-41 S Slight left toward Nicholas Ave Turn left onto Nicholas Ave Turn right onto Tavern Rd
Financial Considerations
Terms: Cash,Conventional,FHA,VA Loan
Tax/Property ID: R17-223-19-1780-0830-0180
Tax Amount: 846
Tax Year: 2025
A broker reciprocity listing courtesy: SAND DOLLAR REALTY GROUP INC
Based on information provided by Stellar MLS as distributed by the MLS GRID. Information from the Internet Data Exchange is provided exclusively for consumers’ personal, non-commercial use, and such information may not be used for any purpose other than to identify prospective properties consumers may be interested in purchasing. This data is deemed reliable but is not guaranteed to be accurate by Edina Realty, Inc., or by the MLS. Edina Realty, Inc., is not a multiple listing service (MLS), nor does it offer MLS access.
Copyright 2026 Stellar MLS as distributed by the MLS GRID. All Rights Reserved.
Payment Calculator
Interest rate and annual percentage rate (APR) are based on current market conditions, are for informational purposes only, are subject to change without notice and may be subject to pricing add-ons related to property type, loan amount, loan-to-value, credit score and other variables. Estimated closing costs used in the APR calculation are assumed to be paid by the borrower at closing. If the closing costs are financed, the loan, APR and payment amounts will be higher. If the down payment is less than 20%, mortgage insurance may be required and could increase the monthly payment and APR. Contact us for details. Additional loan programs may be available. Accuracy is not guaranteed, and all products may not be available in all borrower's geographical areas and are based on their individual situation. This is not a credit decision or a commitment to lend.
Sales History & Tax Summary for 17475 Tavern Road
Sales History
| Date | Price | |
|---|---|---|
| Currently not available. | ||
Tax Summary
| Tax Year | Estimated Market Value | Total Tax |
|---|---|---|
| Currently not available. | ||
Data powered by ATTOM Data Solutions. Copyright© 2026. Information deemed reliable but not guaranteed.
Schools
Schools nearby 17475 Tavern Road
| Schools in attendance boundaries | Grades | Distance | Rating |
|---|---|---|---|
| Loading... | |||
| Schools nearby | Grades | Distance | Rating |
|---|---|---|---|
| Loading... | |||
Data powered by ATTOM Data Solutions. Copyright© 2026. Information deemed reliable but not guaranteed.
The schools shown represent both the assigned schools and schools by distance based on local school and district attendance boundaries. Attendance boundaries change based on various factors and proximity does not guarantee enrollment eligibility. Please consult your real estate agent and/or the school district to confirm the schools this property is zoned to attend. Information is deemed reliable but not guaranteed.
SchoolDigger ® Rating
The SchoolDigger rating system is a 1-5 scale with 5 as the highest rating. SchoolDigger ranks schools based on test scores supplied by each state's Department of Education. They calculate an average standard score by normalizing and averaging each school's test scores across all tests and grades.
Coming soon properties will soon be on the market, but are not yet available for showings.