17496 Spanish Oak Loop Land O Lakes, FL 34638
Pending MLS# TB8467577
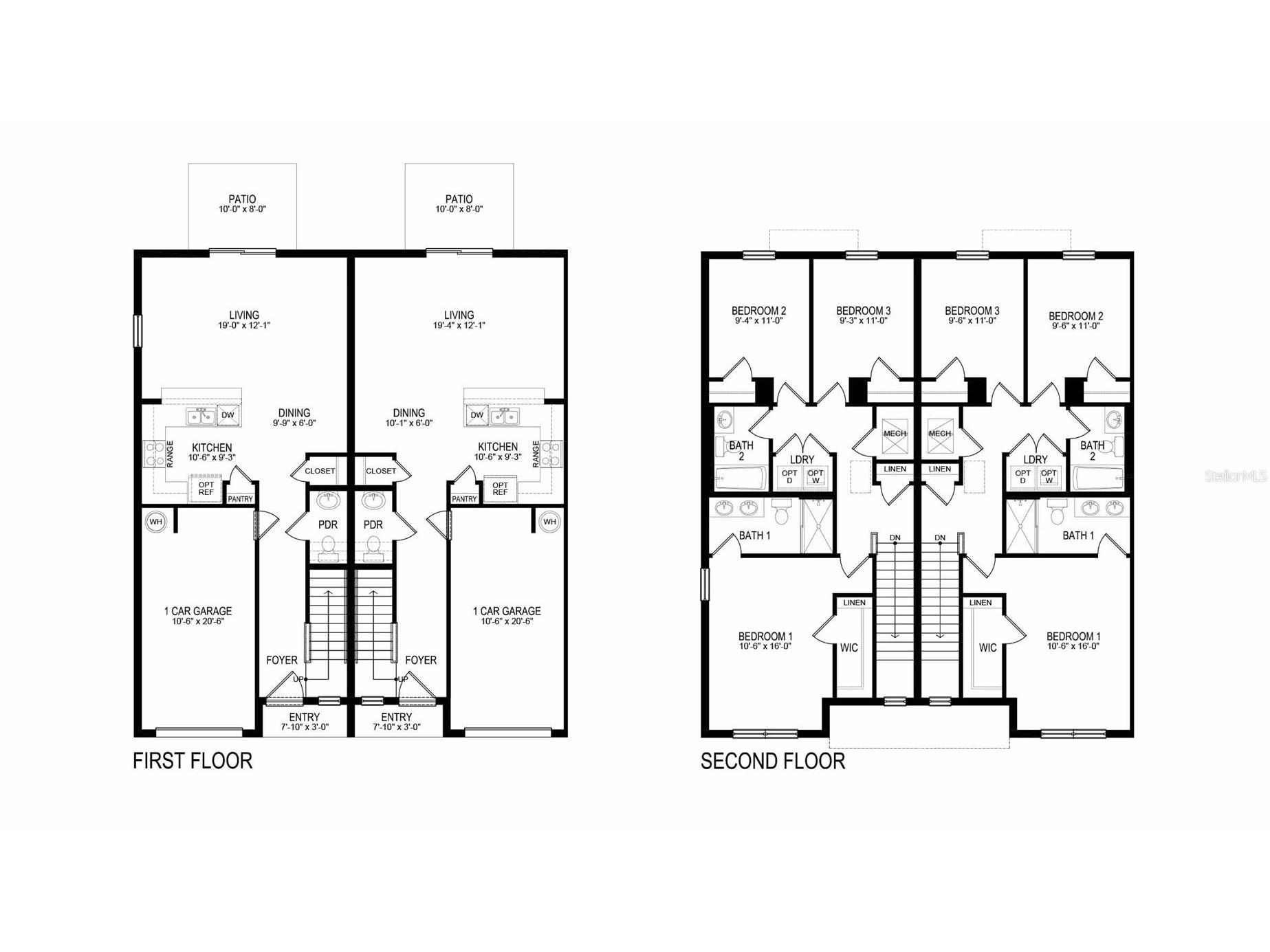
3 beds 3 baths 1,464 sq ft Townhouse/Twinhome
Details for 17496 Spanish Oak Loop
MLS# TB8467577
Description for 17496 Spanish Oak Loop, Land O Lakes, FL, 34638
Under Construction. The builder is offering buyers up to $25,000 towards closing costs with the use of a preferred lender and title company. Westwood brings new homes to Land O’ Lakes and it is just minutes from the Suncoast Parkway. The community, located in a very desirable area, offers a pool, cabana, playground, dog park, passive park, and paved trails. The Tampa airport and downtown Tampa are both just a short 30-minute drive away. The schools are all excellently rated and not far from the community. Westwood will feature our townhomes - thoughtfully designed, open-concept floor plans to suit every lifestyle. Each home is built with durable concrete block construction on the first and second stories and includes Smart Home System for seamless modern living. Pictures, photographs, colors, features, and sizes are for illustration purposes only and will vary from homes as built. Home and community information, including pricing, included features, terms, availability, and amenities, are subject to change and prior sale at any time without notice or obligation. Materials may vary based on availability.
Listing Information
Property Type: Residential, Townhouse
Status: Pending
Bedrooms: 3
Bathrooms: 3
Square Feet: 1,464 sq ft
Year Built: 2026
Garage: Yes
Stories: 2 Story
Construction: Block,Stucco
Construction Display: New Construction
Subdivision: Salem Townhomes
Builder: D.R. Horton
Foundation: Slab
County: Pasco
Construction Status: Under Construction
School Information
Elementary: Wesley Chapel Elementary-Po
Middle: Thomas E Weightman Middle-Po
High: Wesley Chapel High-Po
Room Information
Main Floor
Kitchen: 9x10
Great Room: 12x19
Upper Floor
Primary Bedroom: 16x11
Bathrooms
Full Baths: 2
1/2 Baths: 1
Additonal Room Information
Laundry: Laundry Room
Interior Features
Appliances: Electric Water Heater, Dishwasher, Microwave, Refrigerator, Washer
Flooring: Carpet,Luxury Vinyl
Doors/Windows: Low-Emissivity Windows, Double Pane Windows, Blinds
Additional Interior Features: Open Floorplan
Utilities
Water: Public
Sewer: Public Sewer
Other Utilities: Municipal Utilities
Cooling: Central Air
Heating: Central, Heat Pump
Exterior / Lot Features
Attached Garage: Attached Garage
Garage Spaces: 1
Parking Description: Parking Pad
Roof: Shingle
Pool: Community, Association
Additional Exterior/Lot Features: Sprinkler/Irrigation
Community Features
Community Features: Pool, Playground, Park
Association Amenities: Playground, Pool, Clubhouse
HOA Dues Include: Maintenance Grounds
Homeowners Association: Yes
HOA Dues: $58 / Monthly
Driving Directions
Take I-75 Exit 275 toward Land O’Lakes/ Tarpon Springs. Keep Left at the fork to continue toward FL-56 West. Continue onto FL-54 for about 8 miles, turn right onto Ballantrae Blvd., Left onto Bud Bexley Pkwy/Tower RD, then Left on Hazel Bay Rd.
Financial Considerations
Tax/Property ID: 20 26 18 0130 00000 3080
Tax Year: 2025
A broker reciprocity listing courtesy: D R HORTON REALTY OF TAMPA LLC
Based on information provided by Stellar MLS as distributed by the MLS GRID. Information from the Internet Data Exchange is provided exclusively for consumers’ personal, non-commercial use, and such information may not be used for any purpose other than to identify prospective properties consumers may be interested in purchasing. This data is deemed reliable but is not guaranteed to be accurate by Edina Realty, Inc., or by the MLS. Edina Realty, Inc., is not a multiple listing service (MLS), nor does it offer MLS access.
Copyright 2026 Stellar MLS as distributed by the MLS GRID. All Rights Reserved.
Sales History & Tax Summary for 17496 Spanish Oak Loop
Sales History
| Date | Price | |
|---|---|---|
| Currently not available. | ||
Tax Summary
| Tax Year | Estimated Market Value | Total Tax |
|---|---|---|
| Currently not available. | ||
Data powered by ATTOM Data Solutions. Copyright© 2026. Information deemed reliable but not guaranteed.
Schools
Schools nearby 17496 Spanish Oak Loop
| Schools in attendance boundaries | Grades | Distance | Rating |
|---|---|---|---|
| Loading... | |||
| Schools nearby | Grades | Distance | Rating |
|---|---|---|---|
| Loading... | |||
Data powered by ATTOM Data Solutions. Copyright© 2026. Information deemed reliable but not guaranteed.
The schools shown represent both the assigned schools and schools by distance based on local school and district attendance boundaries. Attendance boundaries change based on various factors and proximity does not guarantee enrollment eligibility. Please consult your real estate agent and/or the school district to confirm the schools this property is zoned to attend. Information is deemed reliable but not guaranteed.
SchoolDigger ® Rating
The SchoolDigger rating system is a 1-5 scale with 5 as the highest rating. SchoolDigger ranks schools based on test scores supplied by each state's Department of Education. They calculate an average standard score by normalizing and averaging each school's test scores across all tests and grades.
Coming soon properties will soon be on the market, but are not yet available for showings.