175 Pine Street Homosassa, FL 34446
For Sale MLS# O6353073
4 beds 2 baths 2,543 sq ft Single Family
Details for 175 Pine Street
MLS# O6353073
Description for 175 Pine Street, Homosassa, FL, 34446
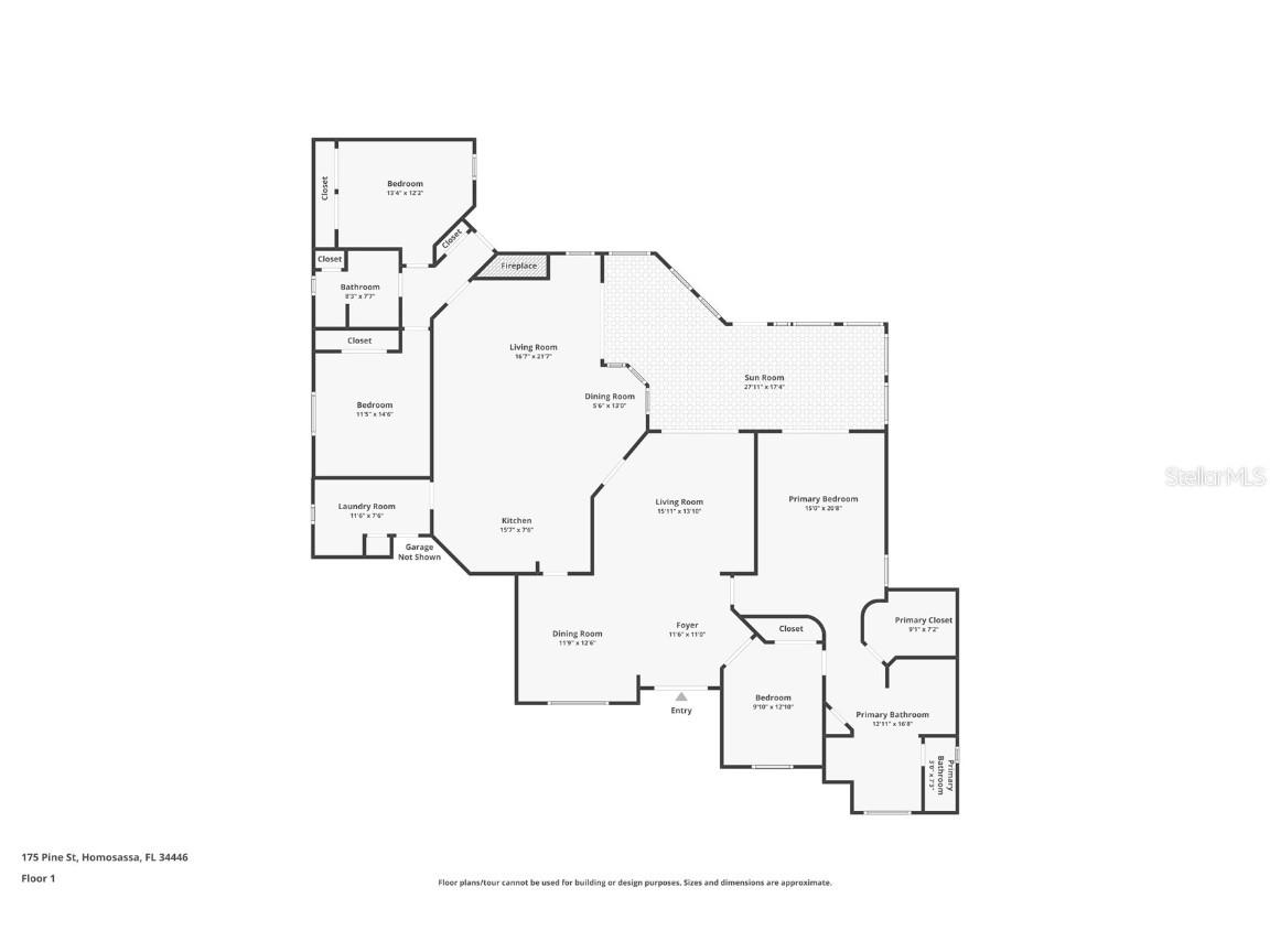
Welcome to this stunning 4-bedroom, 2-bathroom residence, perfectly situated on over a quarter acre in the highly desirable community of Sugarmill Woods. This home offers the perfect blend of privacy, elegance, and modern comfort. Step through the double-door entry and be greeted by soaring 11–14’ ceilings, expansive sliding glass doors, and abundant natural light that creates a bright, airy ambiance throughout. The open-concept floor plan showcases **luxury flooring—no carpet anywhere—**combining style with easy maintenance. The spacious family room features a cozy fireplace and flows seamlessly into the updated kitchen and Florida Room, making this home ideal for both entertaining and everyday living. The chef’s kitchen is a true centerpiece, featuring granite countertops with seating, newer stainless steel appliances, smart-touch faucet, slide-out cabinetry drawers, and a built-in pantry. The formal living and dining rooms offer additional gathering spaces, adding versatility and elegance to the home’s layout. The primary suite is a luxurious retreat, complete with a tray ceiling, private access to the Florida Room, and a spa-inspired ensuite bath with a soaking tub, walk-in shower, dual vanities, makeup area, and a custom walk-in closet with built-ins. The fourth bedroom, connected to the primary bath, provides the flexibility to serve as a home office, nursery, guest suite, or even a dream dressing room. Two additional bedrooms are privately located on the opposite side of the home, sharing a beautifully updated full bath with a glass-enclosed tub/shower and direct backyard access—perfect for pool or patio days. A true highlight of this home is the expansive Florida Room—offering over 400 square feet of insulated, air-conditioned space with high-wind-rated floor-to-ceiling windows and luxury vinyl plank floors. Enjoy serene garden views year-round in this cool, comfortable indoor/outdoor retreat—perfect for entertaining or relaxing with your morning coffee. Additional features include a dedicated laundry room with custom cabinetry, stainless steel sink, and ample counter space; a fully fenced backyard with lush, fresh landscaping; a fully irrigated yard powered by a private well (no water bill!); and a two-car garage with built-in storage and natural light. With its thoughtful design, premium finishes, and major upgrades throughout, this remarkable home is truly turnkey and ready for its next owner to experience the best of Florida living in one of the area’s most sought-after communities.
Listing Information
Property Type: Residential, Single Family Residence
Status: Active
Bedrooms: 4
Bathrooms: 2
Lot Size: 0.28 Acres
Square Feet: 2,543 sq ft
Year Built: 1992
Garage: Yes
Stories: 1 Story
Construction: Block
Subdivision: Sugarmill Woods Cypress Village
Foundation: Slab
County: Citrus
Room Information
Main Floor
Primary Bedroom:
Living Room:
Kitchen:
Bathrooms
Full Baths: 2
Additonal Room Information
Laundry: Laundry Room, Washer Hookup, Electric Dryer Hookup
Interior Features
Appliances: Dishwasher, Microwave, Range
Flooring: Vinyl
Additional Interior Features: Ceiling Fan(s)
Utilities
Water: Public
Sewer: Public Sewer
Other Utilities: Municipal Utilities
Cooling: Central Air, Ceiling Fan(s)
Heating: Central
Exterior / Lot Features
Attached Garage: Attached Garage
Garage Spaces: 2
Roof: Shingle
Community Features
Homeowners Association: Yes
HOA Dues: $135 / Annually
Driving Directions
FL-589 Toll/Suncoast Pkwy. Take exit 55 US 98 toward Ponce de Leon Blvd. Use the left lane to take the ramp to US-98 N/W Ponce De Leon Blvd. Head N/W on Ponce De Leon Blvd. Turn right onto W Oak Park Blvd. Turn left onto Gatewood Dr. Turn right onto Pine St, home will be about ½ mile on the right.
Financial Considerations
Terms: Cash,Conventional,VA Loan
Tax/Property ID: 18E-20S-13-0010-00970-0400
Tax Amount: 3515
Tax Year: 2024
A broker reciprocity listing courtesy: MARK SPAIN REAL ESTATE
Based on information provided by Stellar MLS as distributed by the MLS GRID. Information from the Internet Data Exchange is provided exclusively for consumers’ personal, non-commercial use, and such information may not be used for any purpose other than to identify prospective properties consumers may be interested in purchasing. This data is deemed reliable but is not guaranteed to be accurate by Edina Realty, Inc., or by the MLS. Edina Realty, Inc., is not a multiple listing service (MLS), nor does it offer MLS access.
Copyright 2025 Stellar MLS as distributed by the MLS GRID. All Rights Reserved.
Payment Calculator
Interest rate and annual percentage rate (APR) are based on current market conditions, are for informational purposes only, are subject to change without notice and may be subject to pricing add-ons related to property type, loan amount, loan-to-value, credit score and other variables. Estimated closing costs used in the APR calculation are assumed to be paid by the borrower at closing. If the closing costs are financed, the loan, APR and payment amounts will be higher. If the down payment is less than 20%, mortgage insurance may be required and could increase the monthly payment and APR. Contact us for details. Additional loan programs may be available. Accuracy is not guaranteed, and all products may not be available in all borrower's geographical areas and are based on their individual situation. This is not a credit decision or a commitment to lend.
Sales History & Tax Summary for 175 Pine Street
Sales History
| Date | Price | Change |
|---|---|---|
| Currently not available. | ||
Tax Summary
| Tax Year | Estimated Market Value | Total Tax |
|---|---|---|
| Currently not available. | ||
Data powered by ATTOM Data Solutions. Copyright© 2025. Information deemed reliable but not guaranteed.
Schools
Schools nearby 175 Pine Street
| Schools in attendance boundaries | Grades | Distance | Rating |
|---|---|---|---|
| Loading... | |||
| Schools nearby | Grades | Distance | Rating |
|---|---|---|---|
| Loading... | |||
Data powered by ATTOM Data Solutions. Copyright© 2025. Information deemed reliable but not guaranteed.
The schools shown represent both the assigned schools and schools by distance based on local school and district attendance boundaries. Attendance boundaries change based on various factors and proximity does not guarantee enrollment eligibility. Please consult your real estate agent and/or the school district to confirm the schools this property is zoned to attend. Information is deemed reliable but not guaranteed.
SchoolDigger ® Rating
The SchoolDigger rating system is a 1-5 scale with 5 as the highest rating. SchoolDigger ranks schools based on test scores supplied by each state's Department of Education. They calculate an average standard score by normalizing and averaging each school's test scores across all tests and grades.
Coming soon properties will soon be on the market, but are not yet available for showings.