$749,500
1760 Edgewater Drive Mount Dora, FL 32757
For Sale MLS# G5111131
4 beds 3 baths 3,141 sq ft Single Family
Details for 1760 Edgewater Drive
MLS# G5111131
Description for 1760 Edgewater Drive, Mount Dora, FL, 32757
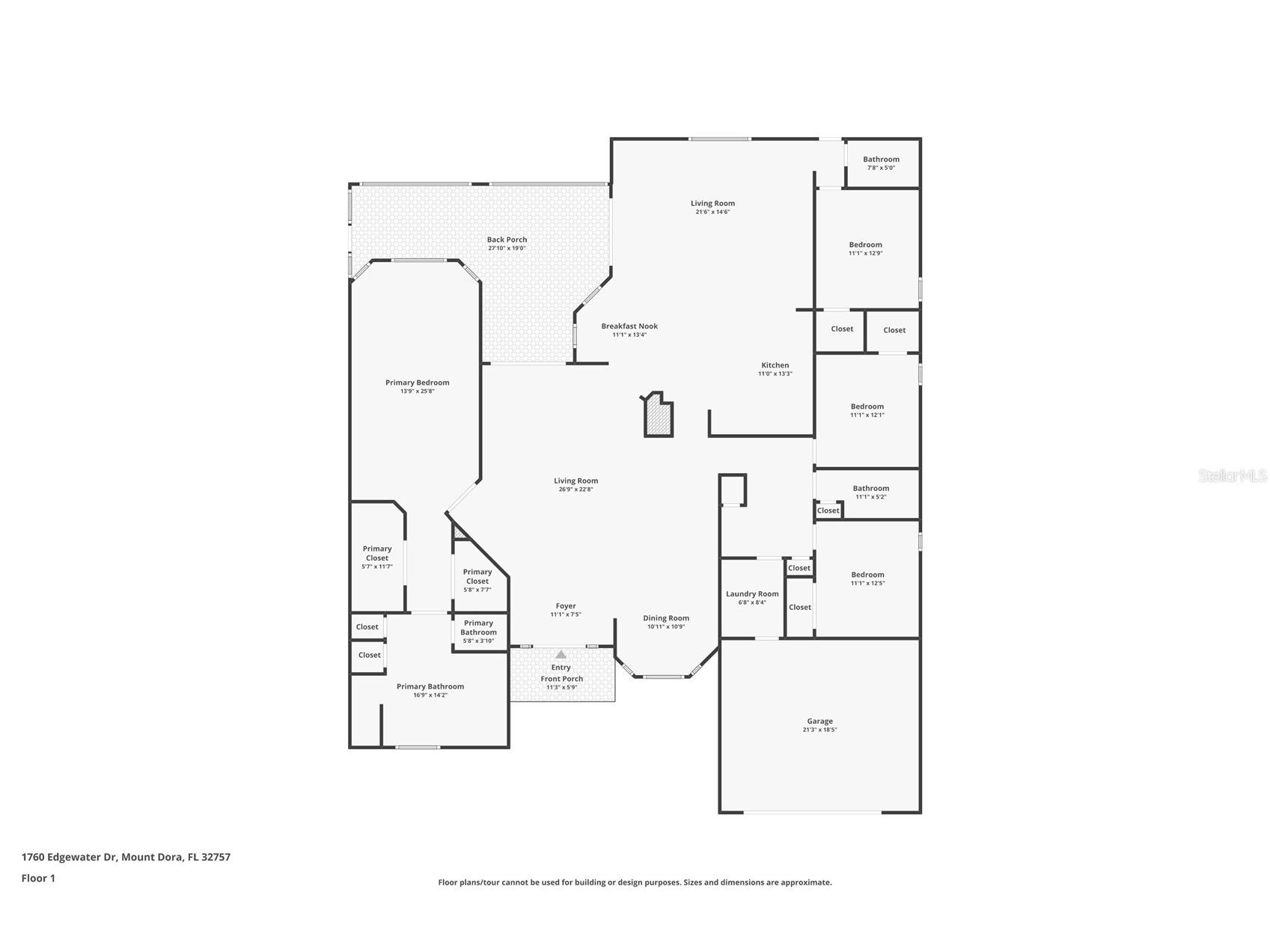
Welcome to refined living in the highly sought-after Edgewater neighborhood of the Country Club of Mount Dora. This custom-built golf course residence offers 3,141 square feet of beautifully updated living space, perfectly blending elegance, comfort, and modern design. Completely renovated in 2021, this four-bedroom, three-full-bathroom home showcases a thoughtfully designed open floor plan with a seamless flow between living spaces. Enjoy both formal living and dining rooms, ideal for entertaining, along with a spacious family room and a versatile flex room with built-in desk, suitable for a small office or sitting room. The heart of the home is the stunning eat-in kitchen, featuring spectacular custom granite countertops, stainless steel appliances, and ample cabinetry—perfect for both casual dining and hosting gatherings. Please click on Virtual Tour link 2 to view the 3D interactive tour. The expansive primary suite serves as a true retreat, offering two walk-in closets and a luxurious en-suite bathroom designed for relaxation and functionality. A split-design floor plan provides bedrooms that offer comfort and privacy for family and guests. Step outside to the large screened-in lanai, where breathtaking views of the golf course and tranquil pond create the perfect backdrop for morning coffee or evening unwinding. Finishes throughout include engineered hardwood, tile, and plush carpeting, adding warmth and sophistication to every room. Residents of this vibrant community can enjoy access to exceptional amenities through club membership, including golf, swimming, tennis, pickleball, and an on-site restaurant. Conveniently located just a short drive from downtown Mount Dora, you’ll have easy access to charming shops, dining, and year-round festivals and events. New roof in 2021, HVAC in 2015, along with new plantation shutters in the dining room and primary bathroom. The house was fully painted inside and out in 2021 Irrigation system fully updated in 2026. This is a rare opportunity to own a move-in-ready luxury home in one of Central Florida's most desirable communities.
Listing Information
Property Type: Residential, Single Family Residence
Status: Active
Bedrooms: 4
Bathrooms: 3
Lot Size: 0.20 Acres
Square Feet: 3,141 sq ft
Year Built: 2000
Garage: Yes
Stories: 1 Story
Construction: Block,Stucco
Subdivision: Mount Dora Country Club Mount Dora Unit 02
Foundation: Slab
County: Lake
Room Information
Main Floor
Porch: 26x17
Family Room: 15x22
Dinette: 11x13
Kitchen: 14x14
Dining Room: 10.9x10
Living Room: 22.8x26.9
Foyer: 7x11
Laundry: 8.4x6.8
Bedroom 4: 11x11
Bathroom 3: 8x5
Bedroom 3: 12x11
Bathroom 2: 11x5
Bedroom 2: 11x11
Primary Bathroom: 14x13
Primary Bedroom: 25x14
Bathrooms
Full Baths: 3
Additonal Room Information
Laundry: Laundry Room, Washer Hookup, Inside, Electric Dryer Hookup
Interior Features
Appliances: Electric Water Heater, Microwave, Washer, Range, Refrigerator, Dishwasher, Disposal, Dryer
Flooring: Ceramic Tile,Engineered Hardwood
Doors/Windows: Blinds, Double Pane Windows, Window Treatments, Skylight(s), Shutters
Fireplaces: Living Room, Electric, Decorative
Additional Interior Features: Eat-In Kitchen, Walk-In Closet(s), Ceiling Fan(s), Window Treatments, High Ceilings, Skylights, Built-in Features, Cathedral Ceiling(s), Main Level Primary, Separate/Formal Dining Room, Open Floorplan, Separate/Formal Living Room, Stone Counters, Wood Cabinets
Utilities
Water: Public
Sewer: Public Sewer
Other Utilities: Cable Available,Electricity Connected,High Speed Internet Available,Sewer Connected,Underground Utilities,Water Connected
Cooling: Ceiling Fan(s), Central Air
Heating: Electric
Exterior / Lot Features
Attached Garage: Attached Garage
Garage Spaces: 2
Parking Description: Garage Door Opener, Garage, driveway, on street
Roof: Shingle
Pool: Community, Association
Lot View: Golf Course,Pond,Water
Lot Dimensions: 79x
Additional Exterior/Lot Features: Rain Gutters, Sprinkler/Irrigation, Screened, Covered, Patio, On Golf Course, Landscaped
Community Features
Community Features: Pool, Sidewalks, Tennis Court(s), Clubhouse, Golf, Street Lights, Park, Restaurant, Golf Carts OK
Association Amenities: Pickleball, Golf Course, Tennis Court(s), Clubhouse, Pool
HOA Dues Include: Taxes, Security, Common Areas
Homeowners Association: Yes
HOA Dues: $83 / Monthly
Driving Directions
From 441 go through the Main entrance of the Country Club of Mount Dora, take the first left on to Edgewater Drive, the home will be located on the right.
Financial Considerations
Terms: Cash,Conventional
Tax/Property ID: 20-19-27-1505-000-14500
Tax Amount: 11277.84
Tax Year: 2025
A broker reciprocity listing courtesy: DAVE LOWE REALTY, INC.
Based on information provided by Stellar MLS as distributed by the MLS GRID. Information from the Internet Data Exchange is provided exclusively for consumers’ personal, non-commercial use, and such information may not be used for any purpose other than to identify prospective properties consumers may be interested in purchasing. This data is deemed reliable but is not guaranteed to be accurate by Edina Realty, Inc., or by the MLS. Edina Realty, Inc., is not a multiple listing service (MLS), nor does it offer MLS access.
Copyright 2026 Stellar MLS as distributed by the MLS GRID. All Rights Reserved.
Payment Calculator
Interest rate and annual percentage rate (APR) are based on current market conditions, are for informational purposes only, are subject to change without notice and may be subject to pricing add-ons related to property type, loan amount, loan-to-value, credit score and other variables. Estimated closing costs used in the APR calculation are assumed to be paid by the borrower at closing. If the closing costs are financed, the loan, APR and payment amounts will be higher. If the down payment is less than 20%, mortgage insurance may be required and could increase the monthly payment and APR. Contact us for details. Additional loan programs may be available. Accuracy is not guaranteed, and all products may not be available in all borrower's geographical areas and are based on their individual situation. This is not a credit decision or a commitment to lend.
Sales History & Tax Summary for 1760 Edgewater Drive
Sales History
| Date | Price | |
|---|---|---|
| Currently not available. | ||
Tax Summary
| Tax Year | Estimated Market Value | Total Tax |
|---|---|---|
| Currently not available. | ||
Data powered by ATTOM Data Solutions. Copyright© 2026. Information deemed reliable but not guaranteed.
Schools
Schools nearby 1760 Edgewater Drive
| Schools in attendance boundaries | Grades | Distance | Rating |
|---|---|---|---|
| Loading... | |||
| Schools nearby | Grades | Distance | Rating |
|---|---|---|---|
| Loading... | |||
Data powered by ATTOM Data Solutions. Copyright© 2026. Information deemed reliable but not guaranteed.
The schools shown represent both the assigned schools and schools by distance based on local school and district attendance boundaries. Attendance boundaries change based on various factors and proximity does not guarantee enrollment eligibility. Please consult your real estate agent and/or the school district to confirm the schools this property is zoned to attend. Information is deemed reliable but not guaranteed.
SchoolDigger ® Rating
The SchoolDigger rating system is a 1-5 scale with 5 as the highest rating. SchoolDigger ranks schools based on test scores supplied by each state's Department of Education. They calculate an average standard score by normalizing and averaging each school's test scores across all tests and grades.
Coming soon properties will soon be on the market, but are not yet available for showings.