1768 Henin Circle Tavares, FL 32778
For Sale MLS# G5108901
3 beds 2 baths 1,690 sq ft Single Family
Details for 1768 Henin Circle
MLS# G5108901
Description for 1768 Henin Circle, Tavares, FL, 32778
Checkout this meticulously maintained home in the heart of Tavares, Florida perfect for those commuting to downtown Tavares and the Lake County Courthouse! Tavares is a charming community known for lakeside living, outdoor recreation, and convenient access to local amenities. This 2022-built smart home offers thoughtful upgrades, modern features, and the perfect blend of comfort and style. This home is conveniently located off of David Walker Dr. David Walker Dr allows easy access between Downtown Tavares and Old Hwy 441 and Hwy 441. Step inside through the inviting enclosed entryway into a bright and open floor plan with smart home technology and contemporary finishes throughout. With 3 bedrooms and 2 baths, this home was designed with both everyday living and entertaining in mind. Outside, enjoy a beautifully landscaped backyard oasis — completely fenced for privacy with a lush hedge and a charming corner flower garden. Dual side gates give you easy access to both sides of the property, ideal for pets, projects, or outdoor gatherings. This peaceful backyard space is perfect for relaxing evenings or weekend barbecues. Location is truly a highlight. You’ll be just minutes from everyday conveniences including shopping, restaurants, the YMCA, the hospital, and the Lake County Courthouse in downtown Tavares, giving you effortless access to government offices and services. Living in Tavares means enjoying small-town charm with big lifestyle perks — proximity to lakes, parks, community events, and a growing local scene make this a desirable spot for buyers seeking both convenience and tranquility. This move-in-ready home combines newer construction with a prime Lake County location — schedule your private tour today!
Listing Information
Property Type: Residential, Single Family Residence
Status: Active
Bedrooms: 3
Bathrooms: 2
Lot Size: 0.16 Acres
Square Feet: 1,690 sq ft
Year Built: 2022
Garage: Yes
Stories: 1 Story
Construction: Block
Subdivision: Elmwood
Foundation: Slab
County: Lake
School Information
Elementary: Tavares Elem
Middle: Tavares Middle
High: Tavares High
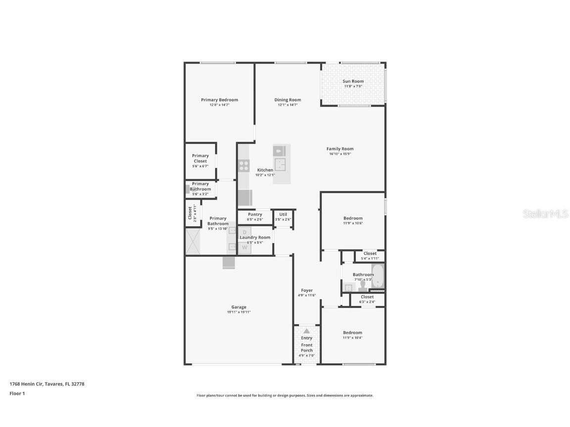
Room Information
Main Floor
Laundry: 6x5
Living Room: 16x12
Porch: 11x8
Primary Bathroom: 14x10
Primary Bedroom: 22x13
Bathroom 1: 5x8
Bedroom 2: 10x11
Bedroom 1: 11x11
Dining Room: 15x12
Kitchen: 13x15
Bathrooms
Full Baths: 2
Additonal Room Information
Laundry: Laundry Room
Interior Features
Appliances: Electric Water Heater, Ice Maker, Exhaust Fan, Microwave, Range, Refrigerator, Dishwasher, Disposal
Flooring: Carpet,Ceramic Tile,Luxury Vinyl
Doors/Windows: Window Treatments
Additional Interior Features: Ceiling Fan(s), Window Treatments, Open Floorplan, Walk-In Closet(s)
Utilities
Sewer: Public Sewer
Other Utilities: Cable Available,Electricity Connected,High Speed Internet Available,Sewer Connected,Underground Utilities,Water Not Available
Cooling: Ceiling Fan(s), Central Air
Heating: Electric, Heat Pump, Central
Exterior / Lot Features
Attached Garage: Attached Garage
Garage Spaces: 2
Roof: Shingle
Lot Dimensions: 60x115
Additional Exterior/Lot Features: Sprinkler/Irrigation, Rear Porch, Covered, Enclosed
Community Features
Community Features: Street Lights
Homeowners Association: Yes
HOA Dues: $77 / Monthly
Driving Directions
From Highway 441 heading East, turn right onto David Walker Road. Take a right on Stokes Acres Dr. into the Elmwood development, then turn right onto Henin Circle. Take the first left onto Henin Circle, and the home will be on your left.
Financial Considerations
Terms: Cash,Conventional,FHA,VA Loan
Tax/Property ID: 27-19-26-0020-000-03200
Tax Amount: 4449.2
Tax Year: 2025
A broker reciprocity listing courtesy: LPT REALTY, LLC.
Based on information provided by Stellar MLS as distributed by the MLS GRID. Information from the Internet Data Exchange is provided exclusively for consumers’ personal, non-commercial use, and such information may not be used for any purpose other than to identify prospective properties consumers may be interested in purchasing. This data is deemed reliable but is not guaranteed to be accurate by Edina Realty, Inc., or by the MLS. Edina Realty, Inc., is not a multiple listing service (MLS), nor does it offer MLS access.
Copyright 2026 Stellar MLS as distributed by the MLS GRID. All Rights Reserved.
Payment Calculator
Interest rate and annual percentage rate (APR) are based on current market conditions, are for informational purposes only, are subject to change without notice and may be subject to pricing add-ons related to property type, loan amount, loan-to-value, credit score and other variables. Estimated closing costs used in the APR calculation are assumed to be paid by the borrower at closing. If the closing costs are financed, the loan, APR and payment amounts will be higher. If the down payment is less than 20%, mortgage insurance may be required and could increase the monthly payment and APR. Contact us for details. Additional loan programs may be available. Accuracy is not guaranteed, and all products may not be available in all borrower's geographical areas and are based on their individual situation. This is not a credit decision or a commitment to lend.
Sales History & Tax Summary for 1768 Henin Circle
Sales History
| Date | Price | |
|---|---|---|
| Currently not available. | ||
Tax Summary
| Tax Year | Estimated Market Value | Total Tax |
|---|---|---|
| Currently not available. | ||
Data powered by ATTOM Data Solutions. Copyright© 2026. Information deemed reliable but not guaranteed.
Schools
Schools nearby 1768 Henin Circle
| Schools in attendance boundaries | Grades | Distance | Rating |
|---|---|---|---|
| Loading... | |||
| Schools nearby | Grades | Distance | Rating |
|---|---|---|---|
| Loading... | |||
Data powered by ATTOM Data Solutions. Copyright© 2026. Information deemed reliable but not guaranteed.
The schools shown represent both the assigned schools and schools by distance based on local school and district attendance boundaries. Attendance boundaries change based on various factors and proximity does not guarantee enrollment eligibility. Please consult your real estate agent and/or the school district to confirm the schools this property is zoned to attend. Information is deemed reliable but not guaranteed.
SchoolDigger ® Rating
The SchoolDigger rating system is a 1-5 scale with 5 as the highest rating. SchoolDigger ranks schools based on test scores supplied by each state's Department of Education. They calculate an average standard score by normalizing and averaging each school's test scores across all tests and grades.
Coming soon properties will soon be on the market, but are not yet available for showings.