$943,006
Off-Market Date: 01/30/20261772 Stonecliff Drive Apopka, FL 32703
Pending MLS# O6366820
5 beds 4 baths 3,987 sq ft Single Family
Details for 1772 Stonecliff Drive
MLS# O6366820
Description for 1772 Stonecliff Drive, Apopka, FL, 32703
Pre-Construction. To be built. This award winning two-story home offers 5 bedrooms, 4 bathrooms, all wrapped up in just under 4,000 square feet. And you still have the chance to customize your own interior finishes! Upon entering the inviting foyer, you will find a flex room before opening up to the bright kitchen and great room. First-floor primary bedroom plus a secondary bedroom and bath located on the first floor. Secluded on the second floor are three additional bedrooms, complete with a large walk-in closet and two full bathrooms. Additional highlights include a spacious upstairs loft, a covered rear lanai, and split 3-car garages. The resort-style amenities in this community will make your family feel they're on vacation year-round. Schedule an appointment today to see it for yourself!
Listing Information
Property Type: Residential, Single Family Residence
Status: Pending
Bedrooms: 5
Bathrooms: 4
Lot Size: 0.26 Acres
Square Feet: 3,987 sq ft
Year Built: 2025
Garage: Yes
Stories: 2 Story
Construction: Block,Concrete,Stone,Stucco
Construction Display: New Construction
Subdivision: Bronson Peak
Builder: Toll Brothers
Foundation: Slab
County: Orange
School Information
Elementary: Apopka Elem
Middle: Wolf Lake Middle
High: Wekiva High
Room Information
Main Floor
Office: 11.4x11.7
Dining Room: 10x11.8
Bedroom 2: 11.9x12.4
Kitchen: 11.8x13.5
Great Room: 18x23.5
Primary Bedroom: 14x18.8
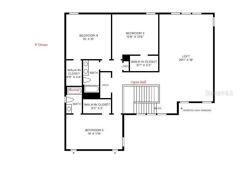
Upper Floor
Bedroom 5: 11.8x19
Bedroom 4: 15x15
Bedroom 3: 13.6x15.6
Bathrooms
Full Baths: 4
Additonal Room Information
Laundry: Inside
Interior Features
Appliances: Tankless Water Heater, Gas Water Heater, Range Hood, Microwave, Cooktop, Dishwasher, Disposal
Flooring: Carpet,Luxury Vinyl,Tile
Additional Interior Features: Eat-In Kitchen, Kitchen/Family Room Combo, Open Floorplan, Solid Surface Counters
Utilities
Sewer: Public Sewer
Other Utilities: Cable Available,Electricity Available,Natural Gas Available,Sewer Available,Underground Utilities,Water Available,Water Not Available
Cooling: Central Air
Heating: Heat Pump, Central
Exterior / Lot Features
Attached Garage: Attached Garage
Garage Spaces: 3
Parking Description: Garage, Garage Door Opener, driveway
Roof: Shingle
Pool: Association, Community
Additional Exterior/Lot Features: In-Wall Pest Control System, Sprinkler/Irrigation, Rear Porch, Landscaped, Private Road
Community Features
Community Features: Clubhouse, Street Lights, Dog Park, Park, Pool, Tennis Court(s), Playground, Sidewalks, Fitness
Association Amenities: Pickleball, Clubhouse, Fitness Center, Playground, Tennis Court(s), Pool
HOA Dues Include: Taxes, Common Areas
Homeowners Association: Yes
HOA Dues: $122 / Monthly
Driving Directions
Heading West on SR 414, take exit 5 onto Marden Rd and turn right. Turn left onto Ocoee-Apopka Rd, then right onto Boy Scout Rd in .4 miles.
Financial Considerations
Terms: Cash,Conventional,VA Loan
Tax/Property ID: 17-21-28-0941-01-290
Tax Amount: 3109.66
Tax Year: 2025
A broker reciprocity listing courtesy: ORLANDO TBI REALTY LLC
Based on information provided by Stellar MLS as distributed by the MLS GRID. Information from the Internet Data Exchange is provided exclusively for consumers’ personal, non-commercial use, and such information may not be used for any purpose other than to identify prospective properties consumers may be interested in purchasing. This data is deemed reliable but is not guaranteed to be accurate by Edina Realty, Inc., or by the MLS. Edina Realty, Inc., is not a multiple listing service (MLS), nor does it offer MLS access.
Copyright 2026 Stellar MLS as distributed by the MLS GRID. All Rights Reserved.
Sales History & Tax Summary for 1772 Stonecliff Drive
Sales History
| Date | Price | |
|---|---|---|
| Currently not available. | ||
Tax Summary
| Tax Year | Estimated Market Value | Total Tax |
|---|---|---|
| Currently not available. | ||
Data powered by ATTOM Data Solutions. Copyright© 2026. Information deemed reliable but not guaranteed.
Schools
Schools nearby 1772 Stonecliff Drive
| Schools in attendance boundaries | Grades | Distance | Rating |
|---|---|---|---|
| Loading... | |||
| Schools nearby | Grades | Distance | Rating |
|---|---|---|---|
| Loading... | |||
Data powered by ATTOM Data Solutions. Copyright© 2026. Information deemed reliable but not guaranteed.
The schools shown represent both the assigned schools and schools by distance based on local school and district attendance boundaries. Attendance boundaries change based on various factors and proximity does not guarantee enrollment eligibility. Please consult your real estate agent and/or the school district to confirm the schools this property is zoned to attend. Information is deemed reliable but not guaranteed.
SchoolDigger ® Rating
The SchoolDigger rating system is a 1-5 scale with 5 as the highest rating. SchoolDigger ranks schools based on test scores supplied by each state's Department of Education. They calculate an average standard score by normalizing and averaging each school's test scores across all tests and grades.
Coming soon properties will soon be on the market, but are not yet available for showings.