1776 Bella Lago Drive Clermont, FL 34711
For Sale MLS# S5129261
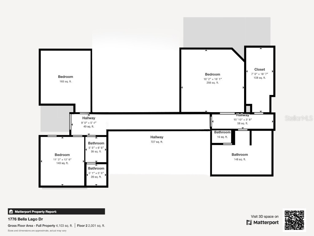
5 beds 3 baths 3,640 sq ft Single Family
Details for 1776 Bella Lago Drive
MLS# S5129261
Description for 1776 Bella Lago Drive, Clermont, FL, 34711
Experience refined living in the exclusive gated community and enjoy the peaceful atmosphere of Bella Lago with the tranquil presence of Lake Felter just steps away. This custom-built residence offers nearly 3,640 sq. ft. of impeccably crafted living space set on a premium corner lot, combining elegance, functionality. Designed for both elevated everyday living and effortless entertaining, the home features 5 bedrooms and 3 bathrooms, each thoughtfully arranged for comfort and privacy. The grand foyer opens to soaring 20-ft ceilings and expansive windows that flood the interior with natural light, creating a warm, inviting atmosphere. The newly renovated chef’s kitchen features a 5 ft x 10 ft island, granite countertops, gas cooktop, double wall ovens, new stove and microwave, walk-in pantry, and modern cabinetry. The first floor includes plantation shutters, an electric fireplace, tile flooring in common areas, wood-style flooring in the living room, and carpeted bedrooms. Upstairs, the spacious primary suite offers large walk-in closets. Outdoors, the home includes a custom retaining wall, enhanced front landscaping, and a backyard ready for a pool, garden, or future outdoor living space. Close to major highways, schools, shopping, and attractions, this home delivers luxury, space, and convenience within an exclusive gated community.
Listing Information
Property Type: Residential, Single Family Residence
Status: Active
Bedrooms: 5
Bathrooms: 3
Lot Size: 0.49 Acres
Square Feet: 3,640 sq ft
Year Built: 2017
Garage: Yes
Stories: 2 Story
Construction: Brick,Block
Construction Display: New Construction
Subdivision: Bella Lago
Foundation: Slab
County: Lake
Construction Status: New Construction
School Information
Elementary: Lost Lake Elem
Middle: Windy Hill Middle
High: East Ridge High
Room Information
Main Floor
Dinette:
Dining Room:
Living Room:
Kitchen:
Bathroom 5:
Bathroom 4:
Upper Floor
Bathroom 3:
Bedroom 2:
Primary Bedroom:
Bathrooms
Full Baths: 3
Additonal Room Information
Laundry: Laundry Room, Electric Dryer Hookup
Interior Features
Appliances: Electric Water Heater, Cooktop, Dishwasher, Trash Compactor
Flooring: Carpet,Ceramic Tile,Tile
Doors/Windows: Shutters
Fireplaces: Electric
Additional Interior Features: Walk-In Closet(s), Solid Surface Counters
Utilities
Water: Public
Sewer: Public Sewer
Other Utilities: Electricity Available,Natural Gas Available,Municipal Utilities
Cooling: Central Air
Heating: Central
Exterior / Lot Features
Attached Garage: Attached Garage
Garage Spaces: 3
Roof: Tile, Concrete
Lot View: City
Additional Exterior/Lot Features: Courtyard, Garden, Corner Lot
Community Features
Community Features: Gated
Security Features: Gated Community, Smoke Detector(s)
Homeowners Association: Yes
HOA Dues: $179 / Monthly
Driving Directions
From Hwy 27, head west on Hooks St. Turn left onto Waterside Pointe Dr. Continue to Bella Lago Dr, then turn left. Home will be on the right.
Financial Considerations
Terms: Cash,Conventional,FHA,VA Loan
Tax/Property ID: 04-23-26-0010-000-06700
Tax Year: 2025
A broker reciprocity listing courtesy: EXP REALTY LLC
Based on information provided by Stellar MLS as distributed by the MLS GRID. Information from the Internet Data Exchange is provided exclusively for consumers’ personal, non-commercial use, and such information may not be used for any purpose other than to identify prospective properties consumers may be interested in purchasing. This data is deemed reliable but is not guaranteed to be accurate by Edina Realty, Inc., or by the MLS. Edina Realty, Inc., is not a multiple listing service (MLS), nor does it offer MLS access.
Copyright 2025 Stellar MLS as distributed by the MLS GRID. All Rights Reserved.
Payment Calculator
Interest rate and annual percentage rate (APR) are based on current market conditions, are for informational purposes only, are subject to change without notice and may be subject to pricing add-ons related to property type, loan amount, loan-to-value, credit score and other variables. Estimated closing costs used in the APR calculation are assumed to be paid by the borrower at closing. If the closing costs are financed, the loan, APR and payment amounts will be higher. If the down payment is less than 20%, mortgage insurance may be required and could increase the monthly payment and APR. Contact us for details. Additional loan programs may be available. Accuracy is not guaranteed, and all products may not be available in all borrower's geographical areas and are based on their individual situation. This is not a credit decision or a commitment to lend.
Sales History & Tax Summary for 1776 Bella Lago Drive
Sales History
| Date | Price | Change |
|---|---|---|
| Currently not available. | ||
Tax Summary
| Tax Year | Estimated Market Value | Total Tax |
|---|---|---|
| Currently not available. | ||
Data powered by ATTOM Data Solutions. Copyright© 2025. Information deemed reliable but not guaranteed.
Schools
Schools nearby 1776 Bella Lago Drive
| Schools in attendance boundaries | Grades | Distance | Rating |
|---|---|---|---|
| Loading... | |||
| Schools nearby | Grades | Distance | Rating |
|---|---|---|---|
| Loading... | |||
Data powered by ATTOM Data Solutions. Copyright© 2025. Information deemed reliable but not guaranteed.
The schools shown represent both the assigned schools and schools by distance based on local school and district attendance boundaries. Attendance boundaries change based on various factors and proximity does not guarantee enrollment eligibility. Please consult your real estate agent and/or the school district to confirm the schools this property is zoned to attend. Information is deemed reliable but not guaranteed.
SchoolDigger ® Rating
The SchoolDigger rating system is a 1-5 scale with 5 as the highest rating. SchoolDigger ranks schools based on test scores supplied by each state's Department of Education. They calculate an average standard score by normalizing and averaging each school's test scores across all tests and grades.
Coming soon properties will soon be on the market, but are not yet available for showings.